Preferiti

Sponsorizza

Stampa

Appartamento bilocale in vendita con giardino a Giurdignano in via galliano

  • 96.000€
  • 2 locali
  • 54 mq
  • Vendesi

Giurdignano.
A Giurdignano antica cittadina sul versante orientale del Salento, rinomata per essere il "giardino megalitico"d Italia, sorge il nuovo complesso residenziale progettato dallarchitetto Bolognese Alessandro Ballocchi.
Collocato a pochissimi chilometri dallo splendido mare Otrantino, le tipologie abitative godono di ampi terrazzi esterni e verdeggianti giardini privati.
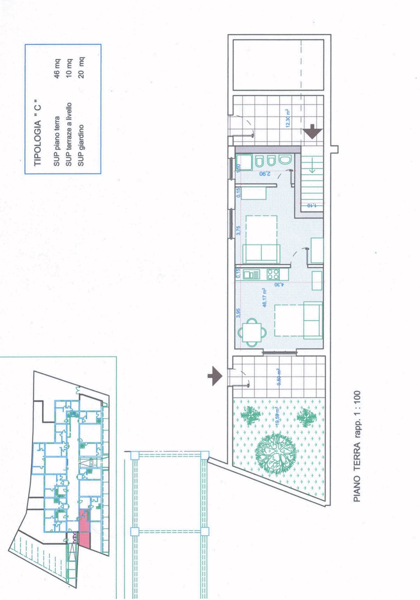
Tra le varie soluzioni in costruzione, proponiamo un luminoso bilocale costruito al piano terra di circa 61 mq. commerciali con terrazza e giardino di pertinenza.
Nella struttura, si denotano ambienti ben disimpegnati, con laffaccio su tre lati, coperti da aree verdi che rendono il contesto interno riservato e silenzioso.
L'immobile si compone da unampia sala con angolo cottura che affaccia sul giardino di propriet, una camera matrimoniale ed un bagno.
A corredo un posto auto di propriet esterno.
RIFINITURE DEGLI APPARTAMENTI E DEI SERVIZI COMUNI - Muratura esterna con isolamento.
- Pannelli solari termici.
- Infissi PVC a taglio termico con vetro basso emissivo.
- Pavimento in Grs di prima scelta (disponibile anche effetto parquet). - Tapparelle elettriche con lamelle orientabili.
- Porta blindata.
- Videocitofono.
- Luce emergenza.
- impianto di aria condizionata.
- Edificio in Classe energetica A PAVIMENTAZIONE INTERNA - in gress porcellanato e/o ceramica monocottura INFISSI ESTERNI, INTERNI ESTERNI: in alluminio preverniciato con taglio termico o in PVC, completi di ferramenta di chiusura e vetro-camera, con doppio sistema di apertura (anta e vasistas). INTERNI:Con intelaiatura in legno abete e rivestimento da ambo le facce di laminato, completi di ferramenta di chiusura , con doppio sistema di apertura (anta e vasistas). OSCURAMENTO: Tapparelle elettriche a liste orientabili e richiudibili a pacchetto . PORTONCINI D'INGRESSO: blindato con struttura metallica in acciaio, tamburato e rivestito da ambo le facce con legno noce; completo di rostri di ancoraggio, serratura di sicurezza, guarnizioni antispiffero, spioncino e chiusura con cilindro europeo.
RIVESTIMENTI ESTERNI: Prospetti e parti comuni: in parte rivestiti in pietra leccese o carparo ed in parte intonacati, Scala (ove prevista): in Travertino a taglio sega, montata a tappeto con zoccolo scalettato Camminamenti d'accesso : in chianche di pietra leccese montate a correre.
APPARECCHI IGIENICO-SANITARI Bagno: attacco e scarico per lavatrice.
Predisposizione attacco e scarico per lavello e lavastoviglie.
Pannello solare termico per la produzione di acqua calda sanitaria IMPIANTO ELETTRICO E T.V. CON ANTENNA CENTRALIZZATA - l'impianto sotto traccia completo di messa a terra.
Limpianto su 4 (quattro) linee di distribuzione IMPIANTO DI RISCALDAMENTO e RAFFRESCAMENTO autonomo a pompa di calore, con l'unit esterna posta sul giardino o terrazza ed unit interne poste nelle camere da condizionare (split), provviste di telecomando per l'accensione, lo spegnimento e la regolazione della temperatura ambiente oltre al controllo da remoto. Contatta l'inserzionista

Demitro PropertiesDemitro Properties
via R. M. Imbriani n°24
73100, Lecce (Lecce)
Visualizza Telefono

INFORMAZIONI SULL'IMMOBILE

  • Riferimento: 4-ADM225
  • Tipologia: Appartamento in Vendita
  • Locali: 2 Locali ( 1 camera e un bagno)
  • Piano: Terra
  • Prezzo: 96.000 €
  • Prezzo al mq: 1.778 €
  • Giardino: Privato - 30 Mq
  • Spazio Auto: No
  • Modificato il: 08/05/2023
  • Scheda: SC9559048

Stabile

  • Anno: 2023
  • Piano: Terra su 1 totali
A1

Mappa e indirizzo

Appartamento sito in via galliano
73020 Giurdignano (Lecce)
mappa mostra l'annuncio su mappa

Galleria Fotografica

Contatta l'inserzionista

Demitro Properties

Demitro Properties di Lecce propone in vendita questo immobile, contattali subito!

Annunci immobiliari a Giurdignano (LE)

Copyright Š 2026 PCase.it. All rights reserved. Sede operativa MILANO. P.IVA 08508420968 - Condizioni d'uso e privacy