Preferiti

Sponsorizza

Stampa

Appartamento in vendita ristrutturato a Gallipoli in via lecce 111

  • 399.000€
  • 6 locali
  • 260 mq
  • Vendesi

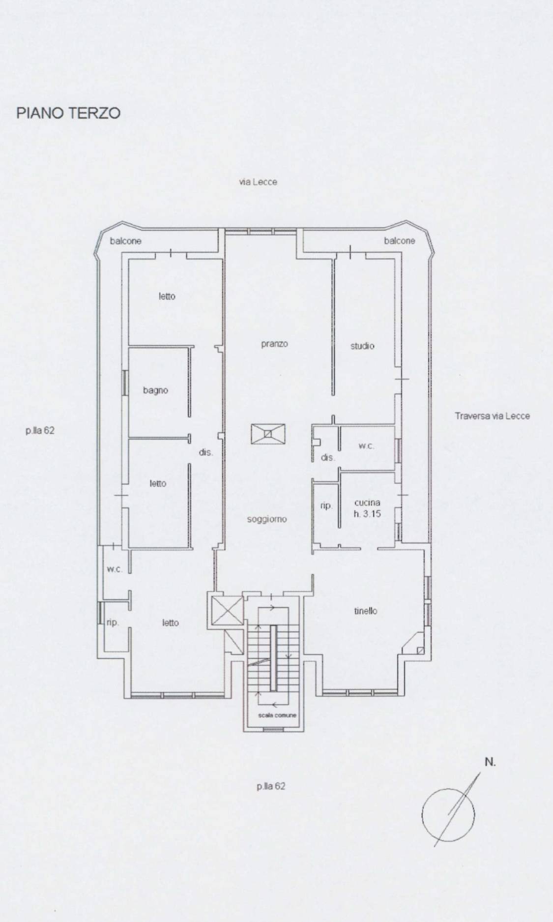
ATTICO - GALLIPOLI A soli 50 metri dal mare, questo appartamento recentemente ristrutturato di ca 260 mq al terzo e ultimo piano una di quelle opportunit che raramente compaiono sul mercato.
Ledificio, di cui le opere di straordinaria manutenzione esterne sono state appena ultimate, libero su quattro lati ed composto di sole 5 unit immobiliari.
Gli spazi interni sono ampi e ben distribuiti: lascensore interno da accesso al grande living; sala con camino da cui si vede il mare, cucina funzionale, quattro camere da letto, tre bagni (di cui uno en suite) e un comodo vano tecnico che si affaccia su una terrazza ad uso esclusivo con vista aperta su tutta la costa.
Una soluzione completa e ideale per chi cerca comfort, in posizione strategica vista limmediata vicinanza sia al mare che al centralissimo Corso Roma. Unoccasione assolutamente imperdibile per qualit, metratura e prospettiva di rendimento. Contatta l'inserzionista

Demitro PropertiesDemitro Properties
via R. M. Imbriani n°24
73100, Lecce (Lecce)
Visualizza Telefono

INFORMAZIONI SULL'IMMOBILE

  • Riferimento: ADM581
  • Tipologia: Appartamento in Vendita
  • Locali: 6 Locali
  • Piano: Ultimo Piano
  • Stato: Ristrutturato
  • Bagni: 3
  • Prezzo: 399.000 €
  • Prezzo al mq: 1.535 €
  • Riscaldamento: Autonomo
  • Spazio Auto: No
  • Modificato il: 02/04/2026
  • Scheda: SC9636639

Stabile

  • Anno: 1980
  • Piano: 3 su 3 totali
D

Mappa e indirizzo

Appartamento sito in via lecce, 111
73014 Gallipoli (Lecce)
mappa mostra l'annuncio su mappa

Galleria Fotografica

Contatta l'inserzionista

Demitro Properties

Demitro Properties di Lecce propone in vendita questo immobile, contattali subito!

Annunci immobiliari a Gallipoli (LE)

Copyright Š 2026 PCase.it. All rights reserved. Sede operativa MILANO. P.IVA 08508420968 - Condizioni d'uso e privacy