Preferiti

Sponsorizza

Stampa

Appartamento in vendita da ristrutturare a Gallipoli in via galatina

  • 145.000€
  • 6 locali
  • 116 mq
  • Vendesi

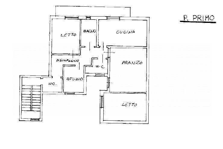
In piccolo e riservato contesto condominiale composto da sole 5 unit abitative, Lady House ha il piacere di proporre in vendita appartamento al 1° piano di circa 116mq.
L'immobile composto da ingresso, disimpegno, cucina abitabile con camino, ampio soggiorno/sala da pranzo, 3 camere da letto e doppi servizi, entrambi finestrati e con doccia.
Ideale per famiglie numerose o per chi cerca ampi spazi abitativi e comfort in una zona tranquilla.
Per info e/o appuntamento Tel 0833.18.21.211 / 380.470.54.31 e-mail: *******@******* CHI SIAMO Lady House Immobiliare nasce dalla passione di professionisti che operano nel settore dellintermediazione immobiliare da oltre 20 anni. Consulenti dedicati, leaders in Salento come PROPERTY FINDER, offriranno un supporto professionale per la ricerca del giusto investimento.
Uno dei punti di forza del brand la collaborazione tra agenti: i clienti avranno a disposizione non solo le offerte immobiliari proposte in sede, ma anche quelle gestite da altre agenzie.
La pluriennale esperienza ha consentito di creare un vero e proprio contenitore di servizi a sostegno del cliente.
La joint venture, con avvocati, tecnici, arredatori e home stager, permette di risolvere problematiche sempre pi specifiche, in un mercato che cambia continuamente. Contatta l'inserzionista

Lady House SrlLady House Srl
Via Lecce, 23/A
73014, Gallipoli (Lecce)
Visualizza Telefono

INFORMAZIONI SULL'IMMOBILE

  • Riferimento: LH_977
  • Tipologia: Appartamento in Vendita
  • Locali: 6 Locali
  • Piano: Primo
  • Stato: da Ristrutturare
  • Bagni: 2
  • Prezzo: 145.000 €
  • Prezzo al mq: 1.250 €
  • Modificato il: 25/02/2026
  • Scheda: SC9608016

Stabile

  • Piano: 1 su 3 totali
  • Classe Energetica: n.d.

Mappa e indirizzo

Appartamento sito in via galatina
73014 Gallipoli (Lecce)
mappa mostra l'annuncio su mappa

Galleria Fotografica

Contatta l'inserzionista

Lady House Srl

Lady House Srl di Gallipoli propone in vendita questo immobile, contattali subito!

Annunci simili

Annunci immobiliari a Gallipoli (LE)

Copyright Š 2026 PCase.it. All rights reserved. Sede operativa MILANO. P.IVA 08508420968 - Condizioni d'uso e privacy