Preferiti

Sponsorizza

Stampa

Appartamento monolocale in vendita da ristrutturare a Gaeta in calegna

  • trattativa riservata
  • 1 locale
  • 355 mq
  • Vendesi

Gaeta Calegna.
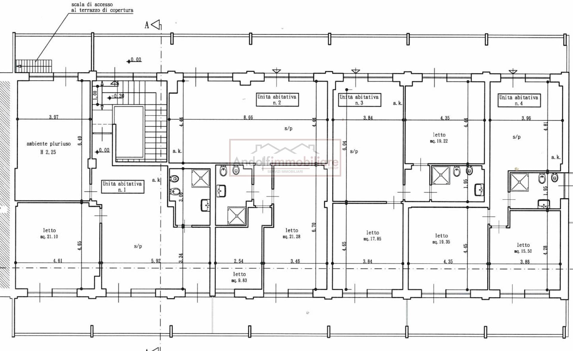
In zona tranquilla e residenziale, proponiamo in vendita, porzione di fabbricato al primo piano da ristrutturare.
Limmobile, sviluppa 355mq interni oltre e 125mq di balconi, 2 vani tecnici di 35mq totali (con eventuale possibilit di cambio di destinazione) posti auto esterni e viene venduto con progetto gi approvato per la realizzazione di 4 appartamenti di varie metrature.
Possibilit di modificare la superficie interna degli appartamenti gi progettati se si desidera ricavare pi appartamenti rispetto al progetto esistente.
N.B. Per ulteriori info, come lubicazione del fabbricato ecc, si prega di fissare un appuntamento direttamente nel nostro ufficio. Contatta l'inserzionista

ANDOLFIMMOBILIAREANDOLFIMMOBILIARE
Via Indipendenza, 67
04024, Gaeta (Latina)
Visualizza Telefono

INFORMAZIONI SULL'IMMOBILE

  • Riferimento: G125
  • Tipologia: Appartamento in Vendita
  • Locali: 1 Locali ( 1 camera)
  • Piano: Ultimo Piano
  • Stato: da Ristrutturare
  • Spazio Auto: No
  • Modificato il: 15/11/2019
  • Scheda: SC9575287

Stabile

  • Piano: 1 su 1 totali
I.P.E.
175Kwh/m3
G

Mappa e indirizzo

Appartamento sito in calegna
04024 Gaeta (Latina)
mappa mostra l'annuncio su mappa

Contatta l'inserzionista

ANDOLFIMMOBILIARE

ANDOLFIMMOBILIARE di Gaeta propone in vendita questo immobile, contattali subito!

Annunci immobiliari a Gaeta (LT)

Copyright Š 2026 PCase.it. All rights reserved. Sede operativa MILANO. P.IVA 08508420968 - Condizioni d'uso e privacy