Preferiti

Sponsorizza

Stampa

Villa in vendita a Controguerra

  • 105.000€
  • 6 locali
  • 165 mq
  • Vendesi

L'agenzia Immobiliare Sviluppo Casa 33 propone in vendita grande appartamento indipendente situato al centro di Controguerra (TE) a 10 km da Alba Adriatica.
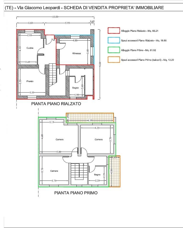
DESCRIZIONE: appartamento con ingresso autonomo di complessivi 165 mq distribuiti su due livelli (piano rialzato e primo) + 13 mq di balconi +30 mq magazzino e fondaco al piano seminterrato+ 235 mq spazio esterno di propriet.
Piano rialzato con soggiorno, cucina abitabile con camino, ampio bagno, ed ampia stanza usata come magazzino; piano primo collegato da scala interna composto da 3 camere matrimoniali, bagno e 2 balconi.
STATO DEI LUOGHI: la struttura dalle spesse mura si presenta solida, le finiture interne sono di tipo semplice anni 70, le impiantistiche sono anch'esse datate ma comunque funzionanti.
La posizione centrale permette di usufruire di tutti i servizi a piedi (banca - posta- alimentari- macelleria- scuole elementari medie e materna- bar e ristorante) Se non vuoi spendere grandi cifre e non ami i contesti condominiali, questa soluzione potrebbe essere adatta a te. Contatta l'inserzionista

Sviluppo Casa 33Sviluppo Casa 33
Lungomare Europa
64014, Martinsicuro (Teramo)
Visualizza Telefono

INFORMAZIONI SULL'IMMOBILE

  • Riferimento: 3657
  • Tipologia: Villa in Vendita
  • Locali: 6 Locali
  • Bagni: 2
  • Prezzo: 105.000 €
  • Prezzo al mq: 636 €
  • Riscaldamento: Autonomo
  • Soffitta: Si
  • Modificato il: 07/03/2026
  • Scheda: SC9508990

Stabile

  • Anno: 1970
  • Piani Totali: 2
I.P.E.
259,65Kwh/m2
G

Mappa e indirizzo

64010 Controguerra (Teramo)
mappa mostra l'annuncio su mappa

Galleria Fotografica

Contatta l'inserzionista

Sviluppo Casa 33

Sviluppo Casa 33 di Martinsicuro propone in vendita questo immobile, contattali subito!

Annunci immobiliari a Controguerra (TE)

Copyright Š 2026 PCase.it. All rights reserved. Sede operativa MILANO. P.IVA 08508420968 - Condizioni d'uso e privacy