Preferiti

Sponsorizza

Stampa

Appartamento bilocale in vendita a Comunanza in via ghezzi 3

  • 55.000€
  • 2 locali
  • 55 mq
  • Vendesi

L'agenzia immobiliare Ilustra propone in vendita appartamento bilocale, nel comune di Comunanza (AP), zona centro storico.
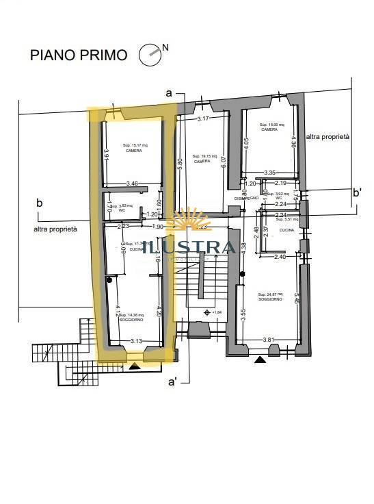
L'immobile ha una superficie totale di 50 metri quadrati, ingresso su soggiorno con angolo cottura ,camera matrimoniale, bagno finestrato con doccia.
Situato al primo piano di una palazzina in fase di totale ristrutturazione, sar pronto per essere abitato nei primi mesi del 2026. Si tratta di una soluzione ideale per chi desidera una casa totalmente ristrutturata.
L'appartamento dotato di impianto a radiatori in alluminio alimentato a metano con caldaia a condensazione, garantendo cos un riscaldamento efficiente e costante nei mesi pi freddi.
finestre in legno con doppiovetro termico e persiane, portone d'ingresso blindato e finiture interne ancora con possibilit di personalizzazione Inoltre, l'appartamento dispone di una cantina di 22mq circa per riporre oggetti e attrezzi, garantendo cos una maggiore vivibilit degli spazi interni.
Se stai cercando un'abitazione nuova, confortevole, questo appartamento sicuramente la soluzione ideale per te. Non perdere l'opportunit di diventare il proprietario di questo splendido immobile in fase di ristrutturazione. Contatta l'inserzionista

Ilustra S.R.L.S.Ilustra S.R.L.S.
Strada Provinciale Valtesino, 301
63068, Grottammare (Ascoli Piceno)
Visualizza Telefono

INFORMAZIONI SULL'IMMOBILE

  • Riferimento: 123
  • Tipologia: Appartamento in Vendita
  • Locali: 2 Locali ( 1 camera e un bagno)
  • Piano: Primo
  • Stato: Ristrutturato
  • Prezzo: 55.000 €
  • Prezzo al mq: 1.000 €
  • Riscaldamento: Autonomo
  • Spazio Auto: No
  • Cantina: Si
  • Modificato il: 03/03/2026
  • Scheda: SC9452616

Stabile

  • Anno: 2025
  • Piano: 1
A1

Mappa e indirizzo

Appartamento sito in via ghezzi, 3
63044 Comunanza (Ascoli Piceno)
mappa mostra l'annuncio su mappa

Galleria Fotografica

Contatta l'inserzionista

Ilustra S.R.L.S.

Ilustra S.R.L.S. di Grottammare propone in vendita questo immobile, contattali subito!

Annunci immobiliari a Comunanza (AP)

Copyright Š 2026 PCase.it. All rights reserved. Sede operativa MILANO. P.IVA 08508420968 - Condizioni d'uso e privacy