Preferiti

Sponsorizza

Stampa

Appartamento in vendita a Comunanza in via sarti 13

  • 95.000€
  • 3 locali
  • 80 mq
  • Vendesi

L'agenzia immobiliare Ilustra propone in vendita appartamento trilocale, nel comune di Comunanza (AP), zona centro storico.
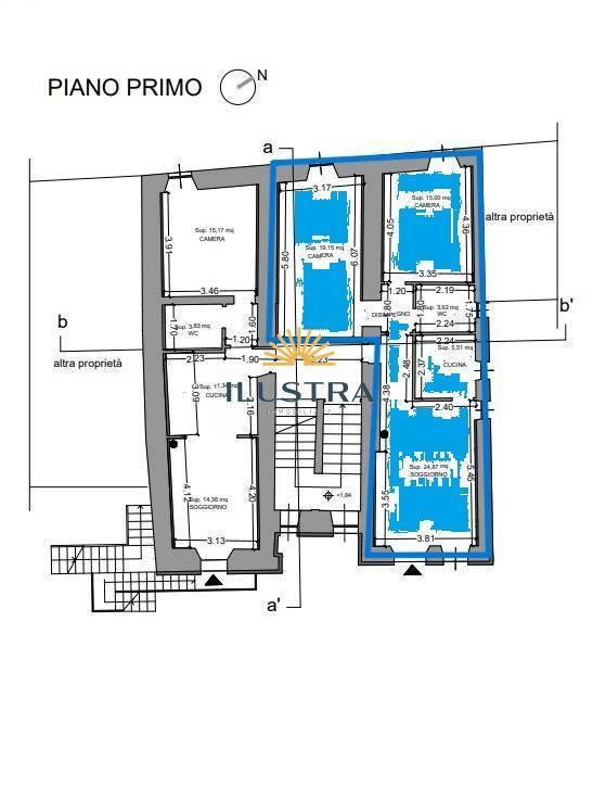
L'unit immobiliare situato al primo piano di una palazzina in fase di totale ristrutturazione, sar pronto per essere abitato nei primi mesi del 2026. Si tratta di una soluzione ideale per chi desidera una casa totalmente ristrutturata.
L'immobile ha una superficie totale di 74 metri quadrati, tutti calpestabili e ben distribuiti: ingresso su soggiorno, cucina separata, bagno finestrato con doccia, due camere matrimoniali.
L'appartamento dotato di impianto a radiatori in alluminio alimentato a metano con caldaia a condensazione, garantendo cos un riscaldamento efficiente e costante nei mesi pi freddi.
finestre in legno con doppiovetro termico e persiane, portone d'ingresso blindato e finiture interne ancora con possibilit di personalizzazione Inoltre, l'appartamento dispone di una cantina di 22mq circa e di una soffitta di 15mq, ideali per riporre oggetti e attrezzi, garantendo cos una maggiore vivibilit degli spazi interni.
Se stai cercando un'abitazione nuova, confortevole, questo appartamento sicuramente la soluzione ideale per te. L'appartamento in vendita si trova nel centro storico di Comunanza, un grazioso paese immerso nel verde delle Marche.
Non perdere l'opportunit di diventare il proprietario di questo splendido immobile in fase di ristrutturazione. Contatta l'inserzionista

Ilustra S.R.L.S.Ilustra S.R.L.S.
Strada Provinciale Valtesino, 301
63068, Grottammare (Ascoli Piceno)
Visualizza Telefono

INFORMAZIONI SULL'IMMOBILE

  • Riferimento: 119
  • Tipologia: Appartamento in Vendita
  • Locali: 3 Locali (2 camere e un bagno)
  • Piano: Primo
  • Prezzo: 95.000 €
  • Prezzo al mq: 1.188 €
  • Riscaldamento: Autonomo
  • Spazio Auto: No
  • Cantina: Si
  • Soffitta: Si
  • Modificato il: 03/03/2026
  • Scheda: SC9452614

Stabile

  • Anno: 2025
  • Piano: 1 su 2 totali
A1

Mappa e indirizzo

Appartamento sito in via sarti, 13
63044 Comunanza (Ascoli Piceno)
mappa mostra l'annuncio su mappa

Galleria Fotografica

Contatta l'inserzionista

Ilustra S.R.L.S.

Ilustra S.R.L.S. di Grottammare propone in vendita questo immobile, contattali subito!

Annunci simili

Annunci immobiliari a Comunanza (AP)

Copyright Š 2026 PCase.it. All rights reserved. Sede operativa MILANO. P.IVA 08508420968 - Condizioni d'uso e privacy