Preferiti

Sponsorizza

Stampa

Appartamento in vendita a Cesano Maderno in giovanni verga 18

  • 327.000€
  • 4 locali
  • 115 mq
  • Vendesi

Residenza Chantal a Cesano Maderno (San Bernardo) - In corso di realizzazione, zona tranquilla e verde, servita dall'ingresso al parco del Grugnotorto.
Comoda con le principali vie di comunicazione, la zona fornita di tutti i servizi essenziali (asili, scuole, etc. ), attivit commerciali e di ristorazione.
Il progetto prevede la realizzazione di una palazzina composta da 12 appartamenti dotati di impianti autonomi ad alta efficienza energetica (Classe A4) con il massimo confort abitativo.
Disponiamo di bilocali, trilocali e quadrilocali con terrazzi e giardini privati.
Cantine.
Box di varie metrature.
Possibilit di personalizzazione interna e scelta delle finiture da ampio capitolato.
L'edificio sar caratterizzato da linee pulite e moderne e sar dotati di spazi funzionali ed eleganti caratterizzati dall'impiego di materiali di alta qualit.
L'utilizzo di tecnologie all'avanguardia, conferir alla casa comfort ambientale, termico ed acustico.
I consumi energetici saranno ridotti al minimo grazie a soluzioni ad alta efficienza.
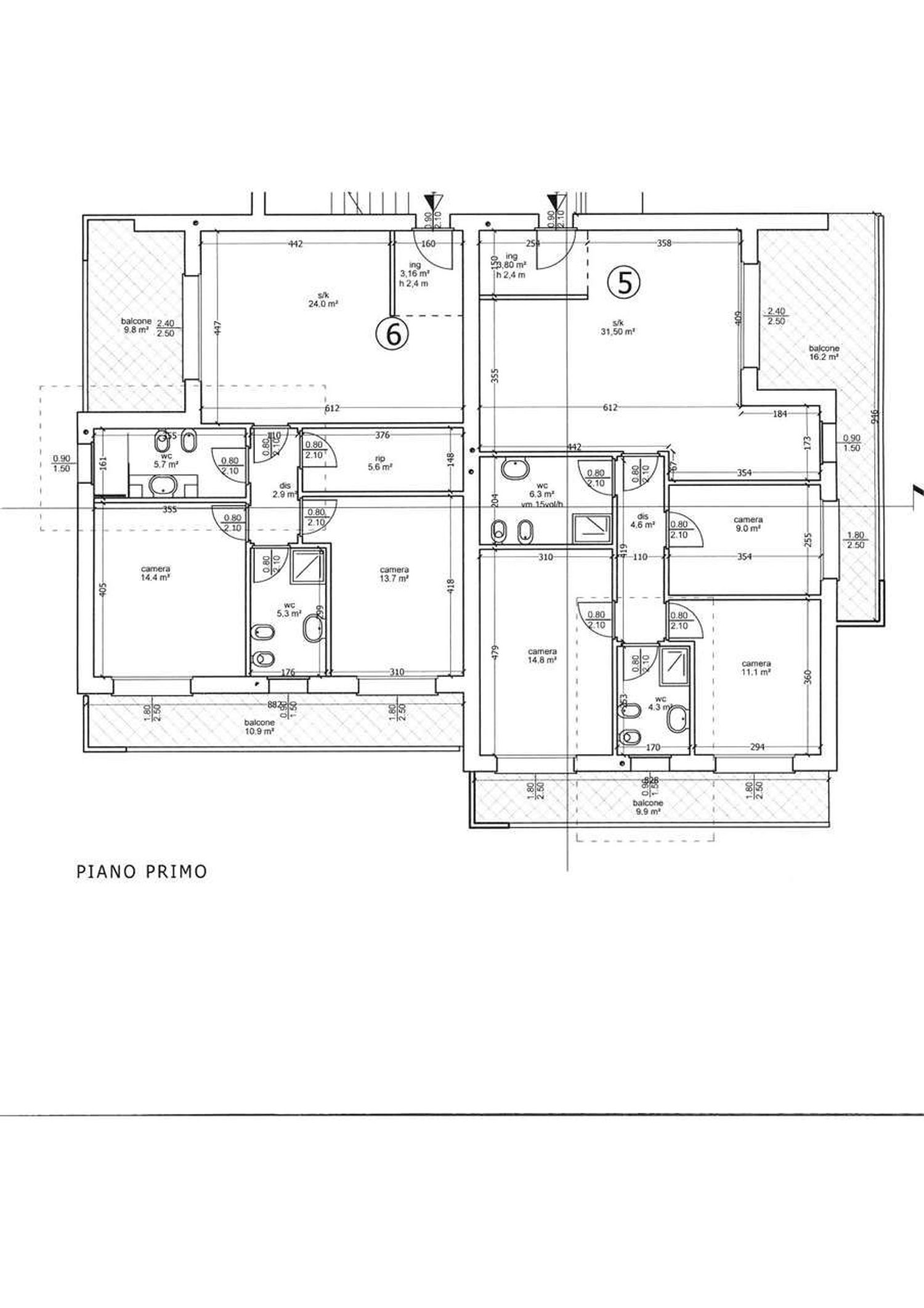
Appartamento n. 5 quadrilocale al piano primo di 102,8 mq. oltre 29 mq. di terrazzi composto da: ingresso, soggiorno con cucina a vista, 3 camere e 2 bagni, terrazzo e balcone Lo Studio Ca'Bella l'ufficio vendita esclusivo della Residenza Chantal.
Progettazione Studio Architetto Gatti.
Se avete un'immobile da vendere o da affittare contattateci, Vi forniremo una VALUTAZIONE GRATUITA e vi illustreremo come potremmo aiutarVi, attraverso i nostri servizi, a vendere o affittare il Vostro immobile al miglior prezzo e nel minor tempo possibile.
Rimani aggiornato sulle nostre offerte cliccando "MI PIACE" alla nostra pagina Facebook: Studio Ca'Bella Seguici su Instagram: studiocabella Da 40 anni camminiamo insieme nel mercato immobiliare per esaudire ogni sogno, ogni ideale di casa, promuovendo e offrendo servizi di consulenza ed intermediazione immobiliare per ogni esigenza: abitativa, commerciale, industriale.
Studio Ca'Bella s. a. s. Via Ronzoni, 10 20811 Cesano Maderno (MB) Tel. 0362/508494. Contatta l'inserzionista

Studio Ca Bella srlStudio Ca Bella srl
via giuseppe ronzoni 10
20811, Cesano Maderno (Monza Brianza)
Visualizza Telefono

INFORMAZIONI SULL'IMMOBILE

  • Riferimento: 01-Chantal app 5
  • Tipologia: Appartamento in Vendita
  • Locali: 4 Locali (3 camere con doppi servizi)
  • Piano: Primo
  • Stato: Ottimo
  • Prezzo: 327.000 €
  • Prezzo al mq: 2.843 €
  • Riscaldamento: Autonomo
  • Cantina: Si
  • Modificato il: 22/04/2026
  • Scheda: SC9642341

Stabile

  • Anno: 2026
  • Piano: 1
I.P.E.
21Kwh/m2
A4

Mappa e indirizzo

Appartamento sito in giovanni verga, 18
20031 Cesano Maderno (Monza Brianza)
mappa mostra l'annuncio su mappa

Galleria Fotografica

Contatta l'inserzionista

Studio Ca Bella srl

Studio Ca Bella srl di Cesano Maderno propone in vendita questo immobile, contattali subito!

Annunci simili

Annunci immobiliari a Cesano Maderno (MB)

Copyright Š 2026 PCase.it. All rights reserved. Sede operativa MILANO. P.IVA 08508420968 - Condizioni d'uso e privacy