Preferiti

Sponsorizza

Stampa

Appartamento bilocale in vendita con giardino a Cesano Maderno in dante alighieri 18

  • 193.700€
  • 2 locali
  • 65 mq
  • Vendesi

Cesano Maderno - In pieno centro e a soli 500 metri dalla stazione ferroviaria, proponiamo in vendita esclusivi nuovi appartamenti all'interno di un'elegante residenza di ultima generazione.
La palazzina, in corso di realizzazione e composta da 13 appartamenti dotati di impianti autonomi ad alta efficienza energetica (Classe A4) con il massimo confort abitativo.
Disponiamo di bilocali, trilocali e quadrilocali con terrazzi e giardini privati.
Box di varie metrature.
Possibilit di personalizzazione interna e scelta delle finiture da ampio capitolato.
Posizione centralissima che permette di godere di tutti i servizi senza doversi muovere in automobile.
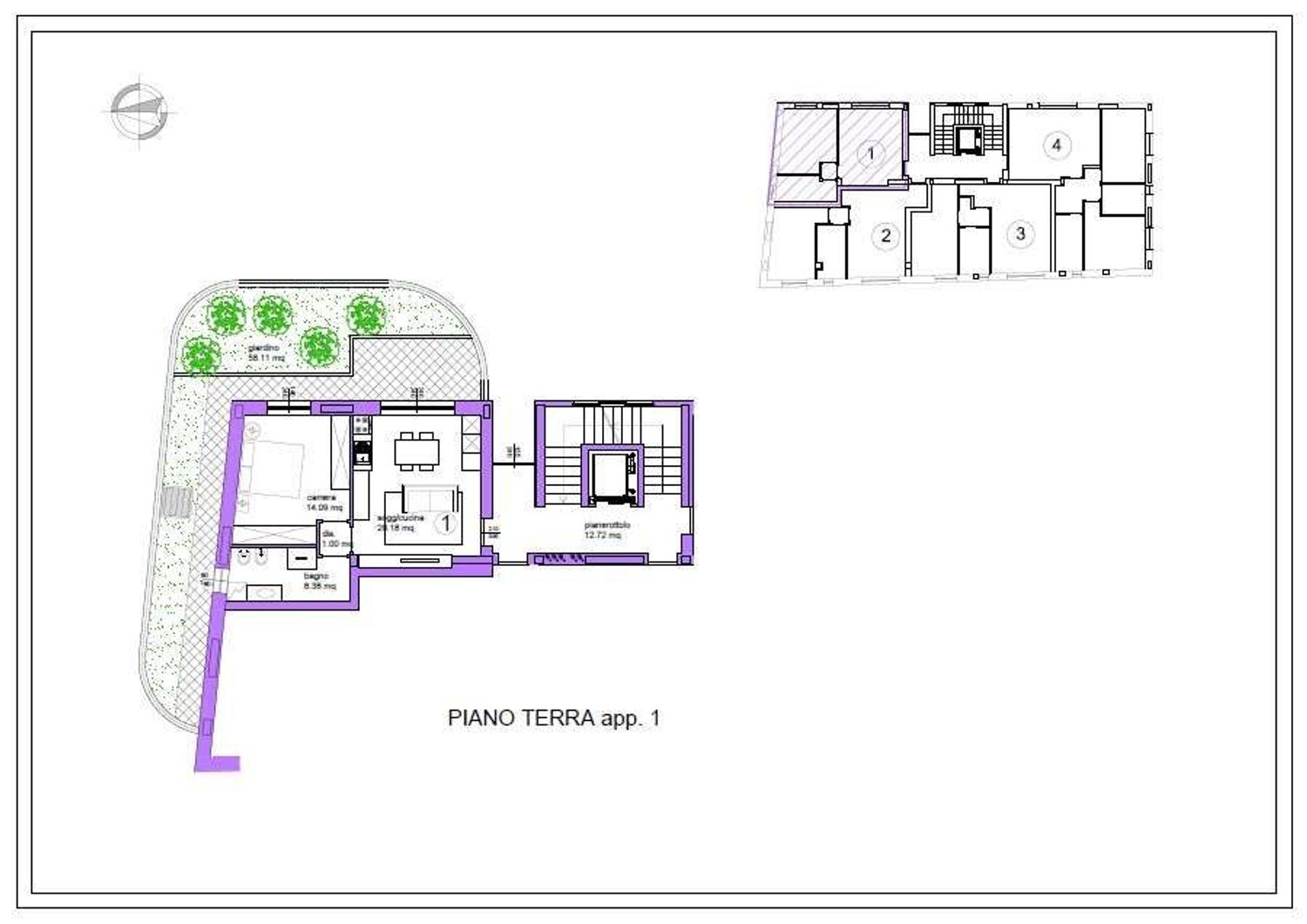
Appartamento n. 1: Bilocale di 52,6 mq. con portico e giardino privato di 70 mq. circa composto da: ingresso, soggiorno con cucina a vista, disimpegno, camera e bagno (pianta allegata nelle immagini) Se avete un'immobile da vendere o da affittare contattateci, Vi forniremo una VALUTAZIONE GRATUITA e vi illustreremo come potremmo aiutarVi, attraverso i nostri servizi, a vendere o affittare il Vostro immobile al miglior prezzo e nel minor tempo possibile.
Rimani aggiornato sulle nostre offerte cliccando "MI PIACE" alla nostra pagina Facebook: Studio Ca'Bella Seguici su Instagram: studiocabella Da 40 anni camminiamo insieme nel mercato immobiliare per esaudire ogni sogno, ogni ideale di casa, promuovendo e offrendo servizi di consulenza ed intermediazione immobiliare per ogni esigenza: abitativa, commerciale, industriale.
Studio Ca'Bella s. a. s. Via Ronzoni, 10 20811. Contatta l'inserzionista

Studio Ca Bella srlStudio Ca Bella srl
via giuseppe ronzoni 10
20811, Cesano Maderno (Monza Brianza)
Visualizza Telefono

INFORMAZIONI SULL'IMMOBILE

  • Riferimento: 01-Bilocale giardino
  • Tipologia: Appartamento in Vendita
  • Locali: 2 Locali ( 1 camera e un bagno)
  • Piano: Terra
  • Prezzo: 193.700 €
  • Prezzo al mq: 2.980 €
  • Riscaldamento: Autonomo
  • Giardino: Privato
  • Cantina: Si
  • Modificato il: 22/04/2026
  • Scheda: SC9642333

Stabile

  • Anno: 2026
  • Piano: Terra su 3 totali
A4

Mappa e indirizzo

Appartamento sito in dante alighieri, 18
20031 Cesano Maderno (Monza Brianza)
mappa mostra l'annuncio su mappa

Galleria Fotografica

Contatta l'inserzionista

Studio Ca Bella srl

Studio Ca Bella srl di Cesano Maderno propone in vendita questo immobile, contattali subito!

Annunci simili

Annunci immobiliari a Cesano Maderno (MB)

Copyright Š 2026 PCase.it. All rights reserved. Sede operativa MILANO. P.IVA 08508420968 - Condizioni d'uso e privacy