Preferiti

Sponsorizza

Stampa

Appartamento in vendita con giardino a Castellarano

  • 345.000€
  • 4 locali
  • 148 mq
  • Vendesi

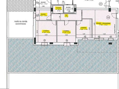
NUOVO APPARTAMENTO CON GIARDINO - TRESSANO DI CASTELLARANO In una splendida e recente zona residenziale, tranquilla ma comodissima a tutti i principali servizi come farmacia, scuole, palestra, parco pubblico e supermercati, proponiamo appartamento di nuova costruzione posto al piano terra, inserito in una palazzina residenziale moderna e curata.
Labitazione composta da un ampio e luminoso soggiorno con angolo cottura, due bagni, disimpegno e tre camere matrimoniali, spazi pensati per garantire comfort e funzionalit a tutta la famiglia.
Completa la propriet un giardino privato, ideale per momenti di relax allaperto o per chi desidera uno spazio verde esclusivo.
A servizio dellimmobile presente anche una autorimessa, che aggiunge praticit e comodit alla soluzione abitativa.
La consegna prevista indicativamente per fine aprile 2026 ed prevista la possibilit di personalizzare alcune finiture, per adattare limmobile ai propri gusti e alle proprie esigenze.
Una soluzione moderna e di qualit, perfetta per chi cerca unabitazione nuova, con spazi generosi e area esterna privata, in un contesto residenziale tranquillo ma vicino a tutti i servizi. Contatta l'inserzionista

Agenzia immobiliare HabitatAgenzia immobiliare Habitat
Viale San Lorenzo n.2
41049, Sassuolo (Modena)
Visualizza Telefono

INFORMAZIONI SULL'IMMOBILE

  • Riferimento: 6455/A3
  • Tipologia: Appartamento in Vendita
  • Locali: 4 Locali (3 camere con doppi servizi)
  • Piano: Terra
  • Prezzo: 345.000 €
  • Prezzo al mq: 2.331 €
  • Giardino: Privato
  • Spazio Auto: Box singolo
  • Modificato il: 16/02/2026
  • Scheda: SC9604028

Stabile

  • Anno: 2026
  • Piano: Terra su 3 totali
A4

Galleria Fotografica

Contatta l'inserzionista

Agenzia immobiliare Habitat

Agenzia immobiliare Habitat di Sassuolo propone in vendita questo immobile, contattali subito!

Annunci simili

Annunci immobiliari a Castellarano (RE)

Copyright Š 2026 PCase.it. All rights reserved. Sede operativa MILANO. P.IVA 08508420968 - Condizioni d'uso e privacy