Preferiti

Sponsorizza

Stampa

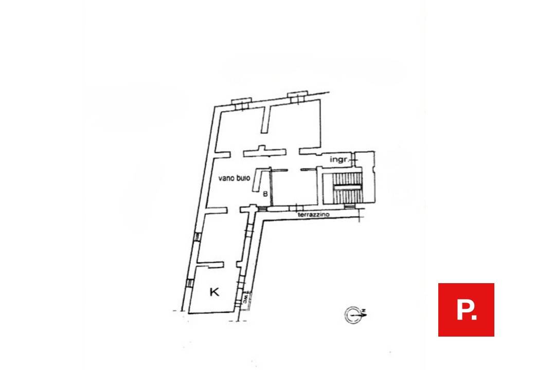
Appartamento in vendita da ristrutturare a Caserta in via pollio 12

  • 345.000€
  • 6 locali
  • 220 mq
  • Vendesi

Elegante Dimora Storica nel Cuore di Caserta Unopportunit unica tra fascino d'epoca e versatilit architettonica Situato nel pieno centro storico di Caserta, a pochi passi dalle vie principali e dal prestigio della Reggia, proponiamo in vendita un appartamento di ampia metratura (circa 220 mq) posto al primo piano di un suggestivo palazzo d'epoca (senza ascensore). La doppia esposizione(Est-Ovest) garantisce luce naturale durante tutto l'arco della giornata.
L'immobile gode di una doppia anima; i balconi con affaccio esterno offrono il prestigio della vita cittadina, mentre le finestre sulla corte interna garantiscono silenzio e riservatezza.
Incluso un prezioso posto auto all'interno della corte condominiale, una rarit assoluta per il centro storico.
L'appartamento, allo stato originale, richiede un intervento di ristrutturazione totale.
Questo rappresenta una "tela bianca" ideale per chi desidera personalizzare gli ambienti mantenendo il sapore storico della struttura.
La pianta generosa e la posizione centrale lo rendono perfetto per: Residenza di Lusso: Per chi cerca una dimora di rappresentanza con soffitti alti e ampi saloni.
Studio Professionale di Prestigio: La posizione centrale e la metratura consentono di creare un ufficio diretturale o uno studio associato di alto profilo.
Attivit Ricettiva (B&B/Boutique Hotel): La disposizione degli spazi si presta facilmente alla creazione di pi suite indipendenti, intercettando il forte flusso turistico della citt. Acquistare questo immobile nel centro storico significa investire in un pezzo di storia della citt, con la libert di modellarlo secondo le pi moderne esigenze di comfort o business. Contatta l'inserzionista

Immobiliare Petrella srlImmobiliare Petrella srl
Via Mazzini 54
81100, Caserta (Caserta)
Visualizza Telefono

INFORMAZIONI SULL'IMMOBILE

  • Riferimento: kA9398
  • Tipologia: Appartamento in Vendita
  • Locali: 6 Locali
  • Stato: da Ristrutturare
  • Bagni: 2
  • Prezzo: 345.000 €
  • Prezzo al mq: 1.568 €
  • Modificato il: 12/03/2026
  • Scheda: SC9618368

Stabile

  • Classe Energetica: n.d.

Mappa e indirizzo

Appartamento sito in via pollio, 12
81100 Caserta (Caserta)
Centro
mappa mostra l'annuncio su mappa

Galleria Fotografica

Contatta l'inserzionista

Immobiliare Petrella srl

Immobiliare Petrella srl di Caserta propone in vendita questo immobile, contattali subito!

Annunci simili

Annunci immobiliari a Caserta (CE)

Copyright Š 2026 PCase.it. All rights reserved. Sede operativa MILANO. P.IVA 08508420968 - Condizioni d'uso e privacy