Preferiti

Sponsorizza

Stampa

Appartamento in vendita da ristrutturare a Carloforte

  • 135.000€
  • 5 locali
  • 136 mq
  • Vendesi

Tipologia: Appartamento in centro storico.
Localizzazione: Carloforte, Isola di San Pietro, sud - ovest della Sardegna.
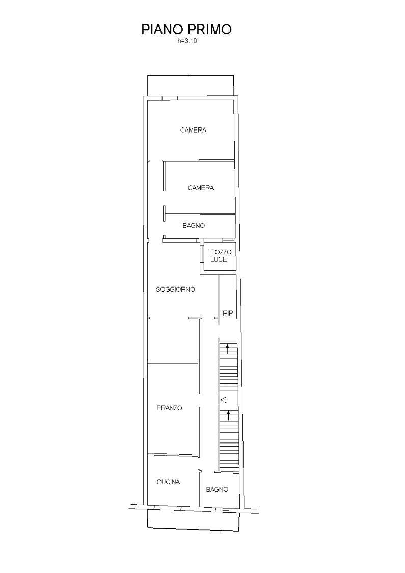
DESCRIZIONE: Nel cuore del centro storico di Carloforte, proponiamo in vendita ampio appartamento da ristrutturare, situato al primo piano e sviluppato interamente su un unico livello.
Limmobile attualmente composto da ingresso su vano scala comune, cucina, sala da pranzo, soggiorno, disimpegno con ripostiglio, due bagni, una camera matrimoniale e un ampio open-space facilmente trasformabile in seconda camera.
La disposizione interna, lineare e ben sviluppata, unitamente alla presenza di pi ambienti gi serviti da impianti, rende limmobile particolarmente interessante anche in ottica di investimento.
infatti tecnicamente possibile ipotizzare un frazionamento in due unit abitative indipendenti, previa realizzazione di un secondo accesso e ridistribuzione degli spazi interni.
A titolo esemplificativo, sono state elaborate ipotesi progettuali di divisione visibili nelle planimetrie allegate, che mostrano una possibile configurazione in due appartamenti distinti.
ESTERNI:Presenza di balconi che garantiscono luminosit e sfogo esterno agli ambienti principali. Contatta l'inserzionista

Vallebona Real Estate srlVallebona Real Estate srl
Corso Battellieri n. 4
09014, Legnano (Milano)
Visualizza Telefono

INFORMAZIONI SULL'IMMOBILE

  • Riferimento: V-DNO-1
  • Tipologia: Appartamento in Vendita
  • Locali: 5 Locali
  • Stato: da Ristrutturare
  • Bagni: 2
  • Prezzo: 135.000 €
  • Prezzo al mq: 993 €
  • Modificato il: 30/03/2026
  • Scheda: SC9575221

Stabile

G

Mappa e indirizzo

09014 Carloforte (Sud Sardegna)
mappa mostra l'annuncio su mappa

Galleria Fotografica

Contatta l'inserzionista

Vallebona Real Estate srl

Vallebona Real Estate srl di Legnano propone in vendita questo immobile, contattali subito!

Annunci simili

Annunci immobiliari a Carloforte (SU)

Copyright Š 2026 PCase.it. All rights reserved. Sede operativa MILANO. P.IVA 08508420968 - Condizioni d'uso e privacy