Preferiti

Sponsorizza

Stampa

Appartamento in vendita a Carcare

  • 250.000€
  • 5 locali
  • 100 mq
  • Vendesi

Immobile in corso di ultimazione consistente nella realizzazione di una nuova palazzina in Carcare, zona vicino al centro, composta di 12 alloggi in classe A+ suddivisi per 3 piani.
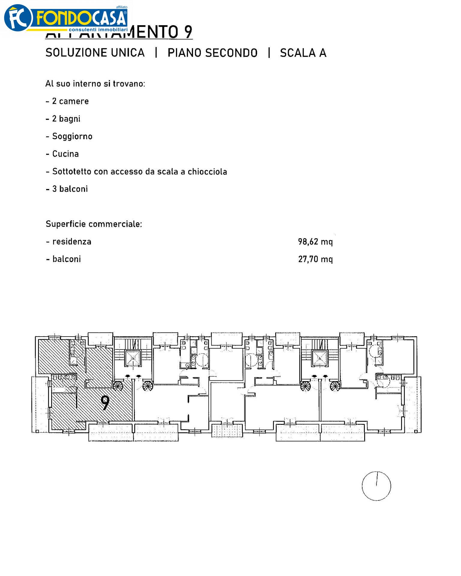
Quattro unit al piano terra con ampio giardino (vedi appartamento 1) Quattro unit al piano primo con tre balconi (vedi appartamento 5) Quattro unit al piano secondo con tre balconi (vedi appartamento 9) mansarde da abbinare agli alloggi.
Nella vendita compreso il box auto. Contatta l'inserzionista

ALBISOLA SUPERIOREALBISOLA SUPERIORE
Corso Mazzini 144
17011, Albisola Superiore (Savona)
Visualizza Telefono

INFORMAZIONI SULL'IMMOBILE

  • Riferimento: F166-714
  • Tipologia: Appartamento in Vendita
  • Locali: 5 Locali
  • Bagni: 2
  • Prezzo: 250.000 €
  • Prezzo al mq: 2.500 €
  • Modificato il: 08/11/2025
  • Scheda: SC9370348

Stabile

  • Classe Energetica: n.d.

Mappa e indirizzo

17043 Carcare (Savona)
mappa mostra l'annuncio su mappa

Galleria Fotografica

Contatta l'inserzionista

ALBISOLA SUPERIORE

ALBISOLA SUPERIORE di Albisola Superiore propone in vendita questo immobile, contattali subito!

Annunci simili

Annunci immobiliari a Carcare (SV)

Copyright Š 2026 PCase.it. All rights reserved. Sede operativa MILANO. P.IVA 08508420968 - Condizioni d'uso e privacy