Preferiti

Sponsorizza

Stampa

Appartamento bilocale in vendita con giardino a Bussero in via sandro pertini 10

  • 245.000€
  • 2 locali
  • 70 mq
  • Vendesi

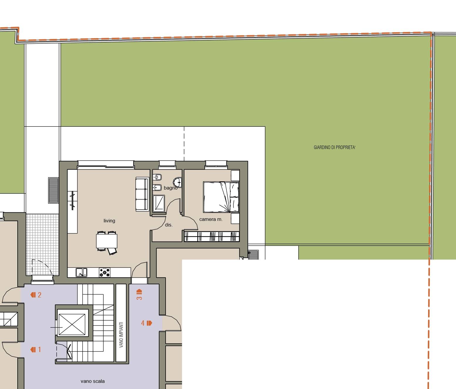
"RESIDENZA PERTINI", Bussero, vic. centro paese, nella zona tra le pi belle e tranquille del paese, prossima realizzazione di eccellente contesto residenziale ad elevate prestazioni energetiche CLASSE ENERGETICA A/3, "NO GAS". Appartamento di 2 locali, servizi con cucina a vista in ampia sala, giardino privato di 200 mq, cantina compresa e poss. box auto. Palazzina con ascensore.
Scelta materiali e possibilit di personalizzazioni interne oltre a predisposizione clima, tapparelle elettriche, riscaldamento centralizzato contabilizzato, ventilazione meccanica controllata, ampi serramenti scorrevoli e a battente.
Planimetrie di progetto in ufficio.
Planimetrie di progetto in ufficio.
Consegna prevista entro fine 2026. Da vedere! Contatta l'inserzionista

Media Group Snc di Restani Placido & C.Media Group Snc di Restani Placido & C.
Viale Europa 26
20041, Bussero (Milano)
Visualizza Telefono

INFORMAZIONI SULL'IMMOBILE

  • Riferimento: 92
  • Tipologia: Appartamento in Vendita
  • Locali: 2 Locali ( 1 camera e un bagno)
  • Prezzo: 245.000 €
  • Prezzo al mq: 3.500 €
  • Giardino: Privato - 200 Mq
  • Cantina: Si
  • Modificato il: 13/02/2026
  • Scheda: SC9499343

Stabile

  • Anno: 2025
A3

Mappa e indirizzo

Appartamento sito in via sandro pertini, 10
20060 Bussero (Milano)
mappa mostra l'annuncio su mappa

Galleria Fotografica

Contatta l'inserzionista

Media Group Snc di Restani Placido & C.

Media Group Snc di Restani Placido & C. di Bussero propone in vendita questo immobile, contattali subito!

Annunci simili

Annunci immobiliari a Bussero (MI)

Copyright Š 2026 PCase.it. All rights reserved. Sede operativa MILANO. P.IVA 08508420968 - Condizioni d'uso e privacy