Preferiti

Sponsorizza

Stampa

Appartamento in vendita da ristrutturare a Ascoli Piceno

  • 230.000€
  • 7 locali
  • 165 mq
  • Vendesi

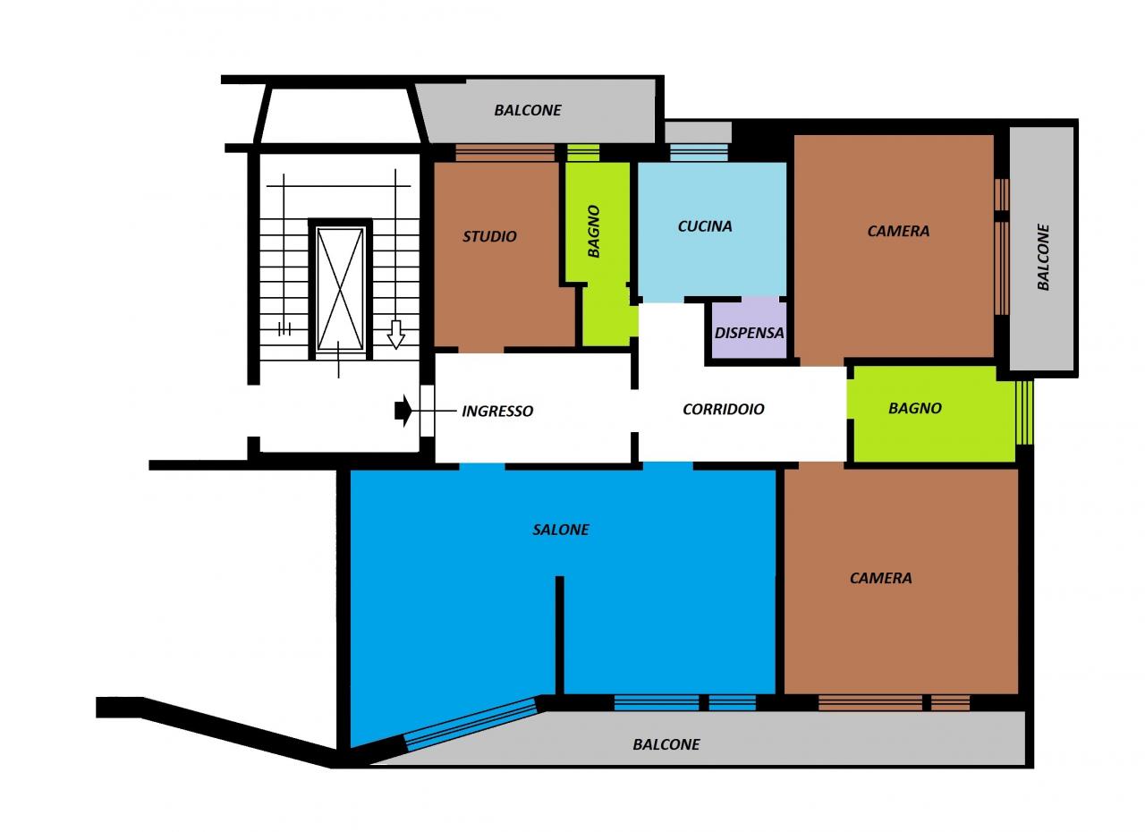
Ascoli Piceno, Campo Parignano appartamento di mq. 140. La propriet disposta al piano terzo e ultimo in palazzina con ascensore e misura complessivamente 140 mq. circa oltre a balconi di mq. 27 circa e fondaco di mq. 10. L' immobile si sviluppa su un unico livello ed composta da ingresso su corridoio, ampio soggiorno, cucina, due camere matrimoniali, studio, due bagni, tre balconi e fondaco al piano S1. Espsizione Nord - Est - Sud. Posto auto condominiale. Contatta l'inserzionista

Immobiliare Cecco d'AscoliImmobiliare Cecco d'Ascoli
Piazza G. Matteotti, 15
63100, Ascoli Piceno (Ascoli Piceno)
Visualizza Telefono

INFORMAZIONI SULL'IMMOBILE

  • Riferimento: 1081
  • Tipologia: Appartamento in Vendita
  • Locali: 7 Locali
  • Piano: Ultimo Piano
  • Stato: da Ristrutturare
  • Bagni: 2
  • Prezzo: 230.000 €
  • Prezzo al mq: 1.394 €
  • Riscaldamento: Autonomo
  • Spazio Auto: No
  • Modificato il: 08/09/2020
  • Scheda: SC9551239

Stabile

  • Piano: 3 su 3 totali
  • Classe Energetica: Immobile non soggetto a certificazione energetica

Contatta l'inserzionista

Immobiliare Cecco d'Ascoli

Immobiliare Cecco d'Ascoli di Ascoli Piceno propone in vendita questo immobile, contattali subito!

Annunci simili

Annunci immobiliari a Ascoli Piceno (AP)

Copyright Š 2026 PCase.it. All rights reserved. Sede operativa MILANO. P.IVA 08508420968 - Condizioni d'uso e privacy