Preferiti

Sponsorizza

Stampa

Appartamento in vendita a Appignano del Tronto in via pio potenza

  • 149.000€
  • 4 locali
  • 125 mq
  • Vendesi

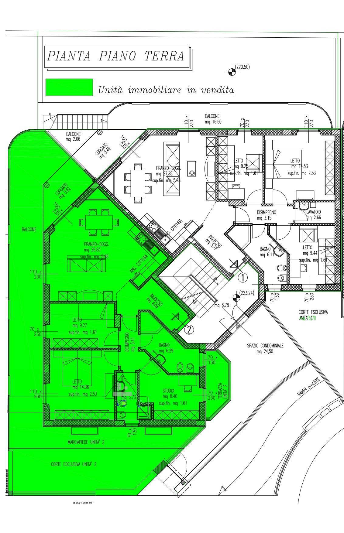
Appartamento in vendita Piano Terra con giardino ad Appignano del Tronto Rif. 1905 Limmobile delle dimensioni di 105 mq circa sito al piano terra all interno di una palazzina di recente costruzione composta da sole due unit abitative, con esposizione est-ovest-nord, risulta cos suddiviso: ingresso su soggiorno con angolo cottura, disimpegno con tre camere di cui una matrimoniale, una singola e uno studio, due bagni entrambi finestrati con box-doccia.
Lunit ha una corte perimetrale in parte pavimentata ed in parte adibita a giardino.
L' appartamento attualmente allo stato grezzo ha la possibilit di essere personalizzato sia negli spazi che nelle scelte dei materiali che da capitolato vengono forniti con gres porcellanato zona giorno e parquet zona notte.
Predisposizione canna fumaria zona giorno per eventuale camino.
Disponibilit di garage di varie metrature sito al piano seminterrato.
Classe energetica in corso di valutazione.
Questo appartamento in vendita a Appignano, rappresenta un ottimo investimento oltre che la residenza ideale per una giovane coppia in cerca di tranquillit e vicinanza a tutti i servizi.
Per ulteriori informazioni e per eventuali visite potete contattare il numero 0735.060012, siamo disponibili presso i nostri uffici siti a San Benedetto del Tronto in via L. Bianchi, 18. Contatta l'inserzionista

Agile ImmobiliareAgile Immobiliare
via bianchi 18
63074, San Benedetto del Tronto (Ascoli Piceno)
Visualizza Telefono

INFORMAZIONI SULL'IMMOBILE

  • Riferimento: 1905
  • Tipologia: Appartamento in Vendita
  • Locali: 4 Locali (3 camere con doppi servizi)
  • Piano: Terra
  • Stato: Ottimo
  • Prezzo: 149.000 €
  • Prezzo al mq: 1.192 €
  • Riscaldamento: Autonomo
  • Modificato il: 28/02/2024
  • Scheda: SC9561223

Stabile

  • Anno: 2015
  • Piano: Terra su 2 totali
  • Classe Energetica: n.d.

Mappa e indirizzo

Appartamento sito in via pio potenza
63031 Appignano del Tronto (Ascoli Piceno)
mappa mostra l'annuncio su mappa

Galleria Fotografica

Contatta l'inserzionista

Agile Immobiliare

Agile Immobiliare di San Benedetto del Tronto propone in vendita questo immobile, contattali subito!

Annunci immobiliari a Appignano del Tronto (AP)

Copyright Š 2026 PCase.it. All rights reserved. Sede operativa MILANO. P.IVA 08508420968 - Condizioni d'uso e privacy