Preferiti

Sponsorizza

Stampa

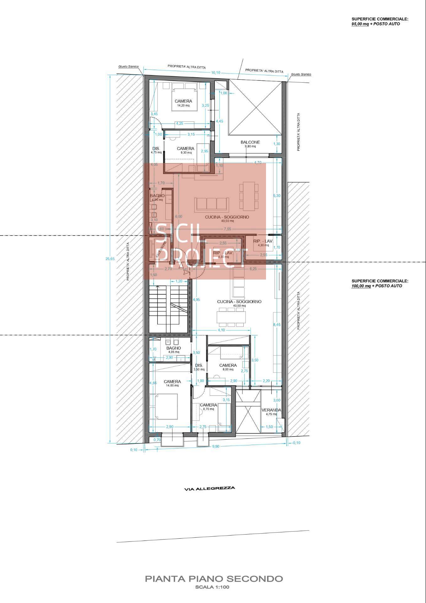
Appartamento in vendita a Alcamo in via allegrezza 32

  • 175.000€
  • 4 locali
  • 102 mq
  • Vendesi

Proponiamo in vendita un moderno complesso residenziale composto da n. 7 appartamenti in totale con posto auto in fase di costruzione situato ad Alcamo.
L'immobile, con previsto il completamento dei lavori nel 2025, si trova in una zona tranquilla e residenziale, vicino a tutti i servizi principali.
Gli appartamenti, serviti da ascensore, si trovano dal piano 1° al piano 4° di un edificio di nuova costruzione si caratterizzano da un'ampia metratura complessiva che v dai 102 mq con veranda fino a 136 mq + un ampia veranda al piano attico (prezzo di quest'ultimo 230.000 circa) L'ingresso si apre su un luminoso e spazioso soggiorno con cucina a vista, che permette di creare un ambiente unico e conviviale ***.*******.** zona notte composta da due o tre camere da letto in base agli appartamenti, di cui una con bagno privato e un secondo bagno finestrato.
Gli ambienti sono ben distribuiti e godono di ottima luminosit grazie alle ampie finestre presenti in ogni stanza.
L'appartamento verr consegnato non arredato con un elevato livello di comfort e stile.
L'immobile ideale per chi desidera una soluzione moderna e confortevole, adatta sia a giovani coppie che a famiglie.
Non perdere l'opportunit di acquistare un appartamento in una delle zone pi ricercate di Alcamo. Contatta l'inserzionista

Sicil ProjectSicil Project
Corso 6 Aprile 259
91011, Pontida (Bergamo)
Visualizza Telefono

INFORMAZIONI SULL'IMMOBILE

  • Riferimento: 241_ALC
  • Tipologia: Appartamento in Vendita
  • Locali: 4 Locali (3 camere con doppi servizi)
  • Piano: Primo
  • Prezzo: 175.000 €
  • Prezzo al mq: 1.716 €
  • Riscaldamento: Autonomo
  • Spazio Auto: No
  • Modificato il: 22/10/2024
  • Scheda: SC9575771

Stabile

  • Anno: 2024
  • Piano: 1 su 4 totali
  • Classe Energetica: n.d.

Galleria Fotografica

Contatta l'inserzionista

Sicil Project

Sicil Project di Pontida propone in vendita questo immobile, contattali subito!

Annunci simili

Annunci immobiliari a Alcamo (TP)

Copyright Š 2026 PCase.it. All rights reserved. Sede operativa MILANO. P.IVA 08508420968 - Condizioni d'uso e privacy