Preferiti

Sponsorizza

Stampa

Appartamento in vendita a Alba Adriatica in via gorizia snc

  • 164.000€
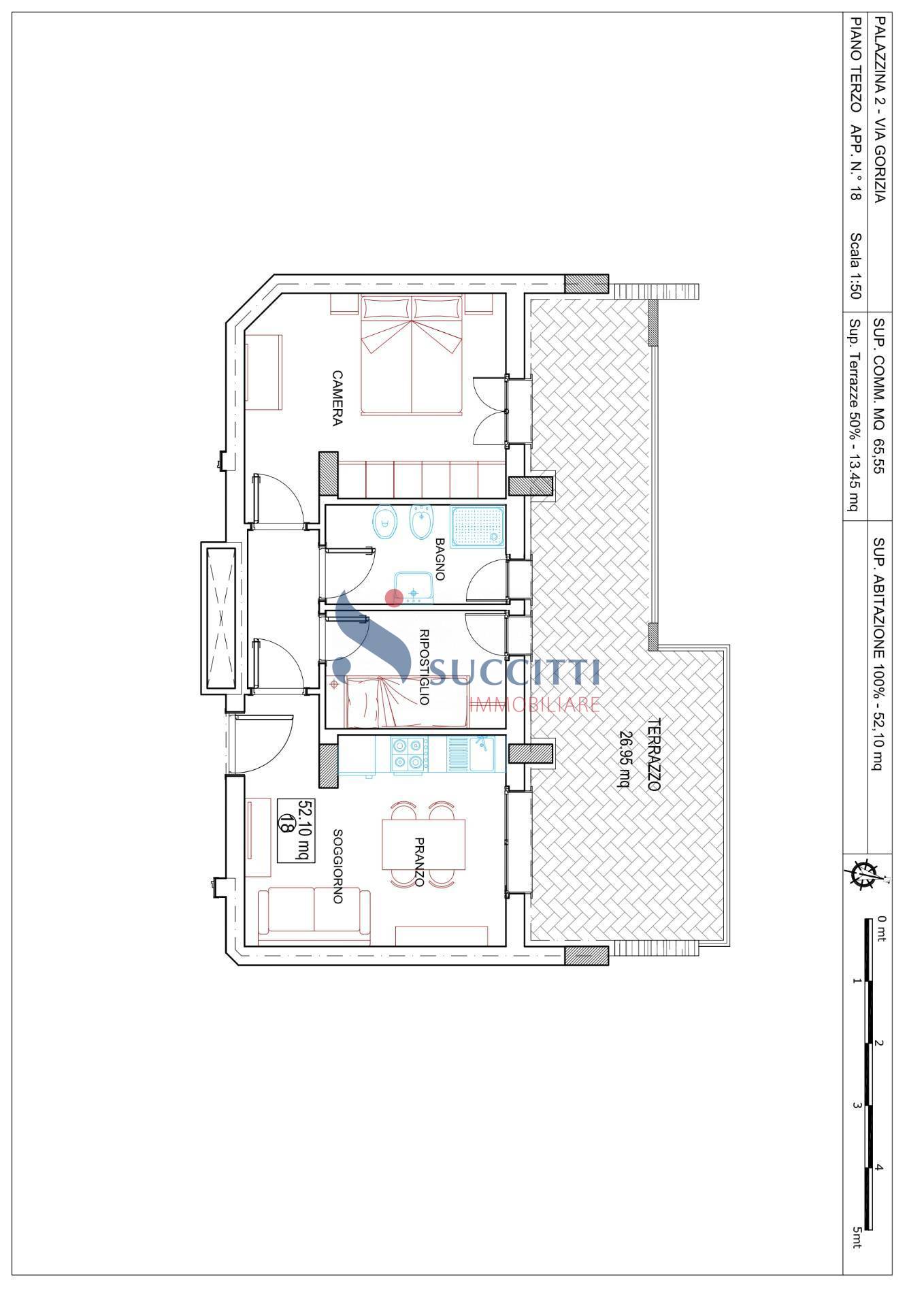
  • 3 locali
  • 55 mq
  • Vendesi

ALBA ADRIATICA Nuova Costruzione a Due Passi dal Mare Sta per nascere una nuova palazzina moderna nel cuore di Alba Adriatica, a pochi metri dalla spiaggia e vicina a tutti i servizi (scuole, supermercati, parchi). Gli appartamenti saranno comodi, ben rifiniti ed efficienti, con: Riscaldamento e raffrescamento ad aria Acqua calda con pompa di calore Infissi in PVC con vetri isolanti Tapparelle elettriche Portoncino blindato e videocitofono Pannelli fotovoltaici condominiali per risparmiare energia Disponibili bilocali e trilocali, a partire da ?164.000, con possibilit di acquistare garage, cantina o posto auto. Consegna entro fine 2026 Perfetto per chi vuole una prima casa moderna o una seconda casa al mare in una delle zone pi belle della costa.
Contattaci subito per avere maggiori informazioni su tutti gli immobili ancora disponibili! Per informazioni e visite contattare IMMOBILIARE SUCCITTI - Via G. Carducci n. 155 - Tortoreto (TE) - Tel. +39.0861.777443 *******@**********.*******.** il nostro sito internet ***.*******.** Contatta l'inserzionista

IMMOBILIARE SUCCITTIIMMOBILIARE SUCCITTI
Via Nazionale Adriatica, 45
64018, Tortoreto (Teramo)
Visualizza Telefono

INFORMAZIONI SULL'IMMOBILE

  • Riferimento: 0690
  • Tipologia: Appartamento in Vendita
  • Locali: 3 Locali (2 camere e un bagno)
  • Stato: Ottimo
  • Prezzo: 164.000 €
  • Prezzo al mq: 2.982 €
  • Riscaldamento: Autonomo
  • Spazio Auto: No
  • Modificato il: 12/06/2025
  • Scheda: SC9560717

Stabile

  • Anno: 2025
  • Piani Totali: 4
A4

Mappa e indirizzo

Appartamento sito in via gorizia, snc
64011 Alba Adriatica (Teramo)
mappa mostra l'annuncio su mappa

Galleria Fotografica

Contatta l'inserzionista

IMMOBILIARE SUCCITTI

IMMOBILIARE SUCCITTI di Tortoreto propone in vendita questo immobile, contattali subito!

Annunci simili

Annunci immobiliari a Alba Adriatica (TE)

Copyright Š 2026 PCase.it. All rights reserved. Sede operativa MILANO. P.IVA 08508420968 - Condizioni d'uso e privacy