Preferiti

Sponsorizza

Stampa

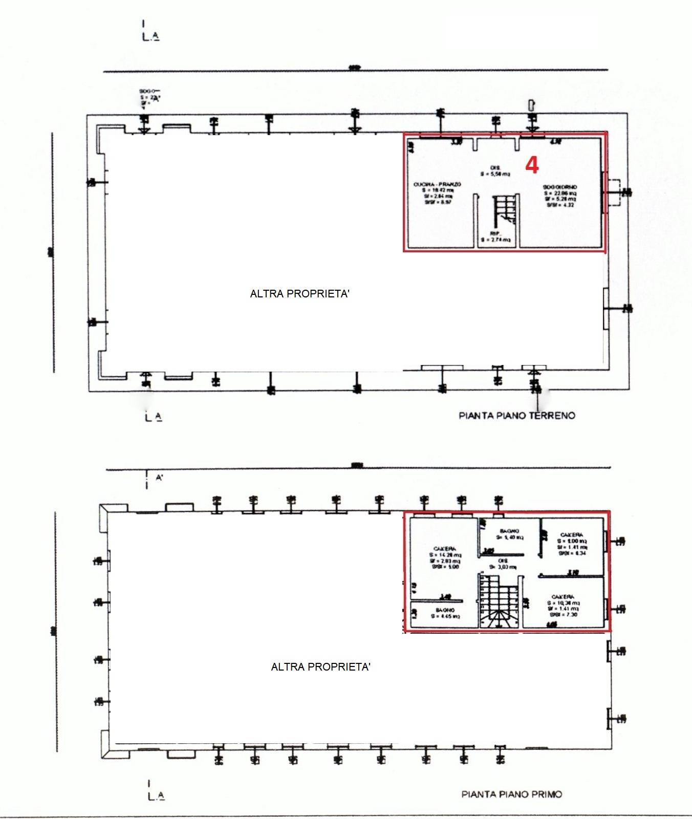
Rustico in vendita con giardino a Montespertoli

  • 355.000€
  • 6 locali
  • 160 mq
  • Vendesi

Rif. 1381 - Montespertoli Localit Botinaccio versante Montelupo ***.*******.** - In zona collinare e panoramica, con affacci nel verde vendesi porzioni di colonica perfettamente ristrutturate, con impianti a basso consumo energetico (classe A) con consegna prevista entro fine 2025. Unit tipo Sup Abitazione mq 160 ca. 6 vani compresa la cucina, 3 camere, 3 bagni-wc, cantina/taverna di mq 45 ca. e giardino privato di mq 1000 ca. Contatta l'inserzionista

Ag. Imm. SERGIO MONTAGNANIAg. Imm. SERGIO MONTAGNANI
Via D. Alighieri, 40
50025, Montespertoli (Firenze)
Visualizza Telefono

INFORMAZIONI SULL'IMMOBILE

  • Riferimento: 1381
  • Tipologia: Rustico in Vendita
  • Locali: 6 Locali
  • Bagni: 3
  • Prezzo: 355.000 €
  • Prezzo al mq: 2.219 €
  • Giardino: Privato - 1000 Mq
  • Modificato il: 29/07/2025
  • Scheda: SC9551635

Stabile

  • Piani Totali: 3
  • Classe Energetica: n.d.

Galleria Fotografica

Contatta l'inserzionista

Ag. Imm. SERGIO MONTAGNANI

Ag. Imm. SERGIO MONTAGNANI di Montespertoli propone in vendita questo immobile, contattali subito!

Annunci simili

Annunci immobiliari a Montespertoli (FI)

Copyright Š 2026 PCase.it. All rights reserved. Sede operativa MILANO. P.IVA 08508420968 - Condizioni d'uso e privacy