Preferiti

Sponsorizza

Stampa

Appartamento in vendita con giardino a Montecatini-Terme

  • 250.000€
  • 5 locali
  • 105 mq
  • Vendesi

PER MOTIVI DI PRIVACY, L'INDIRIZZO E IL PUNTATORE NELLA MAPPA SONO PURAMENTE INDICATIVI E NON CORRISPONDONO ESATTAMENTE ALL'UBICAZIONE DELLA PROPRIET?, A RICHIESTA DAREMO TUTTE LE INFORMAZIONI NECESSARIE Ledificio si trova in un contesto tranquillo nelle immediate vicinanze del centro di Montecatini Terme in unarea caratterizzata dalla presenza di piazze e strade alberate.
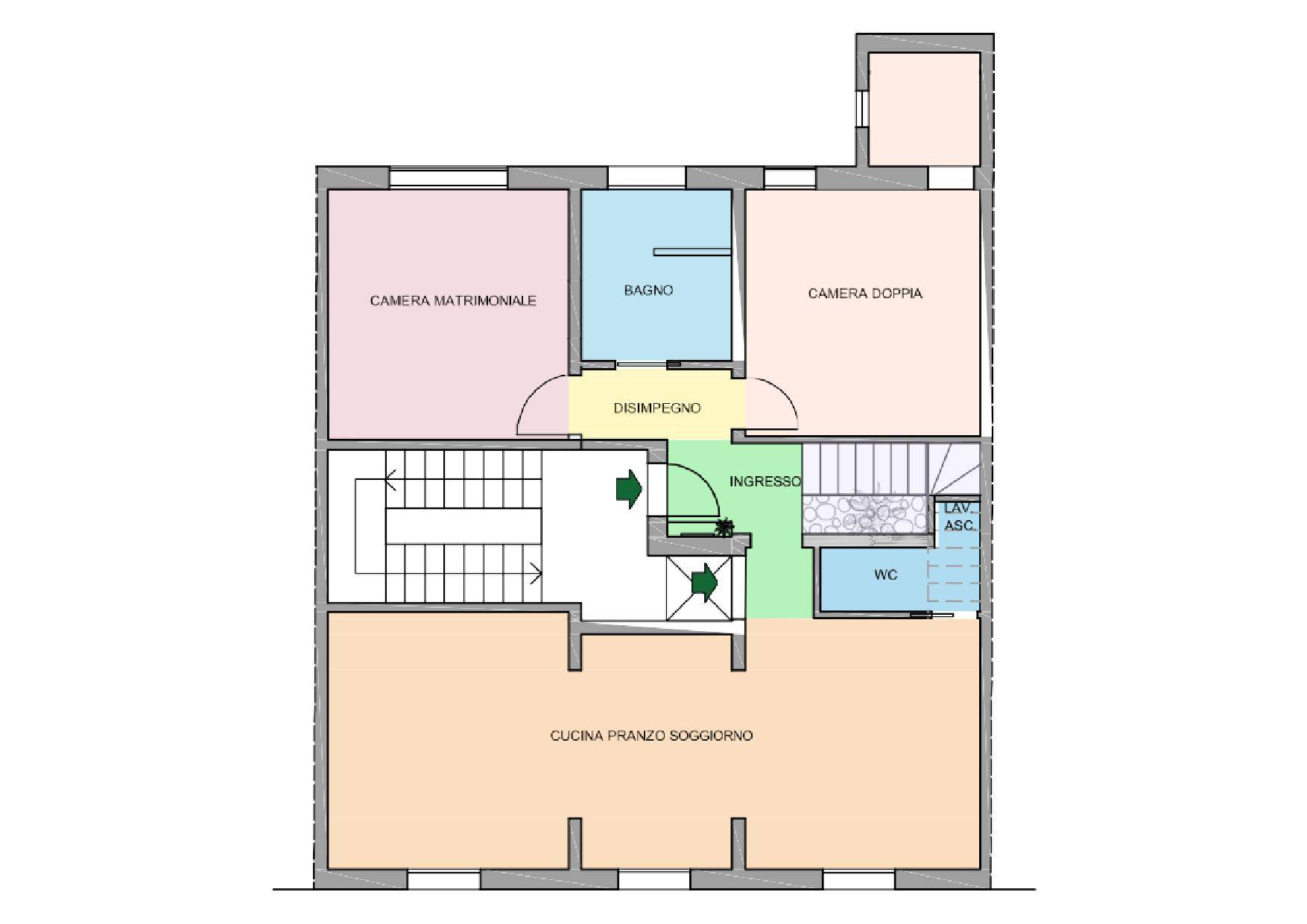
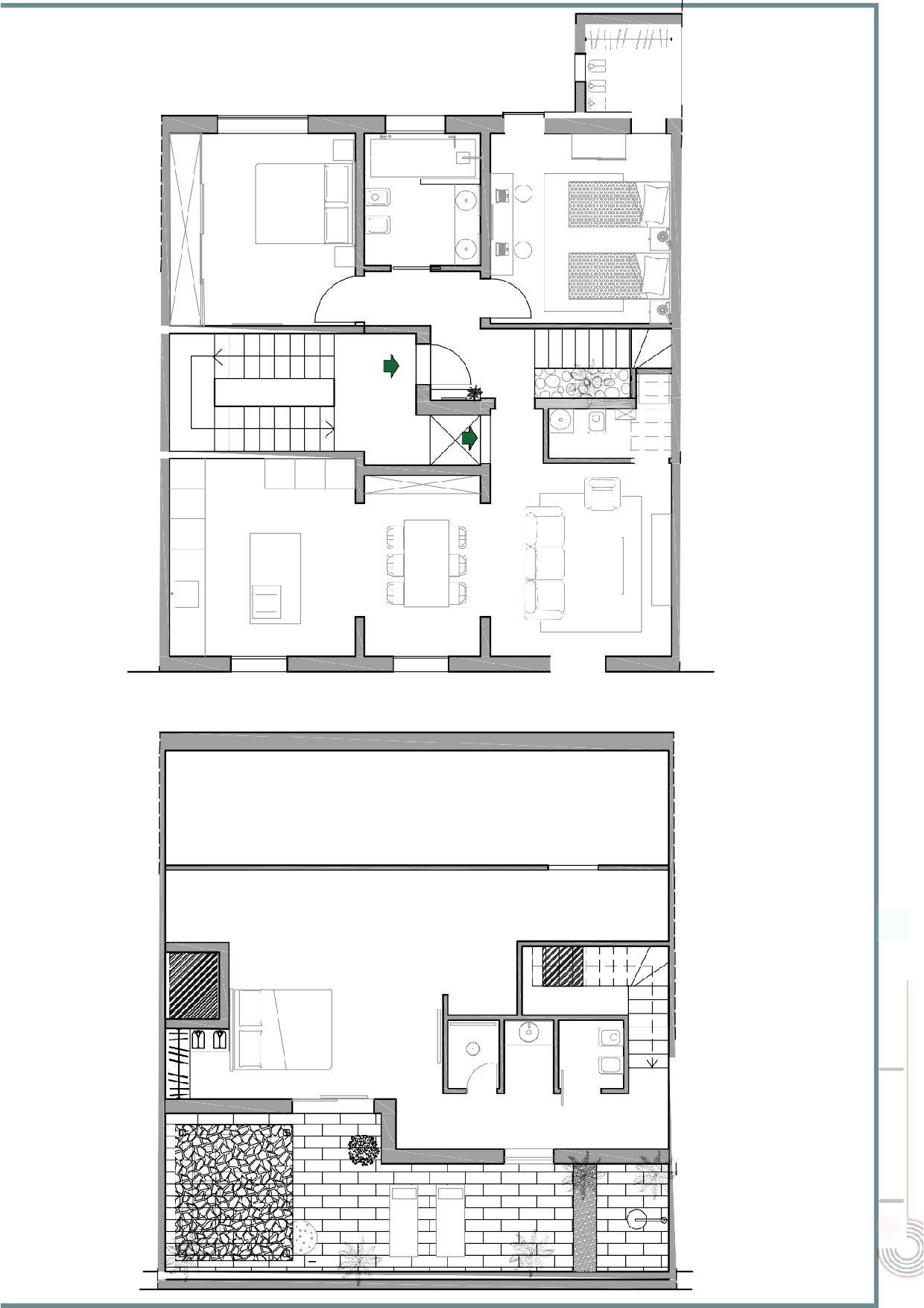
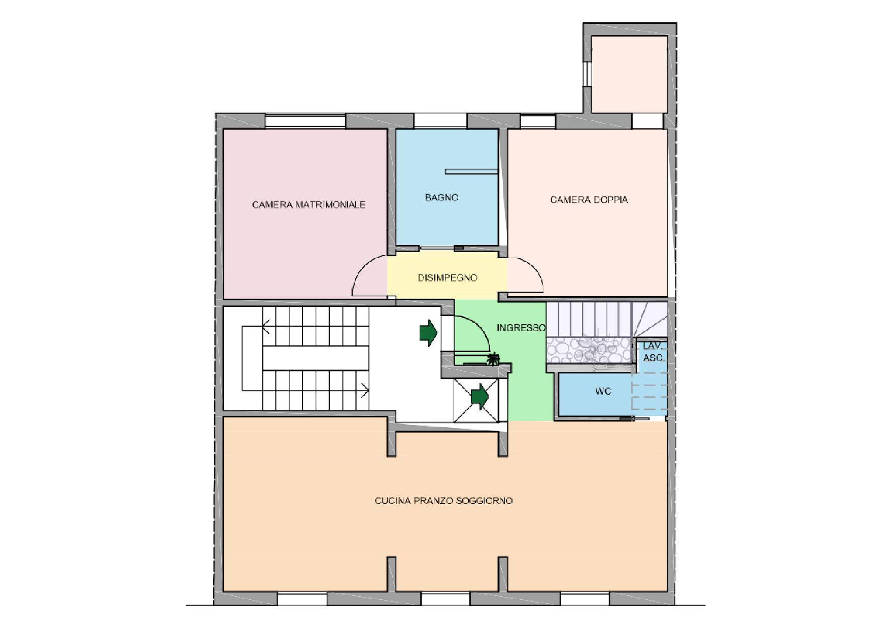
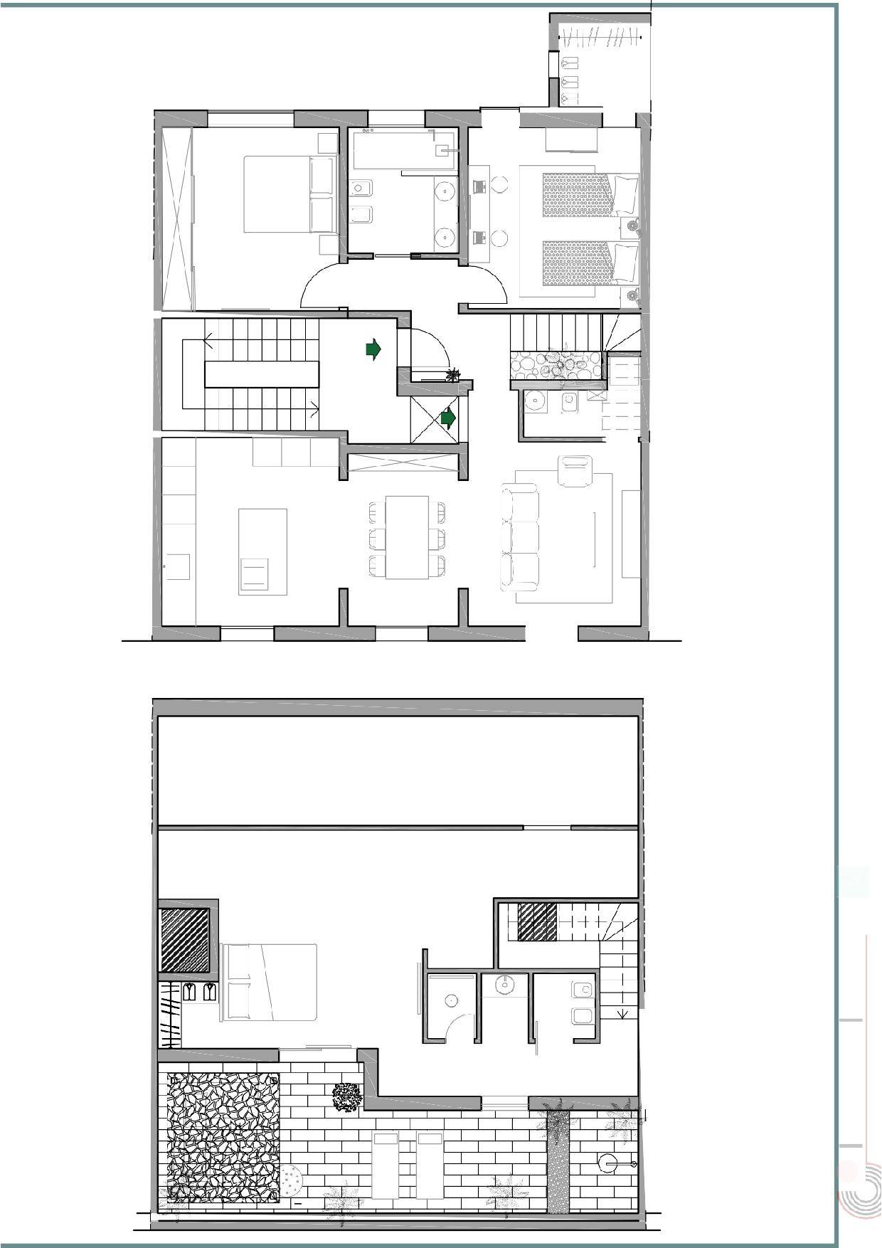
Il progetto di riqualificazione e interior design, realizzato dalluffcio tecnico prevede la ristrutturazione totale del fabbricato, con la creazione di 3 unit immobiliari indipendenti, una su ogni piano.
Lintento progettuale quello di mantenere i connotati delledificio storico dellinvolucro esterno, ma di ridistribuirlo internamente per creare spazi pi funzionali, di grande respiro, dal taglio moderno e luminoso.
Al piano terra lampio ingresso sar mantenuto e valorizzato: si prevede un primo vano chiuso da un cancello in ferro dove saranno posizionate le cassette delle lettere ed un secondo androne che porter allascensore e alle scale, chiuso da un altro portone, a maggiore sicurezza dei proprietari.
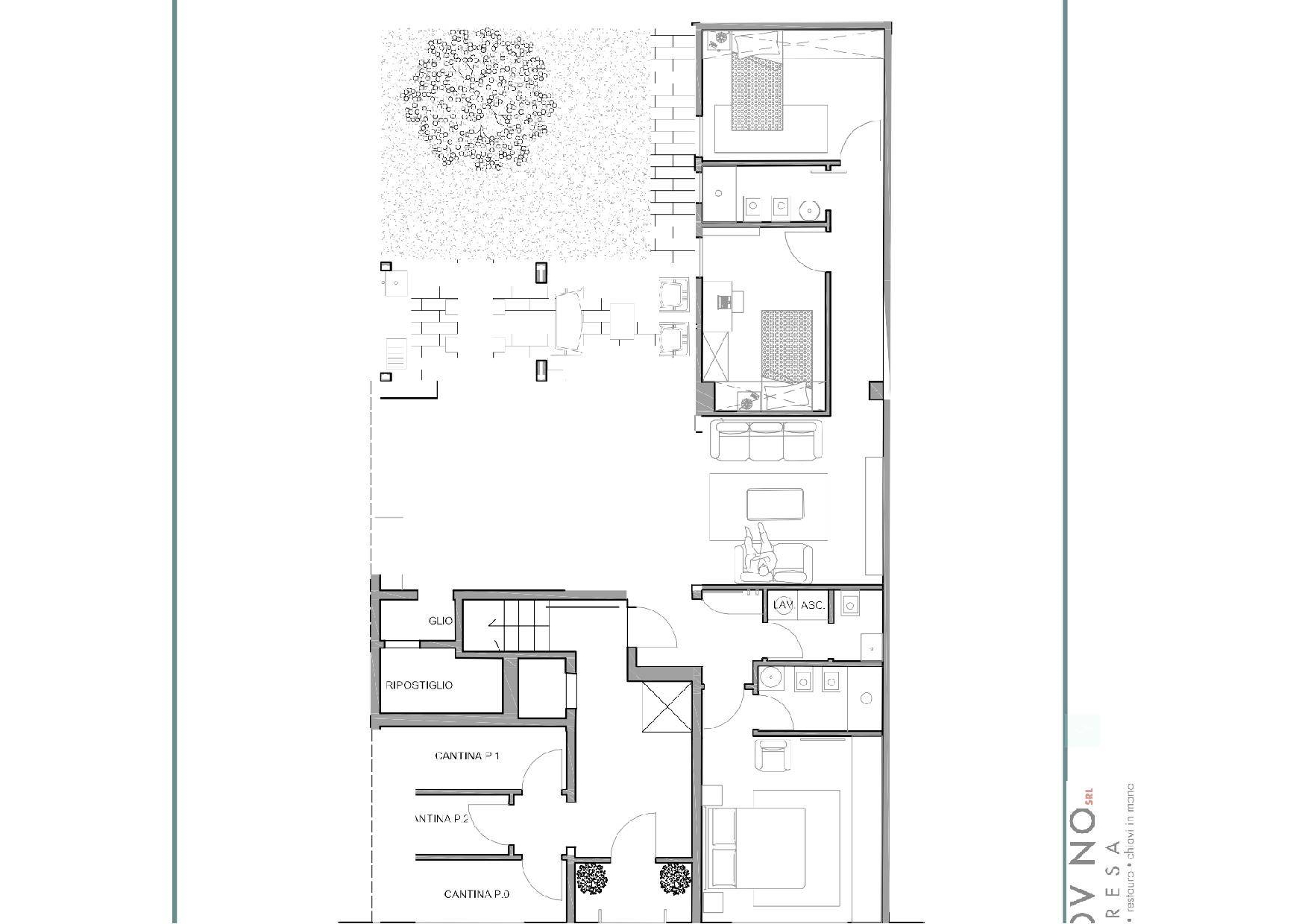
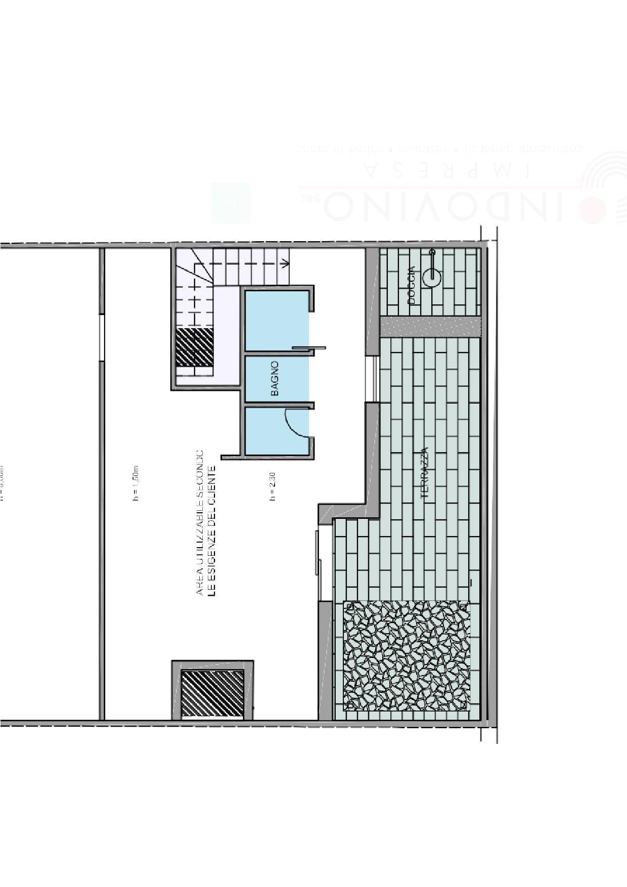
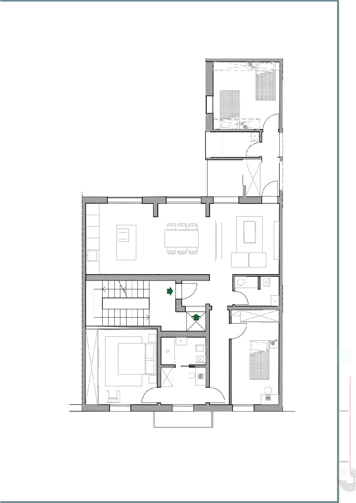
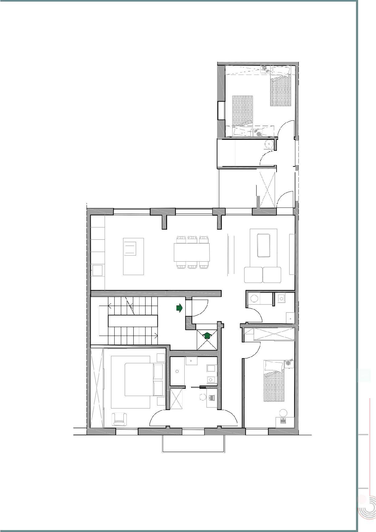
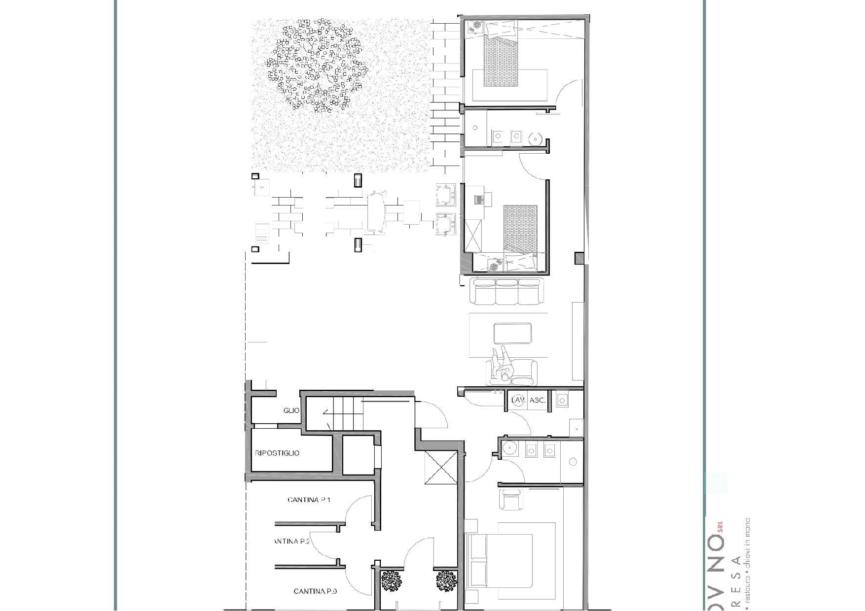
Appartamento piano terra di 105,00 mq + 45 m2 giardino + 5 mq di cantina Composto da: 3 camere, cucina/pranzo, soggiorno, due bagni con doccia di cui uno con lavanderia, ripostiglio.
DOTAZIONI: Riscaldamento a pavimento, Predisposizione impianto di climatizzazione estiva, Predisposizione impianto dallarme, Predisposizione per domotica smart, Infissi esterni in PVC di manifattura italiana Persiane in alluminio, Porte interne in legno, Portoncino blindato, Area attrezzata barbecue, Pergolato pavimentazioni esterne antiscivolo R11, Finiture di pregio.
RICHIESTA ?250.000 PIU IVA Contatta l'inserzionista

ASIP sas di Maurizio Bolognini e C.ASIP sas di Maurizio Bolognini e C.
località Bartoloni 19/a
55011, Pisa (Pisa)
Visualizza Telefono

INFORMAZIONI SULL'IMMOBILE

  • Riferimento: 1032
  • Tipologia: Appartamento in Vendita
  • Locali: 5 Locali
  • Piano: Terra
  • Stato: Ristrutturato
  • Bagni: 2
  • Prezzo: 250.000 €
  • Prezzo al mq: 2.381 €
  • Riscaldamento: Autonomo
  • Giardino: Privato - 45 Mq
  • Cantina: Si
  • Modificato il: 23/02/2026
  • Scheda: SC9568441

Stabile

  • Piano: Terra su 4 totali
  • Classe Energetica: Immobile non soggetto a certificazione energetica

Mappa e indirizzo

51016 Montecatini-Terme (Pistoia)
mappa mostra l'annuncio su mappa

Galleria Fotografica

Contatta l'inserzionista

ASIP sas di Maurizio Bolognini e C.

ASIP sas di Maurizio Bolognini e C. di Pisa propone in vendita questo immobile, contattali subito!

Annunci simili

Annunci immobiliari a Montecatini-Terme (PT)

Copyright © 2026 PCase.it. All rights reserved. Sede operativa MILANO. P.IVA 08508420968 - Condizioni d'uso e privacy