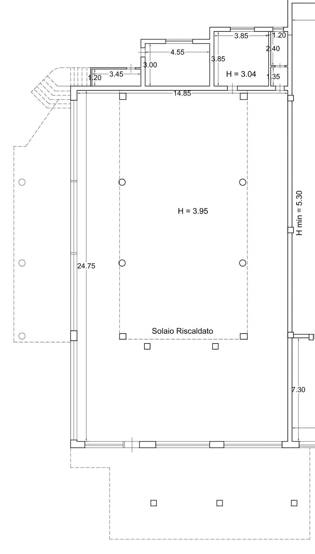
(Rif. A2500) AFFITTO o VENDITA a NERETO in centro storico, Via Matteotti, LOCALE COMMERCIALE recentemente ristrutturato di MQ 220 frazionabile per varie metrature, con 2 ampie vetrine fronte strada e...
Stai cercando un locale commerciale in una posizione di rilievo in Abruzzo? Ecco la soluzione che fa per te: un immobile situato in una posizione di rilievo a Nereto, in provincia di Teramo. Ecco...
Stai cercando Case e Immobili in affitto a Nereto? Su PCase.it puoi trovare diversi annunci immobiliari di Case e Immobili in affitto a Nereto affini alla tua ricerca, ogni giorno tanti nuovi inserimenti e abbassamenti di prezzo da agenzie immobiliari di fiducia, costruttori esperti e privati che offrono le migliori case e immobili corredate da descrizioni complete, foto, video e mappe. Scopri com'è facile trovare subito la tua nuova casa online in affitto a Nereto.