OTTIMO INVESTIMENTO PER IMPRESA DI COSTRUZIONI Vendesi lotto di terreno edificabile, in lottizzazione di 2.400 mc nel Comune di Villorba. Comodo a tutti i principali servizi quali centro commerciale,...
TERRENO EDIFICABILE CON PROGETTO DI LOTTIZZAZIONE APPROVATO Villorba (TV) TERRENO EDIFICABILE DI 4.000 METRI CUBI Vendesi lottizzazione con progetto approvato di 4.000 metri cubi su superficie di...

In vendita a Villorba, localit Fontane, lotto edificabile in pieno centro del paese. Mq. 1114 pianeggiante con indice 1:1,02 per complessivi mc. 1308 Lotto ad intervento diretto con due accessi...
Vendesi terreno edificabile con destinazione residenziale in Comune di Villorba (localit Fontane chiesa vecchia). L'area di che trattasi ha forma rettangolare e costituisce l'ultimo appezzamento di...

Cinque lotti edificabili facenti parte di una lottizzazione residenziale in fase di realizzazione. I lotti sono accorpabili tra loro e sviluppano un totale di 3.179 mc in una superficie (al netto...

TV NORD (COMUNE DI VILLORBA) LATERALE VIALE DELLA REPUBBLICA Terreno edificabile di 4.478 mq. gia' urbanizzato , con accesso da due strade ove sono realizzabili 8.520 mc per un totale di 2.840 mq....

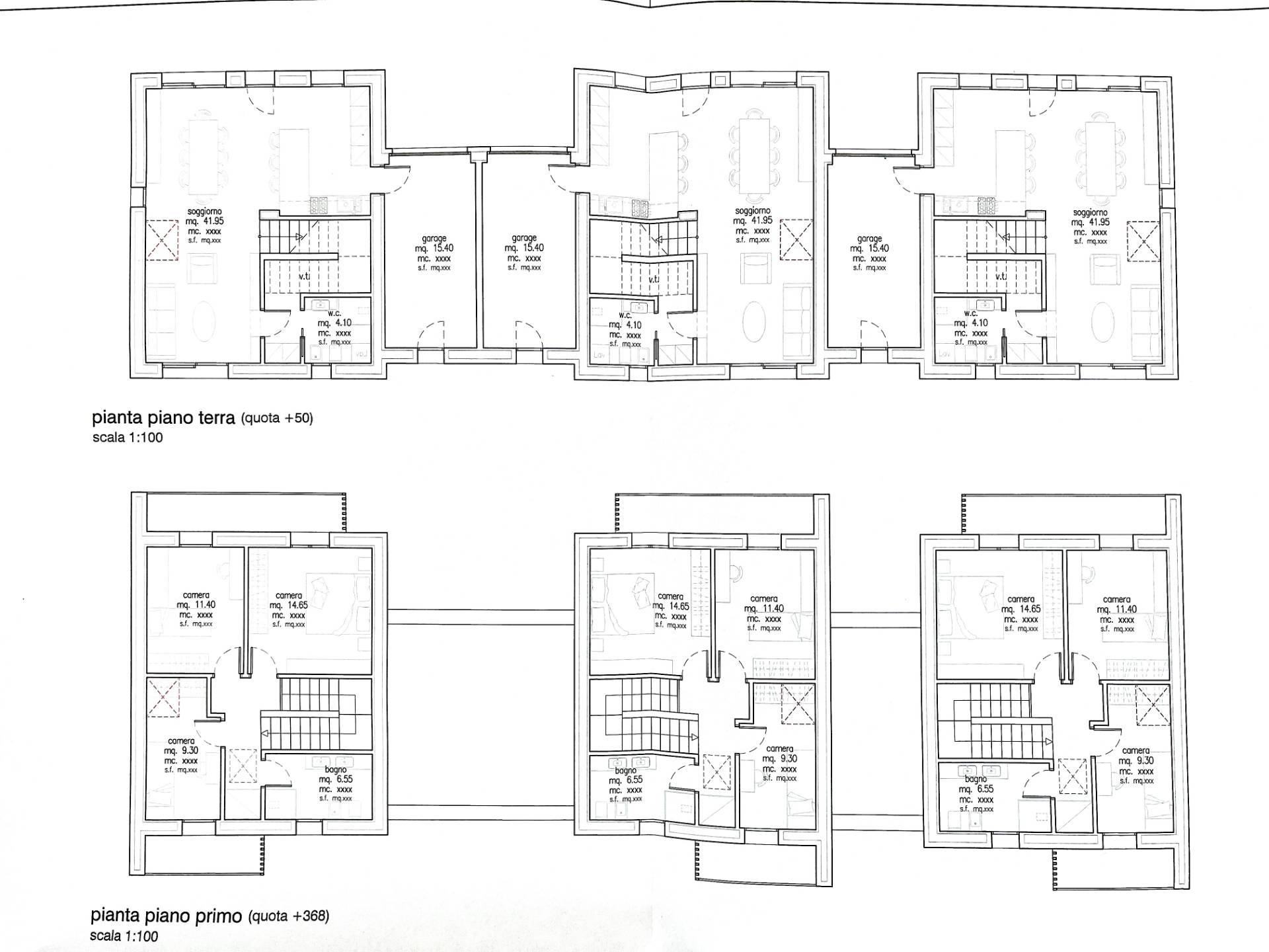
Lotto di terreno con la possibilit di edificare 5.137 MC. Il lotto anche frazionabile in due lotti piu' piccoli .Attualmente vi uno studio per la realizzazione di villette abbinate. Il lotto fa parte...

TREVISO NORD Terreno Edificabile: Versatilit e Potenziale Illimitato - RIF. 3141 L'OPPORTUNIT? PERFETTA PER IL TUO PROGETTO: RESIDENZIALE O COMMERCIALE Situato nella ricercata prima periferia nord di...
inserito il 14 mar 2026 in Terreni edificabili in vendita a Villorba
Cerchi Terreni edificabili in vendita a Villorba ma non hai trovato nulla di tuo interesse?
Utilizza il nostro modulo di richiesta generica ed invia una email di richiesta alle nostra agenzie affiliate!

Terreno edificabile di 1.400 mq dove possibile edificare 700 mc. Ideale per realizzare una villa singola di generose dimensioni o una bifamiliare. Il contesto di grande respiro ovvero vi un basso...
Stai cercando Terreni edificabili in vendita a Villorba? Su PCase.it puoi trovare diversi annunci immobiliari di Terreni edificabili in vendita a Villorba affini alla tua ricerca, ogni giorno tanti nuovi inserimenti e abbassamenti di prezzo da agenzie immobiliari di fiducia, costruttori esperti e privati che offrono i migliori terreni edificabili in vendita a villorba corredati da descrizioni complete, foto, video e mappe. Scopri com'è facile trovare subito il tuo nuovo terreno online in vendita a Villorba.