zona arancio
Rif.Ag. 67711 - In elegante palazzo Liberty che si affaccia sulle antiche Mura di Lucca, si vende un appartamento su 2 livelli di circa complessivi mq. 100 con resede privata ed ingresso...
zona ombreglio di brancoli
rif.ag. 67422 - tipica grande casa di paese indipendente, libera su 4 lati, da ristrutturare con bella vista panoramica, per una superficie di circa mq. 200 disposta su 3 piani con terreno a corredo....
zona deccio di brancoli
Rif.Ag. 67388 - Sulle colline della Brancoleria casa di paese con splendida vista panoramica disposta su 3 piani in condizioni originarie che necessitano di lavori di ammodernamento. Internamente si...
zona balbano
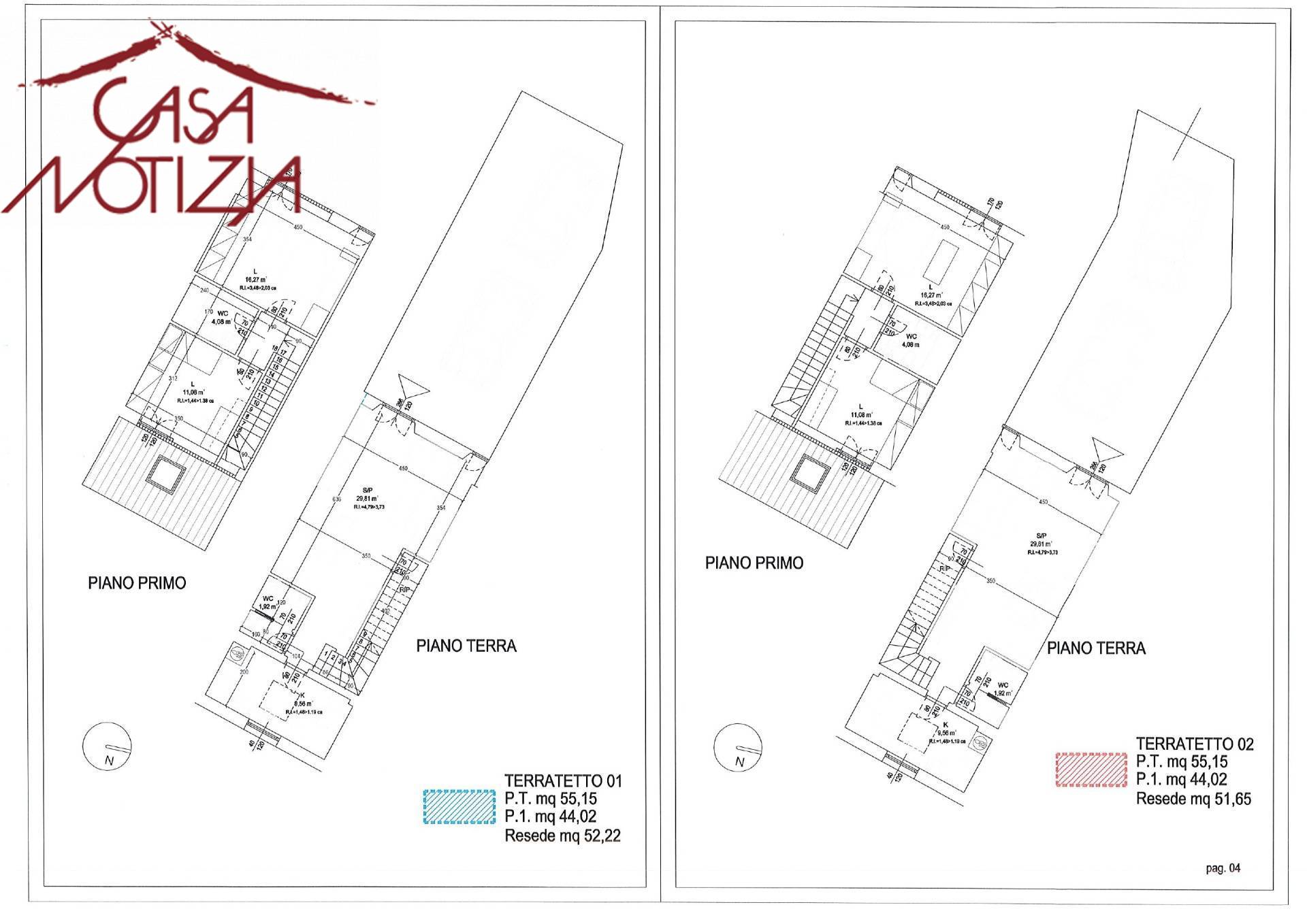
Rif.Ag. C64 - A pochi km da Lucca, terratetto finale al grezzo di 120 mq disposto su tre livelli corredato da capanna adiacente l'abitazione e giardino esclusivo. L'immobile è composto al piano terra...

Terratetto in fase di costruzione in vendita a Lucca, zona Circonvallazione. In zona strategica, a due passi dalle Mura Urbane, l'agenzia immobiliare Casanotizia lieta di presentare terratetto...
inserito il 30 dic 2025zona cappella
Rif.Ag. C33 - In zona verde e soleggiata, a 6 km dalle Mura, terratetto finale di 48 mq da ristrutturare completamente corredato da 47 mq di giardino esclusivo adiacente l'abitazione. L'immobile è...
zona montuolo
Rif.Ag. C65 - A 4 km dal centro, in zona interna, terratetto centrale da ristrutturare di 100 mq c.a disposto su tre livelli composto al piano terra da due vani, bagno con vasca e ripostiglio; al...
zona santa maria del giudice
Rif.Ag. N007R - S. MARIA DEL GIUDICE (LUCCA). In posizione silenziosa, a pochi chilometri dal centro di Lucca, vendiamo un grazioso terratetto con ingresso indipendente disposto su 3 livelli per un...
Cerchi Case indipendenti in vendita a Lucca ma non hai trovato nulla di tuo interesse?
Utilizza il nostro modulo di richiesta generica ed invia una email di richiesta alle nostra agenzie affiliate!
Rif.Ag. B2149 - villetta singola di recente costruzione corredata da giardino privato, garage e posto auto, si compone di: ingresso, soggiorno con angolo cottura, due camere e bagno al piano terra,...
inserito il 19 nov 2025zona santa maria a colle
Rif.Ag. 129_SANTA MARIA A COLLE - Proponiamo terratetto angolare in vendita di 150 mq distribuiti su 6 locali, Situato nella zona di Santa Maria A Colle, gode di un ingresso indipendente e si trova...
zona san lorenzo a vaccoli
Rif.Ag. trf slv 55 - SAN LORENZO A VACCOLI, in zona tranquilla proponiamo terratetto finale di circa 85 mq da ristrutturare, composto da: ingresso, soggiorno, cucina abitabile e sottoscala al piano...
zona deccio di brancoli
Rif.Ag. trf 90 - LUCCA- località DECCIO DI BRANCOLI, con splendida vista sui borghi proponiamo porzione di rustico in pietra di circa 55 mq, ristrutturato nel 2010, composto da: ingresso in...
Specifica meglio la tua ricerca di Case indipendenti a Lucca aggiungendo una caratteristica delle seguenti: