vicinanze Via Don Giovanni Minzoni
Grosseto Zona centrale in ottimo complesso residenziale all'interno galleria Oberdan in zona centrale servita da tutti i servizi proponiamo in vendita stupendo appartamento al terzo piano con...
vicinanze Via Don Giovanni Minzoni
RIF. CI 1549 - Bella villa unifamiliare circondata da un ampio giardino recintato dove ubicato un box auto. La villa posta su due livelli e cos suddivisa: dal portico si accede all' ampio ingresso...
vicinanze Via Don Giovanni Minzoni
D/CD3547 - Nel centro strategico della città di Grosseto, adiacente piazza Rosselli, zona con alto passaggio veicolare e pedonale con nuove e importanti aperture di attività commerciali, si trova...
vicinanze Via Don Giovanni Minzoni
La nostra agenzia propone in esclusiva, in palazzo storico composto da sole cinque abitazioni, un appartamento al primo piano su due, privo di ascensore, che incarna perfettamente il connubio tra...

vicinanze Via Don Giovanni Minzoni
SERVIZIO "BASE" : SOLO FORMULAZIONE E PRESENTAZIONE DELL'OFFERTA AD EURO 250 SERVIZIO "COMPLETO" : OLTRE AL COSTO DEL SERVIZIO BASE PROVVIGIONE DI AGENZIA DI ? 1500,00 CHE MATURERA' SOLO IN CASO DI...
vicinanze Via Don Giovanni Minzoni
TOSCANA. GROSSETO. ZONA CENTRALE. Nella parte centrale di Grosseto, a due passi dalla piazza della Vasca, e dal parcheggio pubblico, proponiamo la vendita di un ampio locale commerciale situato al...
vicinanze Via Don Giovanni Minzoni
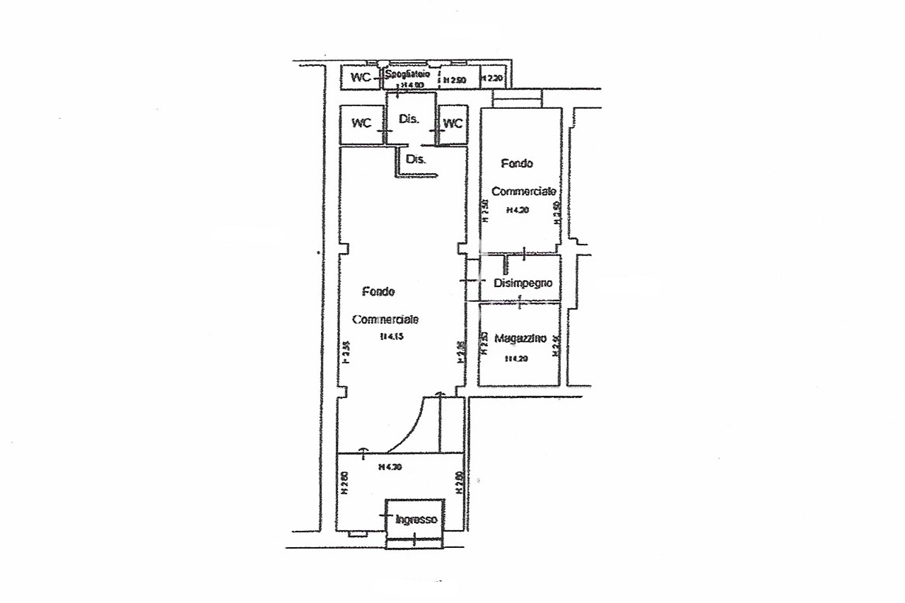
Proponiamo,in esclusiva, fondo commerciale, piano terra, circa 65 mq, ristrutturato integralmente nel 2023. Spazi ben distribuiti in due vani operativi, doppi servizi di cui uno finestrato,...
vicinanze Via Don Giovanni Minzoni
GROSSETO Zona Regioni in piccola ed ottima palazzina proponiamo in vendita interessante appartamento di circa 160 mq 2 piano su 3 con ascensore l'appartamento è composto da grande ingresso salone...
Cerchi Case e Immobili in vendita in Via Don Giovanni Minzoni a Grosseto ma non hai trovato nulla di tuo interesse?
Utilizza il nostro modulo di richiesta generica ed invia una email di richiesta alle nostra agenzie affiliate!
vicinanze Via Don Giovanni Minzoni
D/CD3793_4 - App 2D - ATTUALMENTE LOCATO FINO AL 31/03/2026. OTTIMO INVESTIMENTO. Il Borghetto è un esclusivo complesso residenziale composto da sole 14 unità abitative, immerso in rigogliosi...
vicinanze Via Don Giovanni Minzoni
Situato nel cuore di Grosseto, la nostra agenzia propone in esclusiva elegante appartamento nello storico Palazzo Cosimini, zona ricca di servizi e comodit. Con una superficie di 168 mq, questo...
vicinanze Via Don Giovanni Minzoni
D/CD3135 - L'agenzia immobiliare "Desideri" propone in esclusiva ottimo investimento. Fondo commerciale in via Oberdan attualmente locato. L'immobile si i trova a piano terra, in una via ad alto...
vicinanze Via Don Giovanni Minzoni
GROSSETO ZONA REGIONI - L'appartamento in vendita si trova in una delle piu' tranquille e ricercate di Grosseto. Attualmente l'immobile e' dato in locazione, il che lo rende una perfetta opportunita'...
Prova a cercare anche nelle vie adiacenti a Via Don Giovanni Minzoni a Grosseto, ti proponiamo i seguenti indirizzi: