Formigine, rif. b2271, proponiamo la vendita , in zona adiacente al centro storico, di un appartamento su due livelli .- Di recente costruzione , OTTIME FINITURE INTERNE e LIBERO A BREVE. ingresso in...
Formigine, rif. b3797d2.2a.- Abitare in villa ! Prenotiamo appartamento al piano primo, in nuova costruzione , in Classe A4 NZEB ! In zona adiacente al centro, nuova piccola lottizzazione di pregio ;...

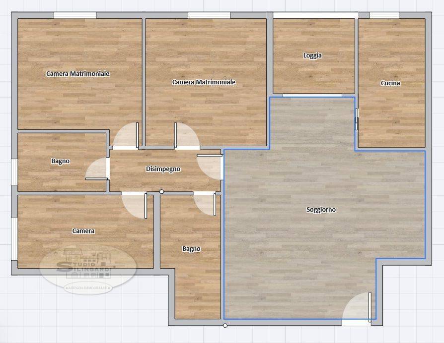
Formigine, b3142 .- Libero a breve, appartamento in ottimo stato di manutenzione, ingresso in soggiorno, cucina, tre camere e due bagni, terrazzino coperto. Garage al piano interrato .-
inserito il 14 mar 2026 in Appartamenti 5 locali o pių in vendita a FormigineStai cercando Appartamenti 5 locali o pių in vendita a Formigine? Su PCase.it puoi trovare diversi annunci immobiliari di Appartamenti 5 locali o pių in vendita a Formigine affini alla tua ricerca, ogni giorno tanti nuovi inserimenti e abbassamenti di prezzo da agenzie immobiliari di fiducia, costruttori esperti e privati che offrono i migliori appartamenti 5 locali o pių in vendita a formigine corredati da descrizioni complete, foto, video e mappe. Scopri com'č facile trovare subito la tua nuova casa online in vendita a Formigine.
La tua nuova casa in vendita a Formigine č a portata di clic!