zona capalle
a25408 - Campi Bisenzio / Capalle - Via Castronella In zona industriale, in forte sviluppo dato anche il prossimo cambio della viabilità, IMMOBILIARE BELVEDERE propone in vendita ampio laboratorio di...
zona antella
a24061 - BAGNO A RIPOLI/ANTELLA: A due passi dal centro del paese proponiamo in vendita ampio e luminoso magazzino/cantina di 58mq ca. di categoria catastale C/2 situato al piano seminterrato di...
zona calzaiolo
a25157 - SAN CASCIANO VAL DI PESA/VIA DI SAN VITO DI SOTTO: All'interno della zona industriale, nei pressi dell'uscita del raccordo Firenze - Siena ed immerso nel verde, IMMOBILIARE BELVEDERE propone...
Immobile industriale con abitazione e showroom Borgo San Lorenzo (FI)Complesso indipendente e recintato Superficie totale oltre 2.400 mq In vendita in Toscana, nel comune di Borgo San Lorenzo (FI),...
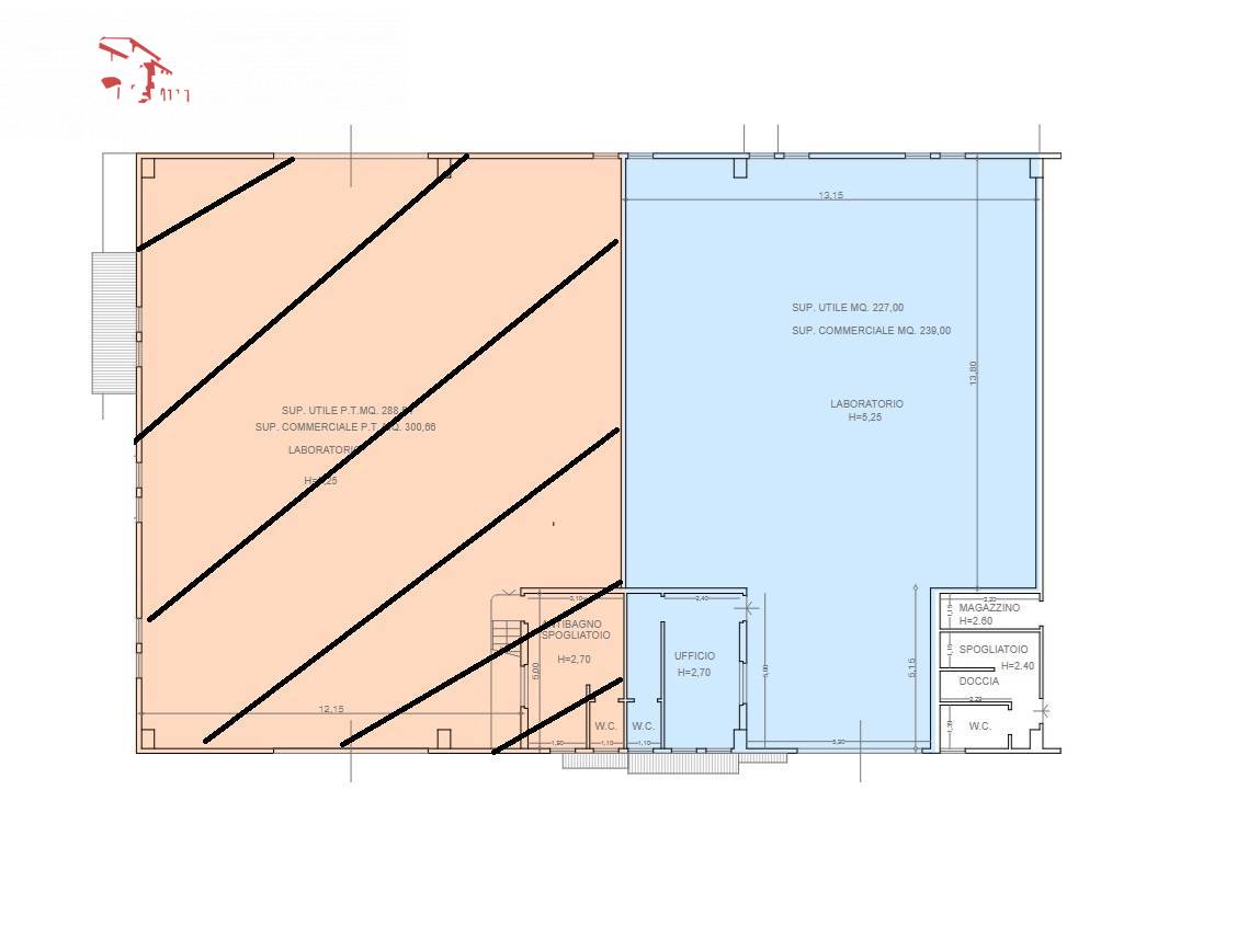
A23325 - SESTO FIORENTINO/OSMANNORO - VIA DEL CANTONE: All'interno della zona industriale e in prossimità dello svincolo autostradale, proponiamo in vendita ampio e luminoso capannone (categoria...
SESTO FIORENTINO (Piazza Vittorio Veneto - via Savonarola) vendiamo un capannone composto da 4 magazzini indipendenti di mq. 125 al piano, oltre doppio volume, ingresso in piazzale a comune con passo...
rif.ag. p/0280 - montelupo fiorentino - rif p/0280 - baricentrico tra firenze e pisa, nelle immediate vicinanze dellìuscita fi-pi-li, robusto capannone artigianale/commerciale di totali mq 720,...
Rif.Ag. 618-02 - CERCHI UN CAPANNONE A CASTELFIORENTINO? CASTELFIORENTINO, ZONA INDUSTRIALE CONDIZIONI PERFETTE TUTTO AL PIANO TERRA! Vi invitiamo a visitarlo, senza alcun impegno: è un immobile con...
Cerchi Capannoni in vendita a Firenze e provincia ma non hai trovato nulla di tuo interesse?
Utilizza il nostro modulo di richiesta generica ed invia una email di richiesta alle nostra agenzie affiliate!
SIGNA - In zona industriale di facile accesso, proponiamo in vendita splendido capannone di rappresentanza di circa 2000 mq oltre piazzale privato di 1000 mq. Il capannone si dispone su 2 livelli e...
Situato in zona artigianale/commerciale di Empoli ben collegato alla Fi-Pi-Li si vende capannone ex-artigianale di ca 830 mq posto al primo piano e dotato di montacarichi. L'immobile é stato oggetto...
Rif.Ag. 615-03 - CERCHI UN CAPANNONE NUOVO AD EMPOLI? Allora per te c'è... "Il Capannone Moderno". Per molte imprese un capannone datato non è un'opzione: poco funzionale, energivoro, incapace di...
inserito il 02 dic 2025
CALENZANO in piena zona produttiva a pochi minuti dall'accesso all'autostrada, capannone industriale di circa 1700mq con piazzale privato. Ubicato in comoda strada senza sfondo all'interno di una...