Appartamento con entrata indipendente al primo piano composto da: soggiorno-angolo cottura, 2 camere da letto, bagno e ampio terrazzo. Ideale per la stagione estiva a pochi passi dal mare e vicino ad...
Vendesi a milano Marittima in ottima posizione, a pochi passi dal centro e a 450 metri dal mare, appartamento al primo piano con ingresso indipendente situato in complesso di poche unit, composto da:...

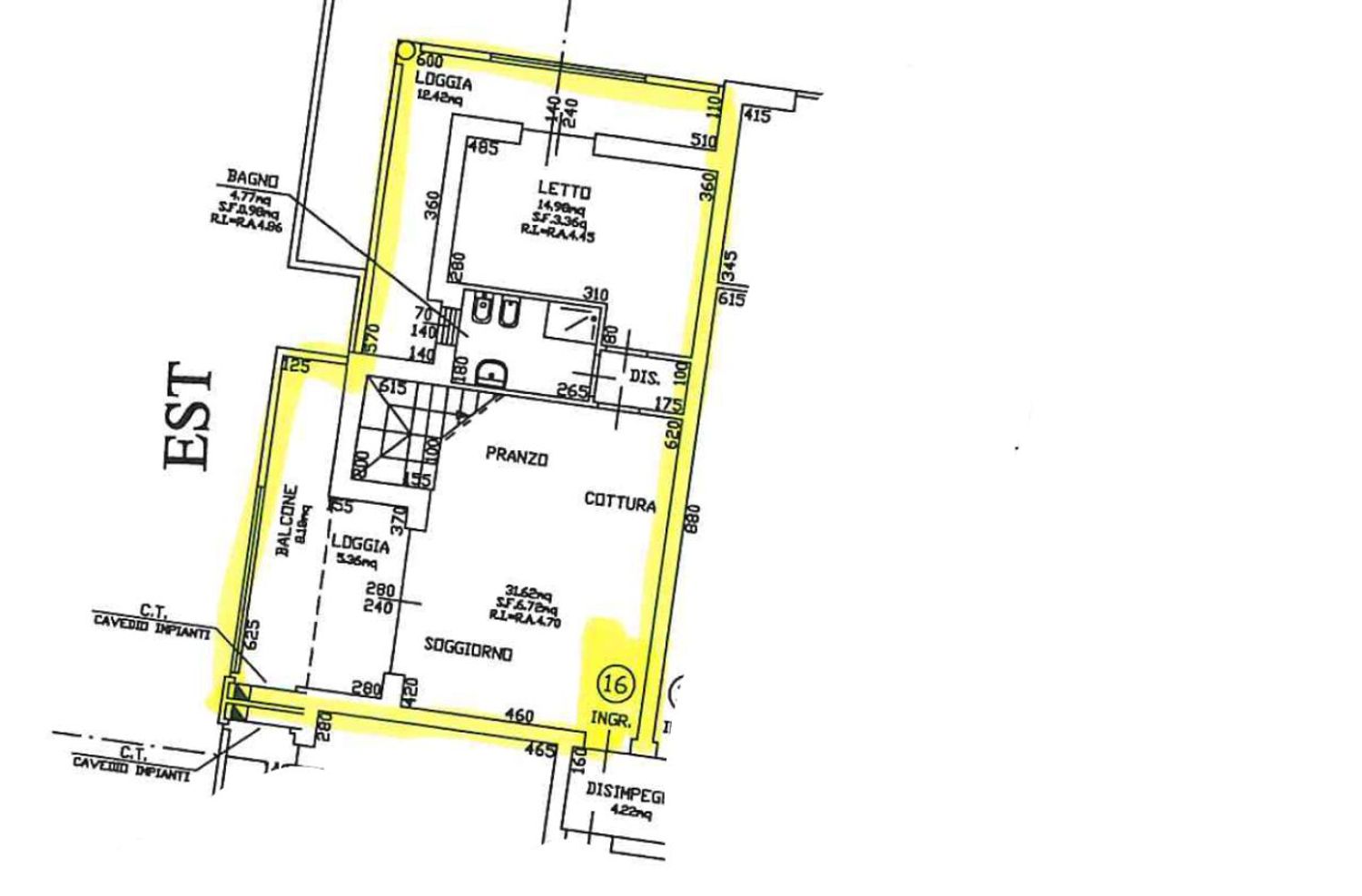
Vendita appartamento al primo piano composto da cucina, soggiorno, 3 camere letto, 2 bagni , disimpegno , 4 balconi e POSTO AUTO. In buone condizioni.
Specifica meglio la tua ricerca di Appartamenti a Cervia aggiungendo una caratteristica delle seguenti: