Hai un'attività in crescita? Cerchi una location che ti permetta di lavorare comodamente senza spendere cifre astronomiche? Non vuoi attendere i tempi di una nuova costruzione ed inoltre ti serve un...
Ampio ufficio a Castel Maggiore Cerchi un ufficio che si trovi vicino al centro ma comunque in una zona tranquilla? Questa soluzione fa al caso tuo, ci troviamo in Via Lirone a Castel Maggiore. La...
Ampio Laboratorio ad Argelato Stai cercando un capannone per avviare o espandere la tua attivit? Ti proponiamo questo fantastico capannone adibito a laboratorio in Via Degli Orti, vicinissimo al...
Capannone produttivo di 800 mq con aree cortilive esclusive - San Giorgio di Piano Proponiamo in vendita una porzione di capannone produttivo di 800 mq , situata nella prima periferia di San Giorgio...
San Giorgio di Piano Località Stiatico Capannone 600 mq con area esterna 1180 mq Proponiamo in vendita un capannone industriale di 600 mq complessivi, attualmente in fase di ristrutturazione...
inserito il 11 mar 2026
Capannone Logistico-Produttivo San Giorgio di Piano (Stiatico) Stai cercando uno spazio davvero funzionale per far crescere la tua attività? Quanto conta per te essere a pochi minuti dai principali...
inserito il 30 apr 2026
A Pieve di Cento: Grande Terreno Edificabile di 4.470 mq Un'opportunità rara per chi cerca spazio e tranquillità, senza allontanarsi dai servizi. Proponiamo in vendita un ampio terreno edificabile a...
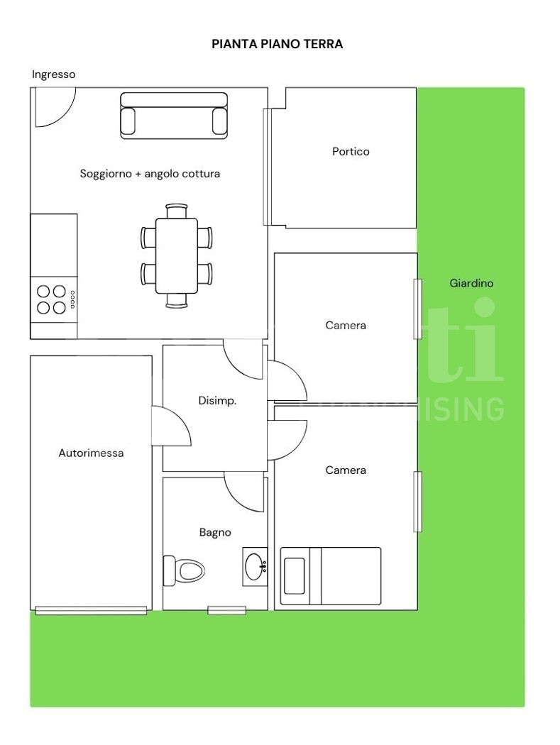
Abitare in centro al paese in una soluzione indipendente è un tuo desiderio? Vorresti un bel giardino privato per goderti i momenti di relax con la tua famiglia e gli amici? Abitare in una soluzione...
inserito il 30 mar 2026
Cerchi Case e Immobili in vendita a Bologna e provincia ma non hai trovato nulla di tuo interesse?
Utilizza il nostro modulo di richiesta generica ed invia una email di richiesta alle nostra agenzie affiliate!
San Pietro in Casale - Zona Industriale - Vendesi Area Edificabile ad Uso Artigianale-Produttivo Proponiamo in vendita un'area edificabile di 1.545 mq, ideale per attività artigianali e produttive,...

San Giorgio di Piano Località Stiatico Capannone 300 mq con area esterna 230 mq Proponiamo in vendita un capannone industriale di 300 mq complessivi, attualmente in fase di ristrutturazione completa,...
A Ponte Rivabella, in zona centrale, comoda ai mezzi e con possibilit di parcheggio, proponiamo un negozio al piano terra cos composto: un unico locale con bagno e una vetrina che affaccia su un...
GABETTI San Giovanni in Persiceto propone in esclusiva immobile commerciale, con possibilit di acquisto ESENTE DA IVA, di 114 mq + 125 mq di lastrico solare, con finiture di lusso, ad uso promiscuo...