Comune di Aulla affittasi capannoni e terreni. RIF. AFF454 A soli 6 km dall'uscita autostradale, affittasi terreni e capannoni industriali di varia metratura e tipologia. Le soluzioni indicative che...
Capannone di 3300mq con 2 carroponti ( porzione ) a 1,9 km dalluscita dellautostrada UDINE NORD. Il capannone si presenta con soluzioni integrate e avanzate dal punto di vista della sicurezza e della...
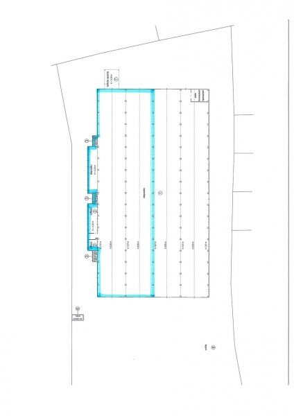
inserito il 18 nov 2025Capannone di 2000mq a destinazione industriale artiginale. Sottotrave di 8mt con 2 portoni a libro ( 4mt x 4mt ), inserito su lotto di 4800mq completamente recintato con doppio accesso carraio. 32...
inserito il 18 nov 2025Capannone di 1000 metri a Ponte Castello eventualmente anche frazionabile, riscaldamento a gasolio, luce ci vuole nuovo contatore e acqua... possiede anche piazzale esterno.

Rif.Ag. CAP-A13 - In Ottima Posizione di fronte alla Firenze Mare, uffici sviluppati su due piani di 400 mq ciascuno già suddivisi in uffici, sale riunioni, show-room, bagni, archivio e magazzino. Il...
inserito il 02 ott 2025Rif.Ag. CAP-A11 - Proponiamo in affitto capannone logistico / Industriale di nuova costruzione di 50.000 mq In ottima posizione strategica agli ingressi autostradali: - 5 km da Chiesina Uzzanese...
inserito il 02 ott 2025Rif.Ag. CAP-A04 - A due minuti dal centro di Montecatini terme e il casello autostradale, in ottima posizione posizionato su strada di largo traffico e autostrada, proponiamo complesso Immobiliare...
inserito il 02 ott 2025In zona Torrette di Mercogliano, a pochi metri dal casello Av- Ovest e con accesso da via Nazionale proponiamo in affitto capannone industriale/commerciale di 1500 Mq per 10 metri di altezza. Il...
inserito il 12 set 2025
Cerchi Capannoni in affitto ma non hai trovato nulla di tuo interesse?
Utilizza il nostro modulo di richiesta generica ed invia una email di richiesta alle nostra agenzie affiliate!
Proponiamo in affitto un capannone situato a Montefredane, che si estende su una superficie complessiva di 1.100 mq distribuiti su due livelli. L'immobile si presenta in buono stato di conservazione....
inserito il 06 set 2025
Affittiamo magazzino a oste di 400 mq con 200 mq di piazzale recintato.
Capannone in locazione nel adiacenze del comune di Parma (PR) Capannone ad uso logistico di mq. 40.000 ca oltre area esterna ed uffici. Baie di carico Proponiamo in locazione, nelle adiacenze del...
Capannone in locazione nelle adiacenze del comune di Rho (Mi) Capannone ad uso logistico di mq. 45.000 ca oltre area esterna ed uffici. Baie di carico Proponiamo in locazione, nelle adiacenze del...
Specifica meglio la tua ricerca di Capannoni in Italia aggiungendo una caratteristica delle seguenti: