
Ufficio in affitto a Castelfiorentino, a pochi passi dal centro. L'immobile posto al piano terra con ingresso indipendente e composto da 2 vani , archivio e bagno. Il fondo ha tre vetrine sul...
inserito il 16 dic 2025
Magazzino ad uso artigianale in affitto a Castelfiorentino, libero su tre lati, zona periferica a 2 km dal centro. Magazzino di mq 340 c.a ad uso artigianale con due bagni, dotato di piazzale esterno...
inserito il 16 dic 2025
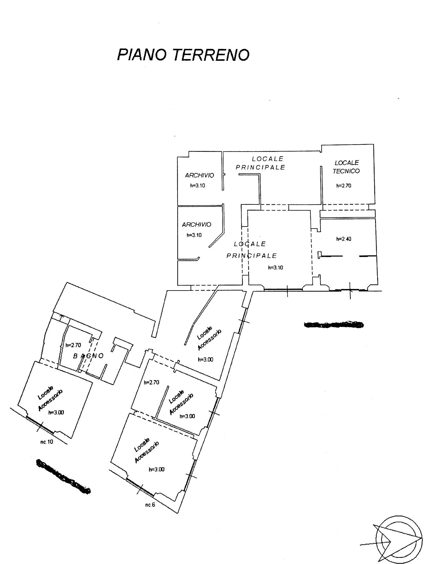
Fondo commerciale in affitto a Castelfiorentino zona centrale e residenziale L'immobile composto da: un ampio locale sull'ingresso, cinque locali suddivisi da pareti in cartongesso,due archivi,un...
inserito il 16 dic 2025
Fondo ad uso commerciale in affitto a Gambassi Terme, zona semi centrale. Fondo di mq 400 con ampio piazzale esterno per manovre e parcheggio, due ampi portelloni per accesso. Piano terra costituito...
inserito il 16 dic 2025zona piazza zanardelli
Privato vende/affitta due negozi in centro a Gavardo di 100mq l'uno circa. Per info contattare 3286741955
zona mare
Affittasi locale vista mare.situato tra la via principale e la spiaggia di vado ligure il locale e' ideale per qualsiasi attività commerciale
Posizione pregiata vicinanza centri commerciali ed intrattenimento ed uffici pubblici servito da ampi spazi esterni e parcheggi locale commerciale con ampie vetrine di circa 320 mq. adatto a...
RIF. IMMOBILE CC7500 Affittasi a Empoli in area servita a pochi passi dalle poste centrali, fondo commerciale di circa 75 metri quadrati. L'immobile posto a piano terra con resede di pertinenza...
Cerchi Attività commerciali di varie tipologie in affitto ma non hai trovato nulla di tuo interesse?
Utilizza il nostro modulo di richiesta generica ed invia una email di richiesta alle nostra agenzie affiliate!

Rif. CC5679 - FONDO COMMERCIALE in zona di passaggio pedonale, mq. 30 con bagno L'immobile fa parte di un palazzo ristrutturato in stile, completamente ristrutturato, completo di impianti e di...
inserito il 11 ott 2025
Fondo commerciale in affitto a Castelfiorentino, zona centralissima e vicino a tutti i servizi. L'immobile a piano terra con ingresso indipendente di 52 mq c.a composto da due vani con bagno e...
inserito il 16 dic 2025Ascoli Piceno, centro storico, splendido e caratteristico locale con volte reali di mq 120 circa, possibilit di soppalcare una parte del locale, ideale per ristorante/pizzeria o pub. Possibilit di...
inserito il 16 dic 2025Essendo un particolare prestatore e direttore di finanziamenti nazionali bgfi di banche Benin siamo pronti a collaborare e finanziaria per immobiliare e tipi di finanziamento imprese. Offriamo anche...