Appartamento in trifamigliare a Carcare - 130 mq con grande giardino e locale trasformabile In posizione tranquilla e nelle immediate vicinanze del centro di Carcare, proponiamo un appartamento al...
In posizione centrale e a pochi passi dal centro storico, proponiamo un ampio e luminoso appartamento situato al sesto piano, servito da ascensore. La zona comoda e ben servita, ideale per chi cerca...
Garlenda, in vendita Appartamento in Villa con ingresso indipendente, giardino e posto auto privato! LAgenzia Immobiliare Casasy propone in vendita a Garlenda, in una zona residenziale situata a...
Ad un passo dal centro della cittadina, in signorile caseggiato, appartamento di 157 mq. corredato di cantina e piccolo giardino di propriet. Entrando si accede direttamente all' ampio salone con...
Nel piccolo centro della cittadina, comodissimo ai servizi, soleggiato appartamento sito al primo piano con ascensore, in palazzina con doppio affaccio, in contesto appartato e tranquillo. L'...
Borgo Coscia, a pochi metri dal mare, proponiamo trilocale con grande cantina sotto casa e posto auto scoperto. L'appartamento è composto da soggiorno con angolo cottura, due camere da letto e bagno....
Alassio, nella zona di via Neghelli, silenzioso bilocale composto da ingresso, soggiorno con angolo cottura, camera matrimoniale, bagno con finestra, ripostiglio e balcone con pochissima vista....

A pochi passi dal molo, proponiamo appartamento fronte mare di mq 140 circa con terrazzo di mq 20 e balcone fronte mare. Attualmente l'alloggio è composto da ingresso, cucina abitabile, salone, tre...
Cerchi Appartamenti in vendita a Savona e provincia ma non hai trovato nulla di tuo interesse?
Utilizza il nostro modulo di richiesta generica ed invia una email di richiesta alle nostra agenzie affiliate!
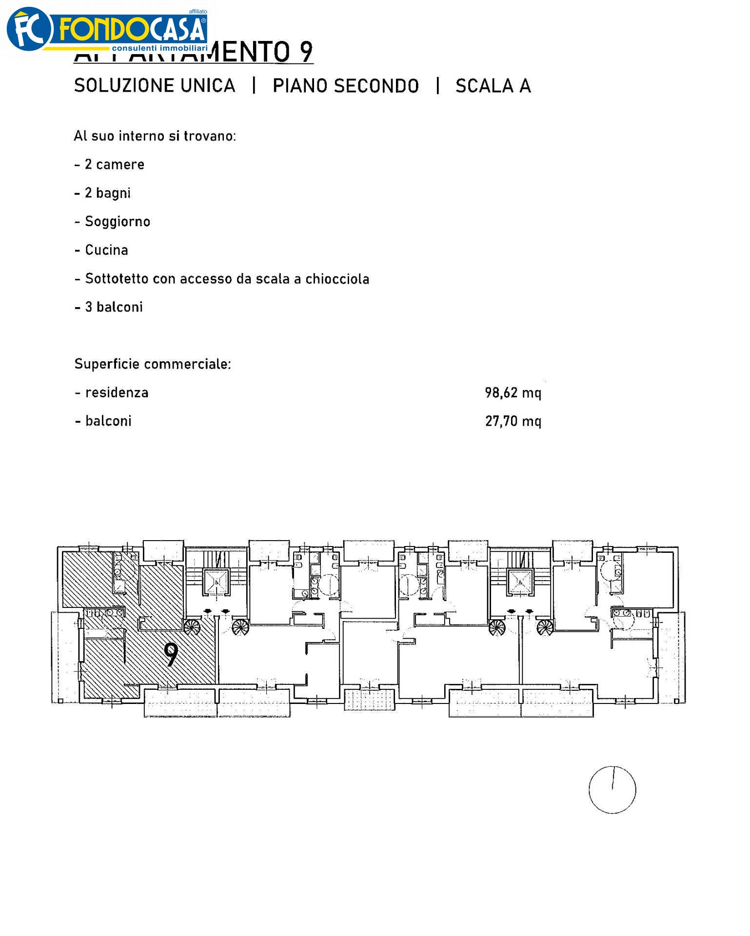
Immobile in corso di ultimazione consistente nella realizzazione di una nuova palazzina in Carcare, zona vicino al centro, composta di 12 alloggi in classe A+ suddivisi per 3 piani. Quattro unit al...
In Celle Ligure, proponiamo in vendita, trilocale appena ristrutturato e arredato, posto a circa 400 m dal mare e dal centro. L'alloggio è posto al piano terra di palazzina degli anni 60, ingresso,...
inserito il 01 nov 2025In Celle Ligure, via Cassisi 28, a 400 m dal mare e dal centro, al piano terzo e ultimo senza ascensore, proponiamo in vendita, trilocale di mq 70 circa, con ingresso a disimpegno, due camere...
inserito il 01 nov 2025Mondo Casa propone in vendita ad Albisola Superiore appartamento di circa 70 mq., in ottime condizioni, in zona pianeggiante e comoda al centro, posto al primo piano; gli ambienti luminosi ed aerati,...
inserito il 14 ott 2025
Specifica meglio la tua ricerca di Appartamenti in Italia aggiungendo una caratteristica delle seguenti: