Vendesi Incantevole Casa Rustica a Montecopiolo Posizione Situata si un lotto di circa 2000mq ad un'altitudine di circa 1.000 metri sul livello del mare, questa splendida propriet si trova a...
inserito il 17 ott 2025
CASA QUADRIFAMILIARE DA RISTRUTTURARE CON AFFACCIO SUL PARCO A 800 MT. DAL MARE - RICCIONE - ADIACENZE PAESE - VILLA ALTA - A soli 800 metri dalla spiaggia e a breve distanza dal cuore del paese,...
inserito il 28 ott 2025Proponiamo in vendita casolare da ristrutturare in zona prettamente collinare tra Saludecio, Mondaino e Tavoleto ovvero tre dei borghi medievali pi attraenti dell'entroterra della Riviera. La casa...
V306 - Misano Monte - Proponiamo in vendita una casa indipendente disposta su tre livelli, perfetta per chi cerca una soluzione spaziosa e con ampie potenzialit di personalizzazione. L'immobile si...
inserito il 25 set 2025In vendita a Santarcangelo di Romagna, in una tranquilla e residenziale zona di nuova costruzione, proponiamo una elegante e moderna villa bifamiliare, in classe energetica A4 . Attualmente sono in...
Ribassato -7% IN ESCLUSIVA! CATTOLICA ZONA RESIDENZIALE In contesto tranquillo e riservato, a due passi dal centro, proponiamo casa singola da ristrutturare. La propriet dispone di un ampio piano interrato, corte...
Santarcangelo di Romagna, a 1000 metri dall'Arco Ganganelli, si dispone di pregevole villa bifamiliare, ove le due unit abitative dotate di ampi spazi interni e vari servizi, dispongono di un lotto...
Saludecio. In zona Meleto, appartamento ristrutturato posto all'interno di un contesto di due sole unità, dotato di ingresso indipendente e di corte in comune con l'unità sottostante. L'appartamento...
									Cerchi Case indipendenti 5 locali o pių in vendita a Rimini e provincia ma non hai trovato nulla di tuo interesse?
									Utilizza il nostro modulo di richiesta generica ed invia una email di richiesta alle nostra agenzie affiliate!
								
zona fonte maggi
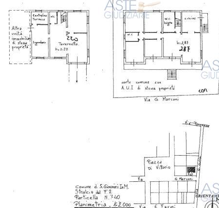
Vendesi in Asta a San Giovanni in Marignano, Soluzione Indipendente composta al Pian Rialzato da pranzo/soggiorno, cucina, bagno, quattro camere, wc - doccia, disimpegno per la superficie totale...
Vendesi in Asta a San Giovanni in Marignano, fabbricato urbano ad uso civile abitazione abbinato su un lato, con annessa area coperta e scoperta pertinenziale ad uso corte, costituito da un...
Vendesi in Asta a Mondaino, fabbricato promiscuo urbano e rurale indipendente, plurifamiliare, ad uso civile abitazione, di interesse storico e artistico e di particolare pregio ambientale disposto...
Vendesi in Asta a Santarcangelo, Terreno e fabbricato non ultimato. Per Info ed appuntamenti: 800129769 oppure 3519120169. Possibilità di Mutuo prima casa al 100% in 20 anni. www.alquadrato.net -...
