E' possibile che l'inserzionista abbia già venduto l'immobile. Ti consigliamo di continuare la tua ricerca per Terreni in vendita a Pordenone.
Pordenone zona Torre: Ubicato in posizione strategica vicina a tutti i servizi, come Asilo, mezzi pubblici, negozi e supermercati, proponiamo in vendita questo terreno edificabile di 2845 mq con...
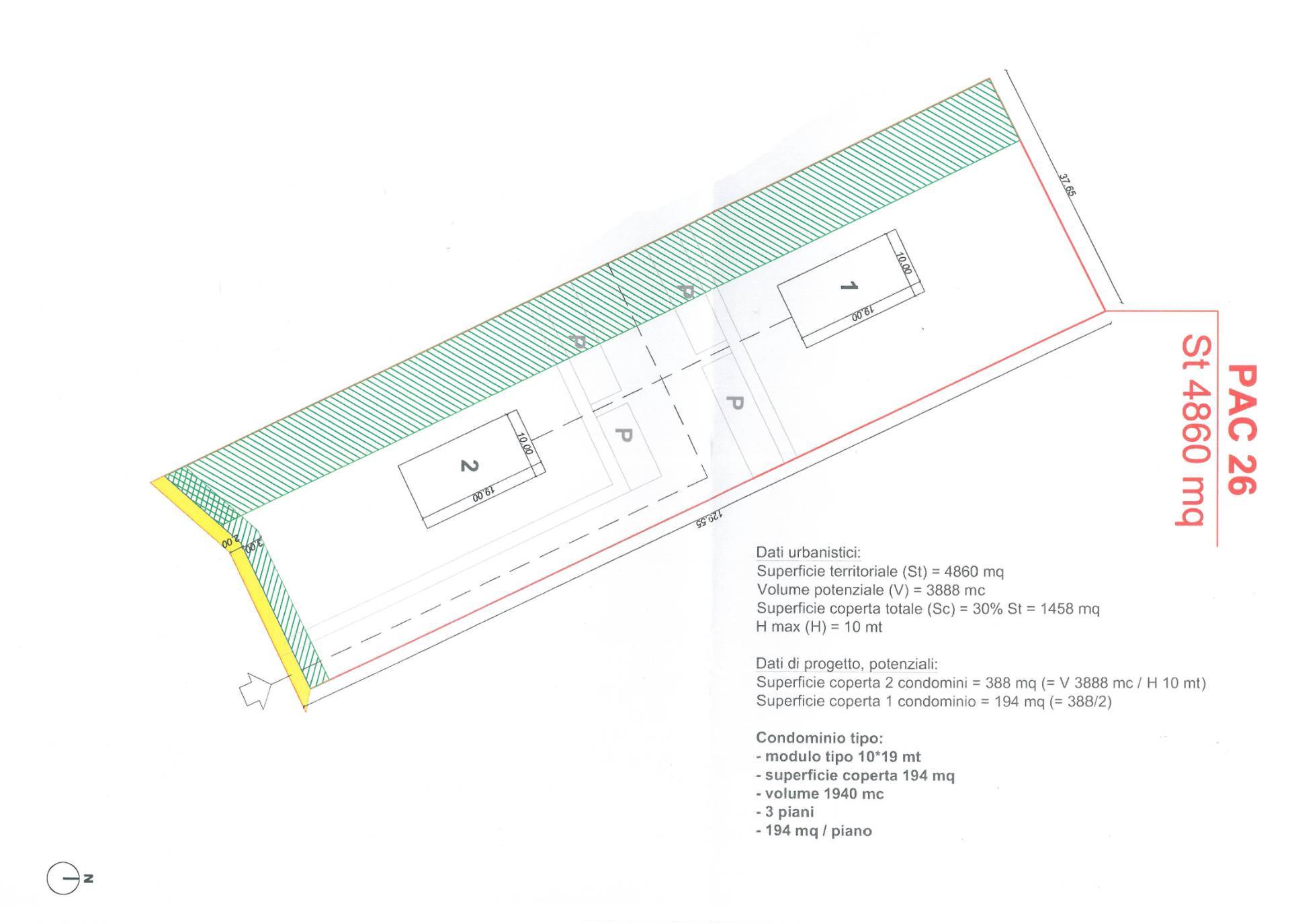
inserito il 30 dic 2025 in Terreni in vendita a PordenoneTerreno edificabile pianeggiante, frazionato in due particelle, raggiungibile da strada privata e comodissimo alla strada principale. Il terreno si estende su un lotto trapezoidale regolare, ha una...
inserito il 30 dic 2025 in Terreni in vendita a PordenoneLotto di terreno edificabile fronte strada principale e frazionato in pi particelle. Il terreno pianeggiante e regolare, ha una superficie totale di circa 2.215 mq ed la soluzione ideale per la...
inserito il 30 dic 2025 in Terreni in vendita a PordenoneNella ricercata zona di Borgomeduna proponiamo questo lotto edificabile, situato in una posizione strategica in zona comoda a tutti i servizi. Il terreno si estende su un lotto rettangolare regolare,...
inserito il 30 dic 2025 in Terreni in vendita a PordenoneTerreno edificabile pianeggiante, frazionato in due particelle, raggiungibile da strada privata e comodissimo alla strada principale. Il terreno si estende su un lotto trapezoidale regolare, ha una...
inserito il 30 dic 2025 in Terreni in vendita a PordenonePordenone nella zona di Torre bassa terreno edificabile di 1923 mq con rapporto di cubatura 1:1, caratterizzato da una forma regolare, in piacevole contesto residenziale di facile accesso e lontano...
inserito il 30 dic 2025 in Terreni in vendita a PordenoneTERRENO EDIFICABILE IN VENDITA Proponiamo un lotto edificabile residenziale, situato in Via dello Stadio a Pordenone. Il terreno ha una superficie di mq. 6.262, 3757 mc edificabili, pianeggiante ed a...
inserito il 30 dic 2025 in Terreni in vendita a PordenonePordenone Torre, su strada interna in bel contesto residenziale, lotto di terreno edificabile di forma regolare rettangolare di 3109 mq ed indice di cubatura 1:1. Possibile realizzazione di un...
inserito il 30 dic 2025 in Terreni in vendita a Pordenone
Cerchi Terreni in vendita a Pordenone ma non hai trovato nulla di tuo interesse?
Utilizza il nostro modulo di richiesta generica ed invia una email di richiesta alle nostra agenzie affiliate!
TERRENO IN VENDITA PORDENONE, CONFINE CON ROVEREDO IN PIANO Se cerchi un terreno versatile, con ottime potenzialit, questa loccasione giusta! In posizione strategica, prima della nuova rotonda di...
inserito il 30 dic 2025 in Terreni in vendita a PordenonePORDENONE VALLENONCELLO - IN VENDITA AREA EDIFICABILE IN ZONA DI COMPLETAMENTO, NON ESONDABILE Disponiamo di un terreno edificabile di mq. 2310 totali, di cui mq. 1575 edificabili e mq. 735 adibiti a...
inserito il 30 dic 2025 in Terreni in vendita a Pordenone
PORDENONE ZONA TORRE - TERRENO EDIFICABILE RESIDENZIALE Proponiamo in vendita un terreno edificabile residenziale di circa 3100 mq. posto a Pordenone, zona Torre, in un contesto urbano di recente...
inserito il 30 dic 2025 in Terreni in vendita a Pordenone
TERRENO EDIFICABILE - PORDENONE ZONA VILLANOVA Proponiamo un bellissimo lotto edificabile residenziale, situato nella fraz. Villanova di Pordenone, in vendita da soggetto privato. Il terreno ha una...
inserito il 30 dic 2025 in Terreni in vendita a PordenoneStai cercando Terreni in vendita a Pordenone? Su PCase.it puoi trovare diversi annunci immobiliari di Terreni in vendita a Pordenone affini alla tua ricerca, ogni giorno tanti nuovi inserimenti e abbassamenti di prezzo da agenzie immobiliari di fiducia, costruttori esperti e privati che offrono i migliori terreni in vendita a pordenone corredati da descrizioni complete, foto, video e mappe. Scopri com'è facile trovare subito il tuo nuovo terreno agricolo, edificabile, commerciale o industriale online in vendita a Pordenone.