Rif. 5343 Vendesi a Vasto, situato in una delle zone pi richieste della citt, precisamente in Via Alessandrini, confortevole, luminoso e ampio appartamento di mq 115, posto al secondo piano. Gli...
inserito il 22 ott 2025Lanciano, via Meucci, a due passi dalle principali Viale Marconi e Viale Cappuccini, proponiamo in vendita comodo appartamento sito al piano rialzato di palazzina non servita da ascensore. Ingresso...
inserito il 24 set 2025Rif. 5329 - Vendesi a Vasto in Via delle Croci, zona centrale, appartamento ristrutturato, pronto per essere abitato. La palazzina stata di recente integralmente ristrutturata ed stata dotata di...
Rif. 5324 Vendesi a Vasto in Via Antonio Marchesani, non distante da centro, appartamento al quarto piano di una palazzina dotata di ascensore. L'appartamento ha una superficie totale di mq 150 con...
zona semicentro
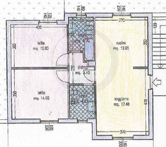
CASALINCONTRADA: Vi proponiamo in vendita spazioso appartamento posto al piano rialzato di un edificio con poche unità abitative. L'immobile è in buone condizioni, di ottima metratura. Presenta due...
VENDESI in San Vito Chietino, appartamento DUPLEX del 2016, posto al 1°e 2° piano, senza ascensore, composto da: 1° piano con ampio soggiorno/cucina (parete cucina inclusa), balcone, 2 camere da...
Vendesi bellissimo appartamento semi arredato, luminoso e centralissimo, in Lanciano, via Ferro di Cavallo, al sesto piano con ascensore, composto da: ingresso, cucina con piccolo ripostiglio e...
inserito il 04 set 2025Rif. 3393 - A Vasto in via del Porto appartamento al 4° piano di mq 65 composto da soggiorno con angolo cottura, doppi servizi, camera matrimoniale, camera singola, due balconi vista mare, garage di...
									Cerchi Appartamenti 5 locali in vendita a Chieti e provincia ma non hai trovato nulla di tuo interesse?
									Utilizza il nostro modulo di richiesta generica ed invia una email di richiesta alle nostra agenzie affiliate!
								
Vendesi APPARTAMENTO, a piano terra, in Villa, con GARAGE, CANTINA, DEPOSITO, GIARDINO e possibilità di TERRENO a parte. In posizione tranquilla e panoramica, proponiamo in vendita un ampio...
zona centro storico
Villamagna (CH) Viale Regina Margherita In una zona tranquilla e facilmente accessibile, a pochi minuti dal centro di Villamagna, si propone in vendita un appartamento spazioso e luminoso, situato al...
Lanciano, primissima Via Garibaldi, a pochi passi dalle "Torri montanare" e dal suggestivo belvedere, proponiamo in vendita affascinante appartamento duplex sito al secondo piano di storica palazzina...
VENDESI esclusivo APPARTAMENTO sito in Lanciano, sul Corso Trento e Trieste, al 2° piano con ascensore. L'appartamento, di circa 120 mq, oltre balconi, è composto da: ingresso su ampia sala con...
 
							Specifica meglio la tua ricerca di Appartamenti in Italia aggiungendo una caratteristica delle seguenti: