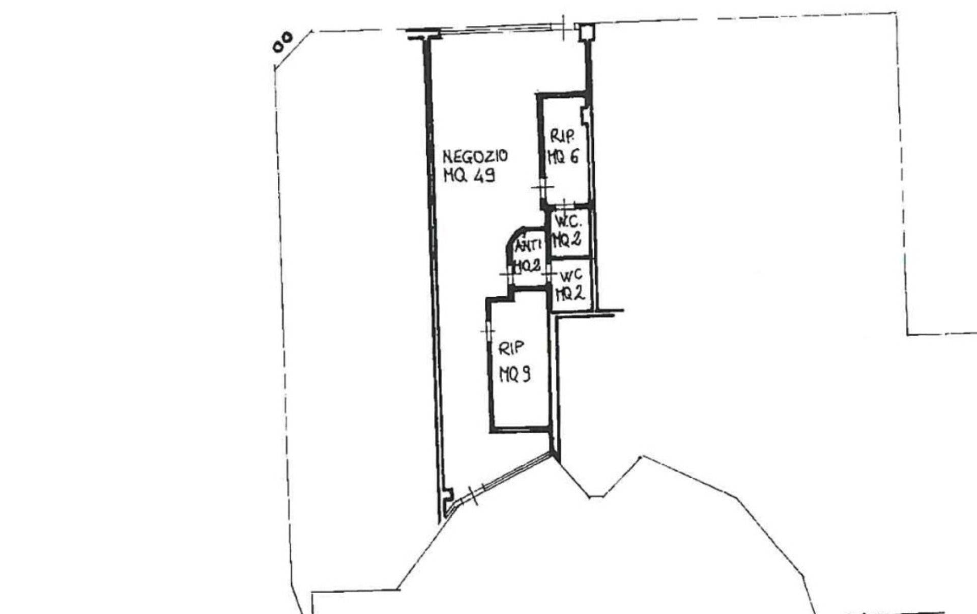
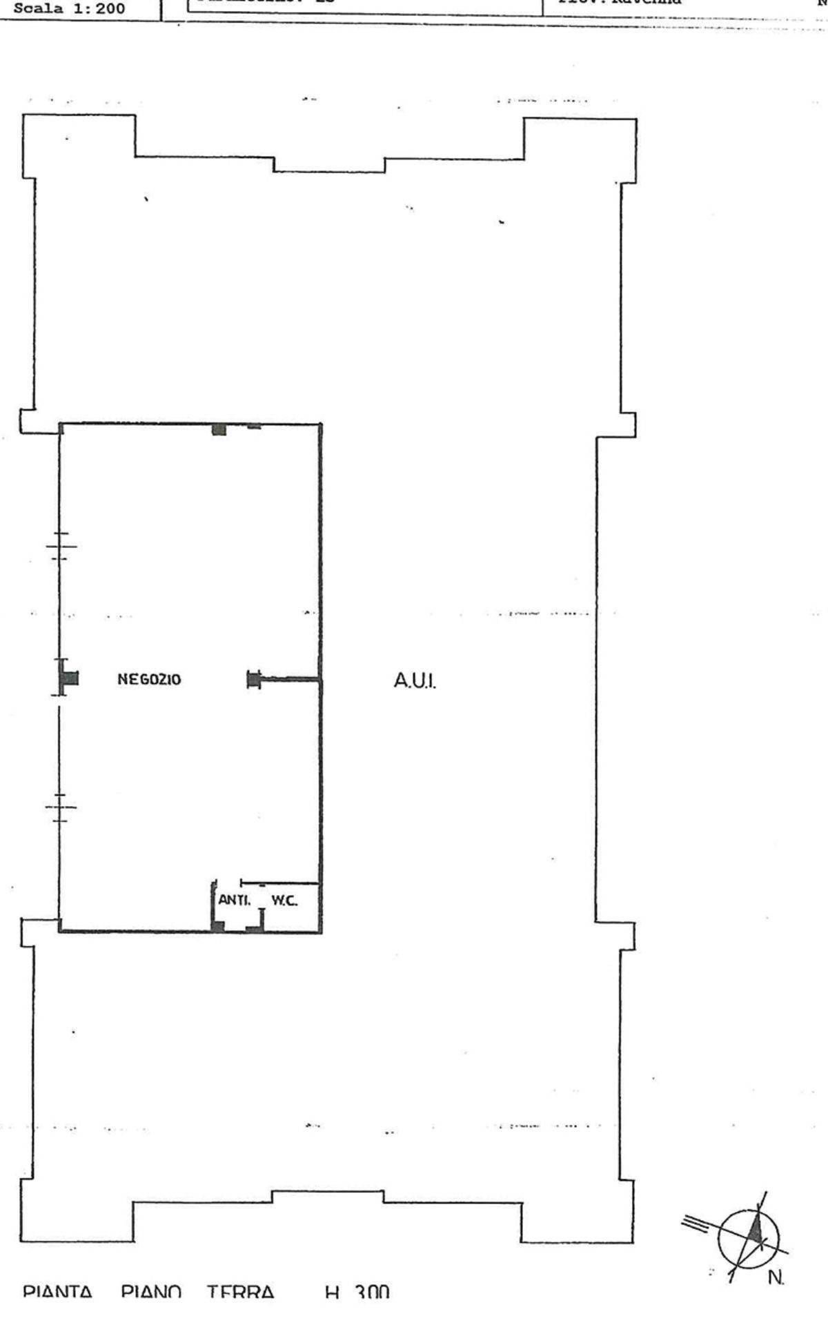
Vendiamo a Cervia, in posizione centrale e di forte passaggio negozio di circa 70 mq. Il negozio dotato di 2 ingressi e attualmente suddiviso in vari ambienti fra cui un'ampia area espositiva, 2...
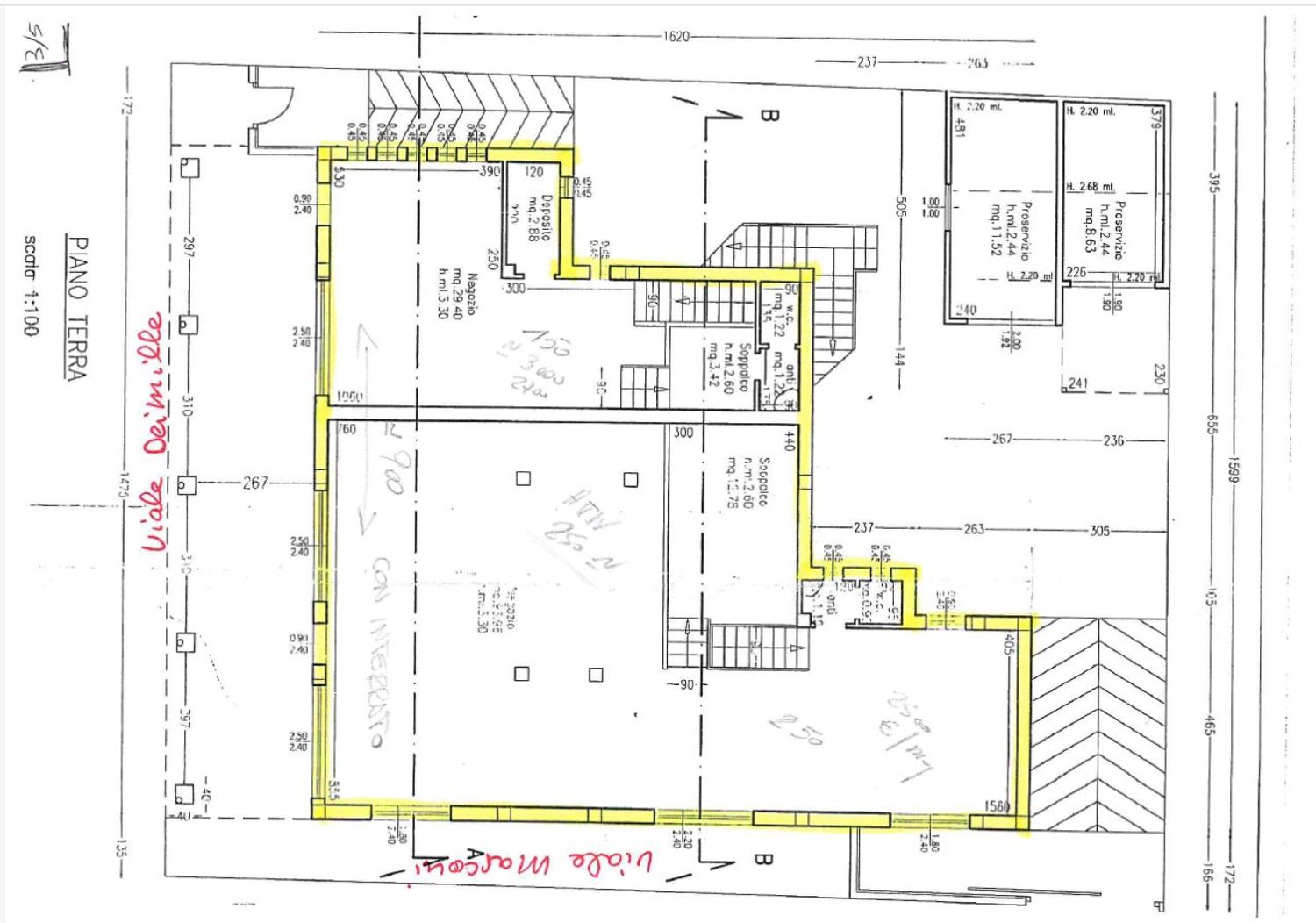
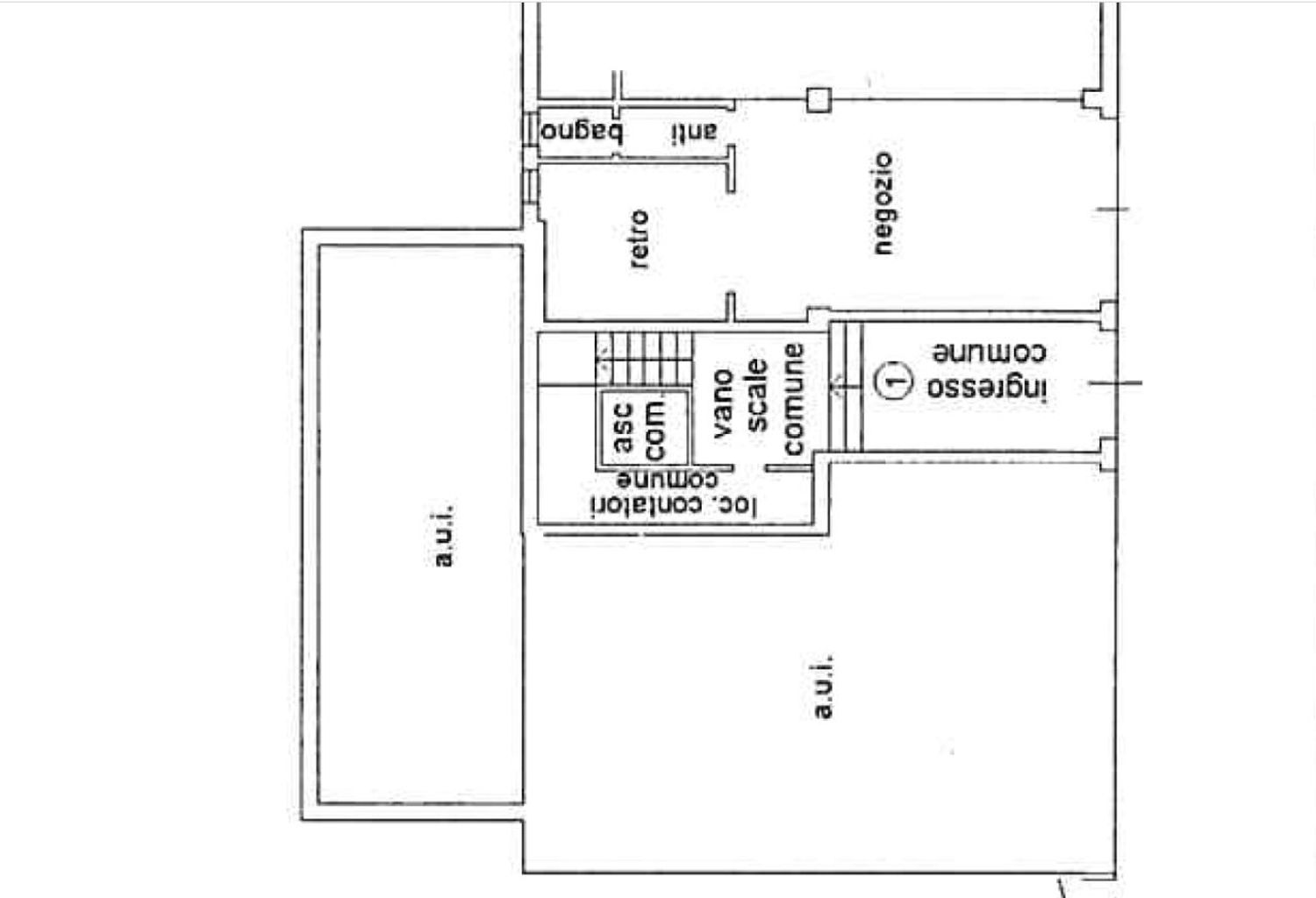
inserito il 16 dic 2025Vendiamo a Cervia, vicino al centro, in contesto commerciale ed in zona di forte passaggio, la propriet dei muri di un negozio negozio di 170 mq, attualmente affittato. In zona commerciale, di...
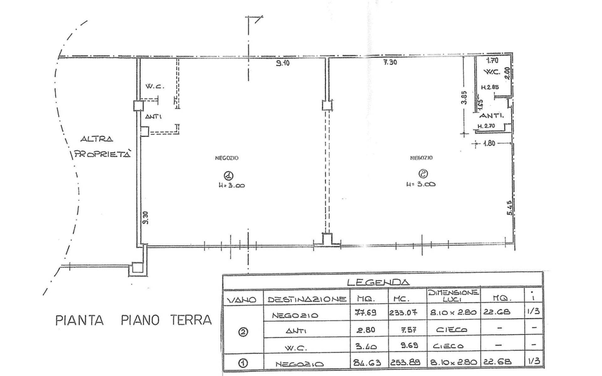
inserito il 16 dic 2025Vendiamo a Lido di Classe, in zona di forte passaggio doppio negozio completamente ristrutturato con tre vetrine fronte strada. La soluzione situata nella via principale, vicina alla spiaggia e ad...
inserito il 16 dic 2025zona mare
Albergo a milano marittima 46 camere piu' appartamento padronale terreno 1600 mq. Piscina zona mare ottimamente tenuto ottima clientela, informazioni in ufficio.
Vendiamo a Pisignano, a pochi km da Cervia, quattro lotti di terreno edificabile gi urbanizzati di 492mq, 558mq e 620mq a euro 250,00 al mq Ideale per la costruzione di ville singole o bifamiliari....
inserito il 22 nov 2025Vendiamo a Cervia lotto di terreno edificabile di mq. 1300. Ottima soluzione, vista la possibilit di ricavare un unit immobiliare di 9 appartamenti. Maggiori info in ufficio. Rif. 339
inserito il 16 dic 2025
Vendiamo nel cuore del centro di Milano Marittima, negozio nel quadrilatero pi bello e contornato da splendide attivit locali. Regolarmente affittato con all'interno attivit ampiamente avviata e con...
inserito il 16 dic 2025
Vendiamo a Cervia, tra le mura del centro storico, in posizione centralissima di forte passaggio e affluenza, attivit di bar/tabacchi ottimamente avviata e recensita da un'ampia cerchia di clientela....
inserito il 16 dic 2025
Cerchi Case e Immobili in vendita a Cervia ma non hai trovato nulla di tuo interesse?
Utilizza il nostro modulo di richiesta generica ed invia una email di richiesta alle nostra agenzie affiliate!
zona centro
Milano marittima e zone limitrofe vendiamo bellissimi stabilimenti balneari, le informazioni saranno fornite solo a diretti interessati presso i nostri uffici.
Vendiamo a Cervia, situata in zona di forte passaggio, tabaccheria con clientela fidelizzata, ottimamente avviata e recensita. Il negozio si presenta in ottime condizioni, con arredi moderni e...
inserito il 16 dic 2025Vendiamo a Pinarella, in zona turistica di forte passaggio estivo, nella storica pineta a due passi dal mare, edicola con ottimi fatturati. Ottimo investimento familiare. Occasione da non perdere....
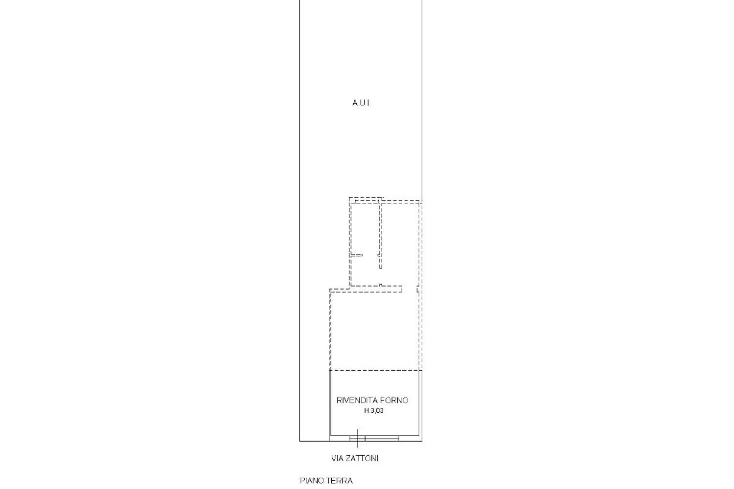
inserito il 16 dic 2025Vendiamo a Castiglione di Ravenna, in contesto servito in centro paese, negozio al piano terra. Il negozio, adibito a rivendita Forno, interamente disposto al piano terra e dispone di bagno con...
inserito il 16 dic 2025