Piena proprietà per la quota di 1000/1000 di porzione di fabbricato terra cielo da ristrutturare con terreno pertinenziale, avente accesso carraio e pedonale tramite corte di altra proprietà, gravata...
inserito il 10 feb 2026Appartamento ubicato a Genova (GE) - Via Garello Civ. 2, piano T-1-2 all'interno di un piccolo fabbricato a forma irregolare, che si eleva su tre piani fuori terra e composto dai due immobili oggetto...
inserito il 11 apr 2026Complesso immobiliare composto da fabbricato residenziale , fabbricati accessori e area di pertinenza. - Il Prezzo visualizzato è la Base d'Asta in quanto limmobile è oggetto di esecuzione...
inserito il 11 apr 2026Abitazione sviluppata su tre piani fuori terra con sedime di corte e terreni. Terreno incolto ricadente in zona a tutela ambientale avente forma irregolare giacitura pianeggiante formante corpo unico...
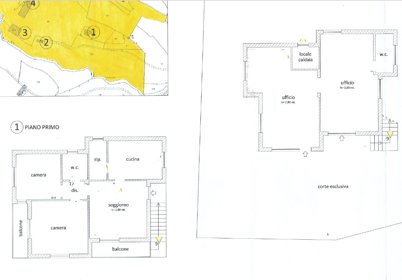
inserito il 31 mar 2026Casa di civile abitazione sviluppata su tre piani, composta al piano terreno da locali ad uso deposito, cantine, locale caldaia e corti esterne esclusive, al piano primo da quattro camere,...
inserito il 31 mar 2026Fabbricato ad uso abitativo ed accessori articolato su due piani fuori terra, ubicato nel concentrico del Comune di Alice Bel Colle, con piccola porzione di corte pertinenziale in adiacenza ad altri...
inserito il 31 mar 2026PIENA PROPRIETA' (1/1) DI ABITAZIONE DA TERRA A TETTO DISTRIBUITA SU TRE PIANI FUORI TERRA CON ANNESSA CANTINA INTERRATA IN COMUNE DI CASTIGLIONE CHIAVARESE (GE) VIA ALLA CHIESA CIV. 6. - Il Prezzo...
inserito il 20 mar 2026Abitazione: immobile residenziale semi-indipendente facente parte di fabbricato di vecchia costruzione, posto nel concentrico del Comune di Strevi. Al ptp: centrale termica, piccolo bagno di...
inserito il 12 mar 2026
Cerchi Case indipendenti all'asta in vendita ma non hai trovato nulla di tuo interesse?
Utilizza il nostro modulo di richiesta generica ed invia una email di richiesta alle nostra agenzie affiliate!
Immobile a uso residenziale, sito in area esterne e rurale rispetto al concentrico del tessuto urbano del Comune di Sale. Fabbricato a forma rettangolare composto sia da porzione residenziale che da...
inserito il 07 mar 2026BENE 1: Piena proprietà dellimmobile sito in Uscio, Via Craì 12/1 di due piani: il terreno è composto da soggiorno, cucina, vano scala, sottoscale, disimpegno, bagno, terrazzo, ripostiglio sul...
inserito il 04 mar 2026Abbitazione Laboratori per arti mestieri - Il Prezzo visualizzato è la Base d'Asta in quanto limmobile è oggetto di esecuzione immobiliare venduto tramite Asta Giudiziaria. - L'immobile aggiudicato,...
inserito il 03 mar 2026Il lotto è composto da complesso immobiliare strutturato in due fabbricati residenziali plurifamiliari il quale si sviluppa su tre piani complessivi di cui 2 fuori terra e 1 interrato. I fabbricati...
inserito il 26 feb 2026
Specifica meglio la tua ricerca di Case indipendenti in Italia aggiungendo una caratteristica delle seguenti: