Traversa di via XXIV Maggio, locale commerciale di metri quadrati 60 circa, composto da vano unico con bagno e soppalco. Vetrina fronte strada e riscaldamento autonomo. Ideale per investimento perch...
Via Zurlo, zona centralissima e ben servita, locale deposito di metri quadrati 50 circa, posto al piano terra, composto da vano unico soppalcabile con bagno e vetrina. Altezza m 3.30. Rif. 25044

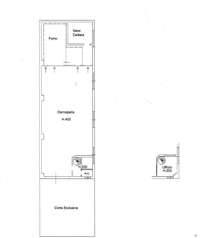
In via XXIV Maggio, in zona servitissima e con forte passaggio veicolare e pedonale, locale commerciale di metri quadrati 450 circa, posto al piano terra con tre vetrine fronte strada e servizi....
inserito il 16 dic 2025Nella servitissima zona di Colle delle Api, tra i maggiori centri commerciali della Citt, disponiamo la vendita di un ampio locale ad uso commerciale/ufficio di circa 360 mq. complessivi, con...
All'interno del palazzo dell'ex Banco di Napoli proponiamo comodo ufficio sito al primo piano. La soluzione si compone di tre ampi vani, disimpegno, zona ristoro, bagno e ripostiglio. Ideale per chi...
In zona Colle dell'Orso, disponiamo la vendita di un locale commerciale, di mq. 70, dotato di bagno e numerose vetrine. Ottima visibilit! Ape: G Rif. H133
inserito il 16 dic 2025In zona ad alto passaggio veicolare e pedonale proponiamo in vendita negozio/salone di circa 90 mq. La soluzione espone fronte strada ed ha un'ottima visibilit. Inoltre in zona sono presenti numerosi...
In zona industriale, locale commerciale di metri quadrati 170 circa con altezza di mt 3,10 gi completo con attrezzature per pizzeria/bar/ristorante. Possibilit anche di locazione con riscatto. Rif....
inserito il 16 dic 2025
Cerchi Case e Immobili in vendita a Campobasso e provincia ma non hai trovato nulla di tuo interesse?
Utilizza il nostro modulo di richiesta generica ed invia una email di richiesta alle nostra agenzie affiliate!
In zona via De Pretis, appartamento ad uso ufficio al piano terra, di metri quadrati 110 circa, composto da quattro vani, ingresso-sala ricevimento, bagno e balcone. Rif. 20115
inserito il 16 dic 2025In via Gazzani, locale di metri quadrati 800 circa totali con ampia apertura/vetrina. Possibilit di apertura di vetrine sul retro con affaccio campo sportivo; Possibilit di affitto. Rif. 21030V
inserito il 16 dic 2025In una delle vie pi prestigiose e trafficate della citt, proponiamo in vendita un locale commerciale disposto su due livelli, ideale per attivit di ristorazione, take away o gelateria con...
inserito il 21 ott 2025**Locale in Vendita - Via S. Antonio Abate, Centro Citt** Scopri un'opportunit unica nel cuore della citt! Questo locale commerciale di circa 116 mq circa, situato in una posizione centrale su Via S....