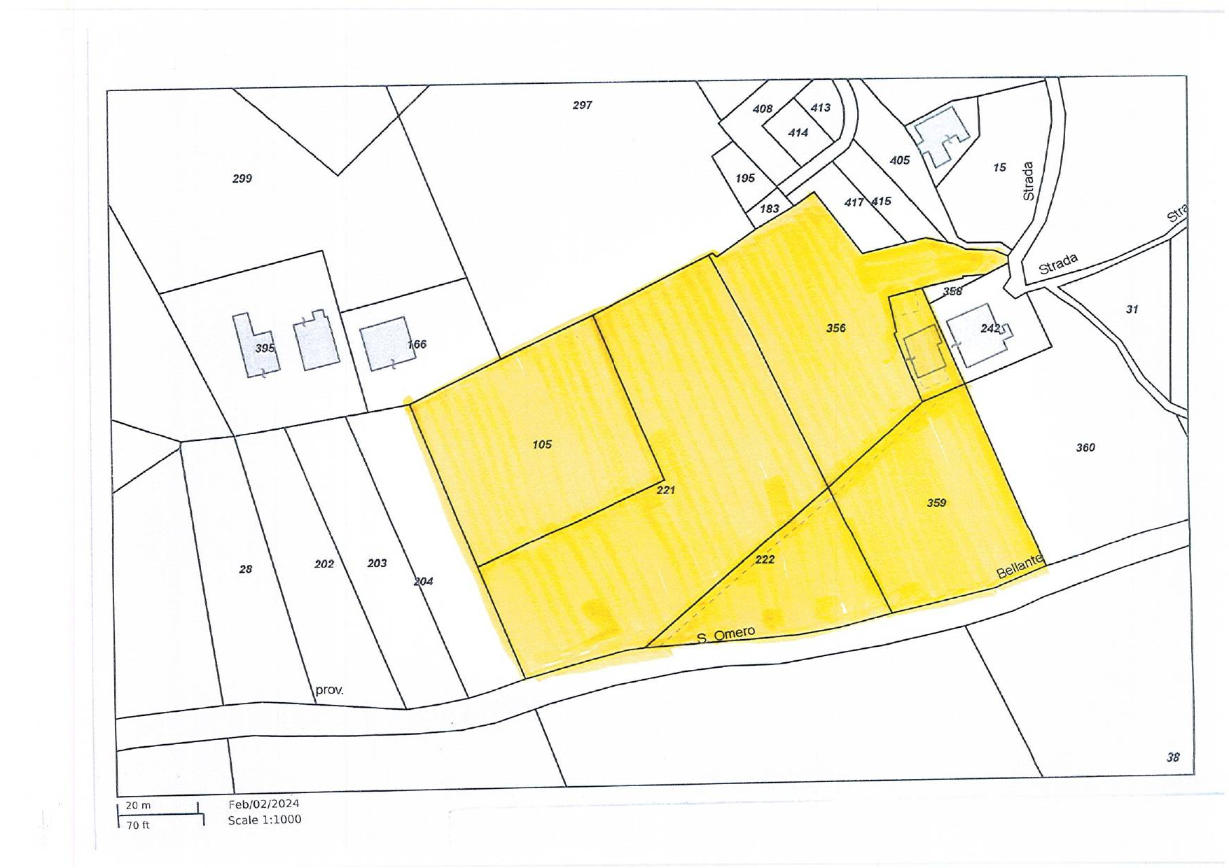
Rustico periferico disposto su 2 livelli e con ottimo panorama con terreno in pendenza, con esposizione prevalentemente nord-est, diviso in due corpi, coltivato a uliveto con 65 piante secolari e a...
inserito il 16 dic 2025Ribassato -13% Rif.A091 BELLANTE: Questa spaziosa casa indipendente ad uso abitativo situata nel comune di Bellante (TE) rappresenta un'opportunit unica sul mercato immobiliare. Con una superficie di 350 mq, la...
Rif.T746 BELLANTE: proponiamo in vendita Casa Singola in zona tranquilla e panoramica di Bellante. La soluzione cosi suddivisa: ingresso su corte da strada comunale, con possibilit di parcheggio...
BELLANTE PAESE - STRADA PROVINCIALE PER CAMPLI - CASOLARE INDIPENDENTE PANORAMICO di Mq 350 con Mq. 2.000 di CORTE GIARDINO IN VENDITA (RIF. V4128C) La proprieta' immersa nelle verde, gode di un...
inserito il 16 dic 2025Appartamento al piano terra con giardino in vendita a Bellante con garage - Rif. 2381 L'unit posta al piano terra con esposizione SUD/EST/NORD, all'interno di un casa singola con soli due...
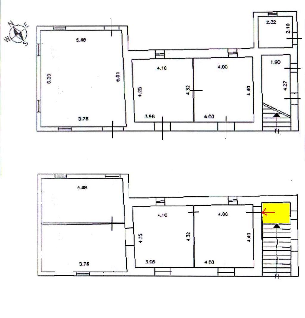
Rif.T893 BELLANTE: proponiamo in vendita Casa Cielo Terra in zona tranquilla e panoramica. L'immobile stato completamente ristrutturato ed cosi composto: - Pianto Terra: ingresso su ampio soggiorno...

Bellante, localit Ripattoni si vende casa singola su due livelli DA RISTRUTTURARE composta da quattro vani e da una rimessa costruita in adiacenza. Insieme al fabbricato si vendono 12.000 mq di...
inserito il 16 dic 2025(Rif. V2973C) - BELLANTE STAZIONE - LOCALE COMMERCIALE (A REDDITO CON CONTRATTO DI LOCAZIONE IN CORSO) FRONTE STRADA CON SPAZIO ESTERNO. In VENDITA a Bellante Stazione, in Via Nazionale, Strada...
inserito il 16 dic 2025
Cerchi Case e Immobili in vendita a Bellante ma non hai trovato nulla di tuo interesse?
Utilizza il nostro modulo di richiesta generica ed invia una email di richiesta alle nostra agenzie affiliate!
BELLANTE - CAPANNONE - OPIFICIO - LABORATORIO ARTIGIANALE - DEPOSITO di Mq 450 circa con CORTE ESTERNA RECINTATA ed APPARTAMENTO di Mq 100 con AMPISSIMO TERRAZZO perimetrale in VENDITA. L'EDIFICIO...
inserito il 20 set 2025Ribassato -25% BELLANTE STAZIONE Nelle immediate vicinanze della strada Statale 80, in zona di facile raggiungibilit e con comodo accesso carrabile, proponiamo in vendita un capannone ad uso magazzino/rimessa con...
Terreno edificabile in vendita a Bellante, frazione Ripattoni. Il lotto edificabile situato nella zona di Ripattoni, vicino a strade, piazze, servizi pubblici e civici. Il terreno, 1.660 mq. circa,...
inserito il 04 dic 2025Lotto edificabile di 800 mq. circa in vendita a Bellante, frazione Ripattoni. Il lotto edificabile situato nella zona di Ripattoni, in posizione comoda e vicina a strade, piazze e ai principali...
inserito il 04 dic 2025