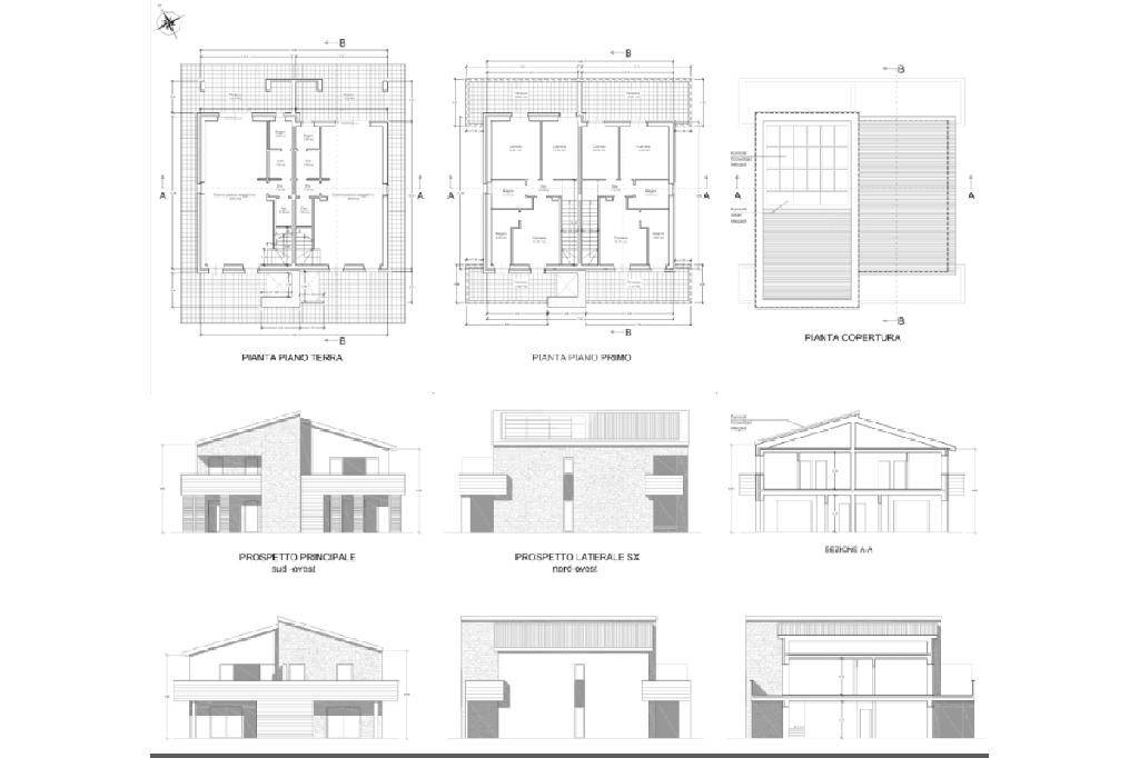
Nella frazione di Palazzo di Assisi nella tranquilla campagna da cui si vede uno scorcio di Asisisi, proponiamo terreno di 2800 mq con progetto per la realizzazione di una villa singola in classe A...
In posizione unica di Santa Maria degli Angeli, alle pendici di Assisi, disponiamo di terreno edificabile urbanizzato di 1.000 mq c.a. con possibilit di edificare villa singola o bifamiliare su 2...
terreno industriale da urbanizzare di 18.000 mq, il progetto prevede la realizzazione di un capannone di 5.335 mq con un altezza di 8 mt. Una volta urbanizzato il lotto comprensivo dell'ingombro del...
Rocca Sant'Angelo. Vuoi un terreno per produrre il tuo olio biologico ? E magari fare delle scampagnate con degli amici ?.. Allora ecco quello che stai cercando : In posizione comoda dove ci si...
DESCRIZIONE: Proponiamo in vendita unarea edificabile ad uso residenziale, situata in posizione centrale e ben servita. I l lotto ha una superficie complessiva di circa 3.500 mq ed edificabile per...
A 4 km da Santa MAria degli angeli, in zona tranquilla e con affaccio vista su Assisi vendiamo lotto edificabile di circa 5.500 mq a destinazione servizi. Attualmente nel lotto vi presente un...
In zona Beviglie, facilmente raggiungibile e di facile accesso si vende terreno con ulivi e alcune piante da frutto. Posizione collinare con affaccio sulla vallata.
In zona pianeggiante, a ridosso della citt di Assisi, terreno agricolo di 7.000 mq attualmente coltivato a grano, catastalmente gi frazionato in tre lotti di 2.300 mq ciascuno. Possibilit di vendita...
Cerchi Case e Immobili in vendita ad Assisi ma non hai trovato nulla di tuo interesse?
Utilizza il nostro modulo di richiesta generica ed invia una email di richiesta alle nostra agenzie affiliate!
A Palazzo dAssisi proponiamo in vendita terreno edificabile di circa 2200 mq e mc 600 circa, con possibilit di realizzare una soluzione abitativa indipendente di 210 mq circa. PER INFORMAZIONI:...
In zona panoramica, appena fuori le mura di Assisi, proponiamo in vendita uliveto di 14.000 mq con ulivi in piena attivit. Posizione di facile accesso. CONTATTACI PER MAGGIORI INFORMAZIONI:...
Proponiamo terreno edificabile di mq. 2200, ottima posizione con possibilit di costruire un abitazione di circa 170 mq.DA NON PERDERE!!!
inserito il 14 feb 2026
In zona centrale nei pressi delluscita e dellingresso della E45, su fabbricato indipendente a piano terra, proponiamo in vendita ampio ed unico laboratorio artigianale con uffici e possibilit di...