zona centro storico
ASCOLI PICENO - centro storico - grande appartamento in Piazza del Popolo di 125 mq coperti composto da cucina abitabile, soggiorno, tre ampie camere, bagno, ripostiglio, balconcino. Ha doppi vetri e...

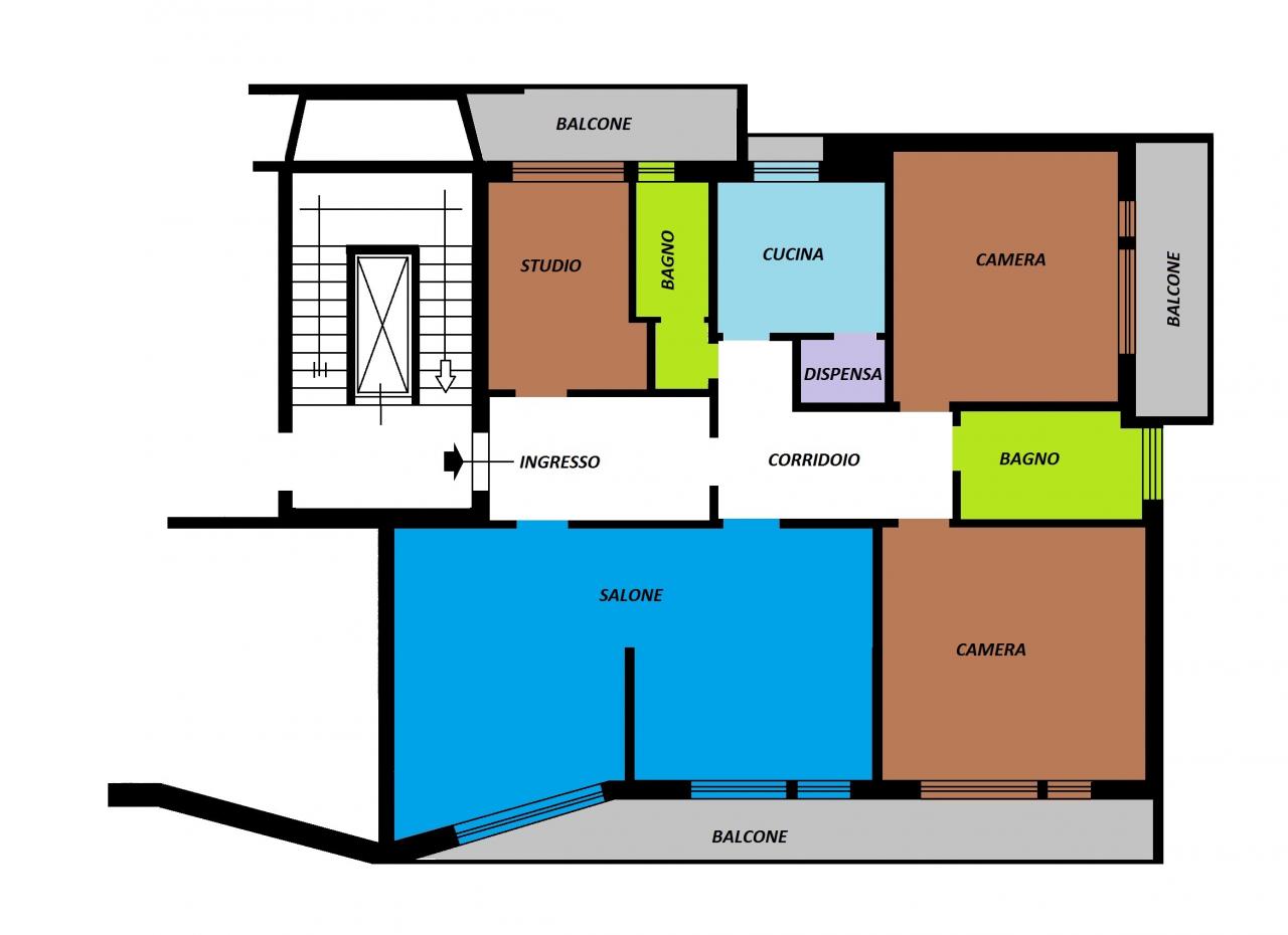
Ascoli Piceno, Campo Parignano appartamento di mq. 140. La propriet disposta al piano terzo e ultimo in palazzina con ascensore e misura complessivamente 140 mq. circa oltre a balconi di mq. 27 circa...
inserito il 30 dic 2025Ascoli Piceno, zona centro storico, nel quartiere San Emidio, adiacente la piazza principale della citt e nelle immediate vicinanze della sede del Municipio e del Duomo di Ascoli Piceno, in una zona...
inserito il 30 dic 2025Centro Storico, ad un passo da Piazza del Popolo, splendido appartamentino completamente e finemente ristrutturato posto al secondo piano e mansarda di palazzo ristrutturato. Ingresso su soggiorno...
inserito il 30 dic 2025Appartamento di ampia metratura con fondaco al centro storico di Ascoli Piceno - Rif. 3024 L'agenzia Agile immobiliare propone in vendita appartamento di circa 200,00 mq posto al piano primo con...
Appartamento di circa 160 Mq situato in zona Porta Maggiore, nei pressi di Piazza Immacolata ed a pochi passi dalla stazione, al primo piano di un fabbricato con ascensore composto di: ingresso,...
inserito il 30 dic 2025Ascoli Piceno, in centro storico a pochi passi da piazza del popolo, appartamento posto al piano secondo senza ascensore cosl diviso: ingresso/soggiorno con angolo cottura, due camere e bagno....
inserito il 30 dic 2025ASCOLI PICENO (AP) a due chilometri dal centro storico, appartamento di mq 80 circa con ingresso indipendente, in un bellissimo complesso residenziale di nuova realizzazione. L'immobile, si trova in...
inserito il 30 dic 2025
Cerchi Appartamenti in vendita ad Ascoli Piceno ma non hai trovato nulla di tuo interesse?
Utilizza il nostro modulo di richiesta generica ed invia una email di richiesta alle nostra agenzie affiliate!
A beautiful appartment in Piazza Arringo, 230 m2, on the 1st floor: entrance, ample living room with fireplace, kitchen, 3 bedrooms, 2 bathrooms, study, a small balcony and a warehouse
inserito il 30 dic 2025ASCOLI PICENO centro storico, in zona centralissima, appartamento posto al secondo piano, di mq. 85 circa, composto da: ingresso, soggiorno, cucinotto, due camere matrimoniali, bagno, completa la...
inserito il 30 dic 2025Ascoli Piceno, the historic centre, palace of honour, apartments undergoing restructuring of approximately 125 square metres spread over two levels and broken down as follows: entrance living room,...
inserito il 30 dic 2025Ascoli Piceno, Poggio di Bretta, appartamento di mq 80 circa cosl composto: ingresso, soggiorno con angolo cottura, camera matrimoniale, cameretta e bagno. Completano la propriet un terrazzo...
inserito il 30 dic 2025
Specifica meglio la tua ricerca di Appartamenti a Ascoli Piceno aggiungendo una caratteristica delle seguenti: