Appartamento piano terra di nuova costruzione prima fila mare in fabbricato di prestigio, 84 mq con dotazioni impiantistiche e finiture top level. rif. 3358 - L'edificio si affaccia sul Lungomare di...
Ribassato -6% Vendesi a San Benedetto Del Tronto in provincia di Ascoli Piceno un appartamento di circa 90 mq posto al piano rialzato in prima fila mare. L'appartamento composto da un ingresso, soggiorno,cucina...
Appartamento posto al piano secondo delle dimensioni di circa 115 mq, composto da ingresso su soggiorno con cucina a vista, due camere matrimoniali, due bagni oltre ad un terrazzo di circa 10 mq e...
APPARTAMENTO DI PREGIO IN VENDITA San Benedetto del Tronto (AP)In pieno centro citt, proponiamo in vendita un elegante quadrilocale di circa 135 mq, situato al secondo e ultimo piano di una palazzina...
Appartamento primo piano, di nuova costruzione, prima fila mare in fabbricato di prestigio, 88 mq con dotazioni impiantistiche e finiture top level. rif. 3364 L'edificio si affaccia sul Lungomare di...
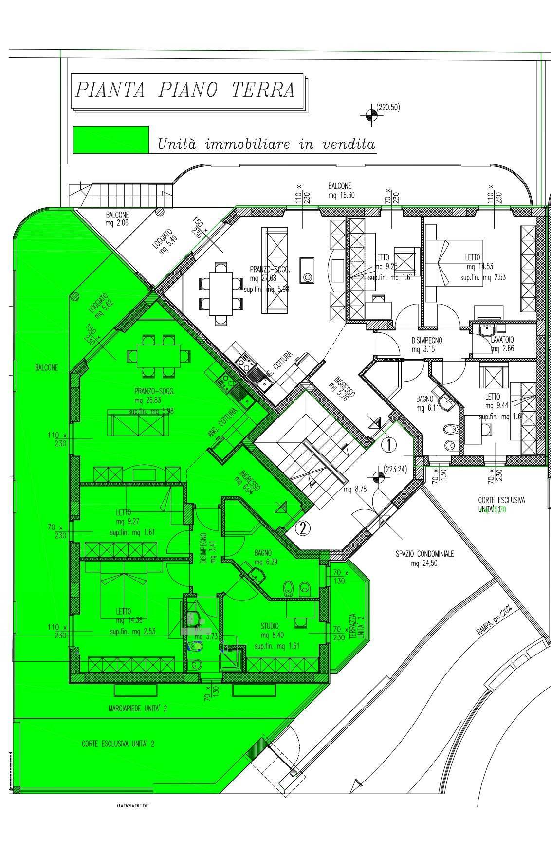
Vendesi a Grottammare in provincia di Ascoli Piceno in zona residenziale un appartamento in costruzione di circa 118 mq posto al piano terra con spazio esterno in parte piastrellato. L'appartamento...
inserito il 24 feb 2026
Appartamento trilocale arredato, 4 posti letto di mq.45+mq.68 di cortile su ingresso autonomo + mq.43 di giardino, a mt.90 dal lungomare di S.Benedetto del Tronto (Ap). Piano terra: ingr.soggiorno...

Vendesi a San Benedetto del Tronto in provincia di Ascoli Piceno appartamento di nuova costruzione posto al piano primo di una palazzina in fase di costruzione sito in una zona residenziale....
Specifica meglio la tua ricerca di Appartamenti in Italia aggiungendo una caratteristica delle seguenti: