Fronte Piazza, in uno dei contesti più prestigiosi di nuova e totale ristrutturazione, splendido loft su due livelli con ampie vetrate sulla piazza composto da al piano terra ampio salone con cucina...
Torrevecchia Teatina, Via Sanguineto, a 5 minuti dal centro di Francavilla al Mare,ad un minuto dal Fondo Valle Alento e a 200 metri dalla fermata dell' autobus, in posizione tranquilla e strategica,...
inserito il 10 feb 2026zona marina di
Rif.Ag. sd6333v - In posizione unica fronte mare è partito in una delle più belle piazze di Marina di Pisa l'intervento di recupero edilizio e nuove costruzioni da tempo atteso, appartamenti e...

Veggiano in zona centrale, proponiamo introvabile miniappartamento in costruzione di quasi 65 mq calpestabili con giardino privato di circa 50 mq. internamente composto da un'ampia zona giorno di 34...
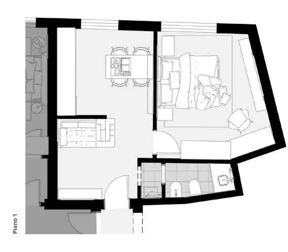
inserito il 10 feb 2026Silvi, zona centrale, Agenzia Casatua propone in vendita trilocale di nuova costruzione all' interno di un piccola palazzina. L'edificio si inserisce in un contesto ricco di servizi e a pochi passi...
inserito il 10 feb 2026
SAN BENEDETTO DEL TRONTO - In ottima posizione centrale in piccola palazzina in fase di totale ristrutturazione completa, appartamento bilocale posto al piano terra di circa 41 mq oltre corte esterna...
inserito il 05 mar 2026zona ramiola
Appartamento in Vendita - Ultima Opportunità Scopri l'ultimo appartamento bivani in una nuova costruzione, un vero gioiello immobiliare! Situato al piano rialzato, questo splendido appartamento offre...
Ancora non ha trovato un bilocale inzona? Probabilmente quanto segue potr essere di Suo interesse. Soggiorno con angolo cottura e zona notte in vendita in Via Germanico, nel cuore del quartiere...
Cerchi Bilocali nuovi in vendita ma non hai trovato nulla di tuo interesse?
Utilizza il nostro modulo di richiesta generica ed invia una email di richiesta alle nostra agenzie affiliate!
zona ramiola
Ramiola di Medesano, proponiamo in vendita IN ESCLUSIVA in palazzina di nuova costruzione, appartamento bilocale di 47 mq posto al piano rialzato con giardino in classe energetica A. L'Appartamento...
zona basilicanova
LATTIKO FORNOVO propone in vendita in esclusiva a pochi minuti dal centro di parma precisamente in località BASILICANOVA sei appartamenti bilocali di ampia metratura di nuova costruzione in piccola...
Vendesi in Asta a Ravenna, (casola valsenio), Appartamento allo stato di "grezzo avanzato" al piano primo con annessa autorimessa con lavanderia al piano primo sottostrada. Per Info ed appuntamenti:...
inserito il 10 feb 2026
Rif.Ag. Y230042 - Cascina :CAPOLUOGO - Poco distante dal centro e vicino ai servizi , bilocale con piccolo giardino esclusivo in in complesso storico di nuova e completa ristrutturazione. Composti da...
Specifica meglio la tua ricerca di Appartamenti in Italia aggiungendo una caratteristica delle seguenti: