Rif.Ag. v1130 - Ameglia, vicino a Bocca di magra appartamento al primo piano di complesso residenziale di recente costruzione, composto da: cucina soggiorno con balcone, camera e bagno. posto auto...
Rif.Ag. v1097 - sarzana località crociata monolocale di 38 mq al piano terra con giardino di 25 mq cantina e posto auto immobile affittato ideale uso investimento ?80.000 per info o appuntamenti...
Rif.Ag. 90A - APPARTAMENTO IN VENDITA - AULLA (MS) Nel centro storico, a due passi dai principali servizi, si propone questo stupendo immobile semindipendente, al primo piano di una palazzina molto...

zona gello
Rif.Ag. 896912-3 - Pontedera Gello Appartamenti indipendenti nuovi in pronta consegna, in piccolo fabbricato in zona residenziale, realizzati con le più moderne tecnologie per il risparmio...
RJ22 APPARTAMENTO DI NUOVA COSTRUZIONE JESOLO LIDO A Jesolo Lido, in pieno centro, a circa 300metri dal litorale, proponiamo in vendita un favoloso appartamento di nuova costruzione dotato di ogni...
APPARTAMENTO 3 VANI ZONA VIA X MARZO RIFERIMENTO 4. La Target Immobiliare propone in vendita a Modugno, in zona via X Marzo, appartamento ristrutturato al primo piano così composto: ingresso, cucina...
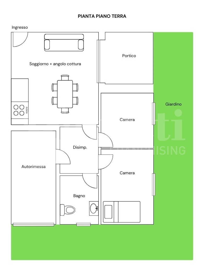
A soli 3 km dalle spiagge di Otranto, in un contesto di recente costruzione, proponiamo in vendita una soluzione mai abitata disposta su due livelli. L'abitazione composta da due bilocali comunicanti...

zona centro
Rif.Ag. 681 - CAPOLUOGO - Poggibonsi - Centro Appartamento in vendita - 4 vani - 95 mq - con ingresso indipendente - posto al piano Piano terra composto da 3 camere e 2 bagni Classe energetica: A1 -...
Cerchi Appartamenti con riscaldamento autonomo in vendita ma non hai trovato nulla di tuo interesse?
Utilizza il nostro modulo di richiesta generica ed invia una email di richiesta alle nostra agenzie affiliate!
CITTA' DELLA PIEVE All' interno delle mura del bellissimo borgo di Citta' della Pieve, proponiamo in vendita un appartamento di 150 mq attualmente in fase di ristrutturazione con consolidamento gia...
CITTA' DELLA PIEVE In località Pò Bandino, vicino tutti i servizi in complesso residenziale al piano terra con ingresso indipendente proponiamo in vendita appartamento in ottimo stato composto da:...
Rif.Ag. CC22 - EMPOLI ZONA PRETURA: Appartamento INGRESSO INDIPENDENTE CON GIARDINO 4 VANI , composto da soggiorno , cucina abitabile , 2 camere , bagno con finestra, giardino frontale e tergale....
Rif.Ag. 802 - Massa - In posizione centralissima ma defilata dal traffico, luminoso appartamento posto al terzo piano servito da ascensore, di taglio tradizionale con una superficie di circa 120 mq....
Specifica meglio la tua ricerca di Appartamenti in Italia aggiungendo una caratteristica delle seguenti: