FARA VICENTINO: abitazione affiancata posta su due livelli fuori terra, da ristrutturare, con scoperto esterno frontale di ca. 40 mq.\nL'immobile gode di ottime metrature ma necessita di...

in zona residenziale, unico attico composto da 7 vani posiibile creare due unita' abitative, tre terrazze, tre servizi, cantina, posti auto, garage, terrazza panoramica mq 180, classe energatica g...
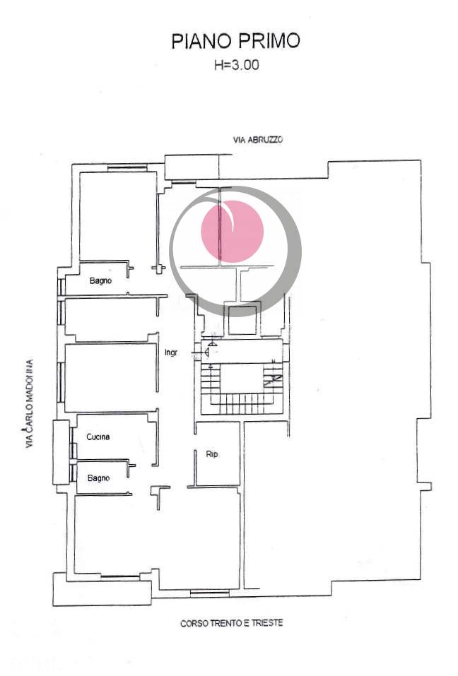
PIANEZZE. In zona residenziale comoda a tutti i servizi, su palazzina di sole due unit abitative, appartamento al piano primo (raggiungibile da scala interna) con ingresso su disimpegno, grande...
inserito il 17 mar 2026
Viareggio zona Marco Polo, vendesi appartamento al 3° piano ed ultimo con ascensore, recentemente ristrutturato. L'appartamento composto da ampio ingresso, soggiorno, cucina semiabitabile con...
inserito il 30 dic 2025GRADISCA DISONZO Nellincantevole centro storico proponiamo, in palazzetto depoca, appartamento al primo piano di 106 mq., da ultimare. Labitazione dispone di un ampio soggiorno con angolo cottura,...
Due unità, ununica proprietà e molteplici possibilità di utilizzo. Questo appartamento di circa 100 mq, attualmente suddiviso in due unità abitative, con disimpegno di ingresso condiviso, rappresenta...
inserito il 18 feb 2026Questo appartamento in vendita offre una bella vista che allinea in un solo sguardo tre dei simboli più rappresentativi di Orvieto: il Duomo, il Palazzo del Capitano del Popolo e la Torre del Moro,...
inserito il 20 gen 2026ZONA DOVADOLA: si propone in vendita ampio appartamento in contesto condominiale di 8 unit, pulito e tranquillo. L'appartamento sito al secondo piano, si dispone su due livelli ed cos composto: al...
inserito il 30 dic 2025
Cerchi Appartamenti 5 locali o pių 7 locali in vendita ma non hai trovato nulla di tuo interesse?
Utilizza il nostro modulo di richiesta generica ed invia una email di richiesta alle nostra agenzie affiliate!
Nel centro storico dell'antico borgo di Baschi, tra Orvieto e Todi, è in vendita questa antica torre di avvistamento risalente al 1100. La proprietà è stata finemente ristrutturata e convertita in un...
Orvieto centro storico In posizione centralissima a pochi passi dal Duomo, proponiamo in vendita un bellissimo appartamento al primo piano con terrazza condominiale panoramica e locali magazzino....

Vendita appartamento al primo piano composto da cucina, soggiorno, 3 camere letto, 2 bagni , disimpegno , 4 balconi e POSTO AUTO. In buone condizioni.
inserito il 30 dic 2025
viareggio a 50 mt dal mare, appartamento al 5° piano con asc. ampia metrutura, composto da grande soggiorno, cucina abitabile, due camere matrimoniali, camera media, due bagni. balconi. vista mare!!!...
inserito il 30 dic 2025
Specifica meglio la tua ricerca di Appartamenti in Italia aggiungendo una caratteristica delle seguenti: