Preferiti

Sponsorizza

Stampa

Magazzino in vendita da ristrutturare a Genova in via fereggiano 81 r

  • 6.831€
  • 1 locale
  • 88 mq
  • Vendesi

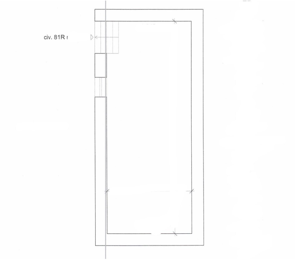
1/1 Diritto di piena proprietà - Magazzino ubicato a Genova (GE) Via Fereggiano, piano ***.*******.** ad uso magazzino, PRIVO DI NUMERO CIVICO avente accesso pedonale tramite di-stacco privato posto tra Passo della Zebra e il civico 45 di Via Fereggiano, posto sottostrada, con varco di ingresso di altezza pari a circa 160 cm., superficie convenzionale mq. 88,00. - Il Prezzo visualizzato è la Base d'Asta in quanto limmobile è oggetto di esecuzione immobiliare venduto tramite Asta Giudiziaria.
- L'immobile aggiudicato, viene venduto libero e sgombro da persone cose ed ipoteche nello stato di fatto e di diritto in cui si trova.
- Non rappresentiamo il Tribunale, ma lavoriamo nell'esclusivo interesse del potenziale acquirente per garantire un acquisto sicuro.
- I consulenti di ASTE ITALIA ti assisteranno in tutte le attività dell'iter giudiziario dalla visita dell'immobile fino alla consegna chiavi.
- Contatta il nostro Servizio Clienti , i nostri operatori sono a disposizione per chiarire i molteplici dubbi per partecipare alle ASTE. Contatta l'inserzionista

DOMY ONLINE S.R.L.DOMY ONLINE S.R.L.
Via San Lorenzo 5 Int. 41
16123, Genova (Genova)
Visualizza Telefono

INFORMAZIONI SULL'IMMOBILE

  • Riferimento: GE127/25L6-2705-26-1
  • Tipologia: Magazzino in Vendita
  • Locali: 1 Locali ( 1 camera)
  • Piano: Interrato
  • Stato: da Ristrutturare
  • Prezzo: 6.831 €
  • Prezzo al mq: 78 €
  • Modificato il: 27/03/2026
  • Scheda: SC9547675

Stabile

  • Piano: Interrato
G

Mappa e indirizzo

Magazzino sito in via fereggiano 81 r
16159 Genova (Genova)
Marassi, San Fruttuoso, Quezzi
mappa mostra l'annuncio su mappa

Galleria Fotografica

Contatta l'inserzionista

DOMY ONLINE S.R.L.

DOMY ONLINE S.R.L. di Genova propone in vendita questo immobile, contattali subito!

Annunci immobiliari a Genova (GE)

Copyright Š 2026 PCase.it. All rights reserved. Sede operativa MILANO. P.IVA 08508420968 - Condizioni d'uso e privacy