Preferiti

Sponsorizza

Stampa

Ufficio in vendita a Lucera in viale raffaello

  • 120.000€
  • 4 locali
  • 192 mq
  • Vendesi

LOCALE AD USO UFFICIO PRESSO IL CENTRO COMMERCIALE INCOM.
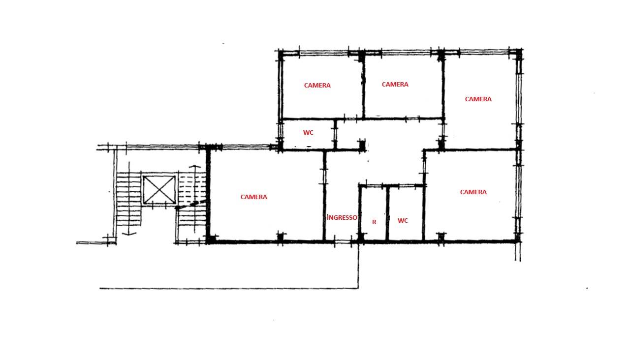
Proponiamo in vendita presso il Centro Commerciale Incom, un locale ad uso ufficio di 192 metri quadrati situato al secondo piano dell'edificio.
E' possibile personalizzarlo e adattarlo alle esigenze del futuro acquirente grazie alla sua metratura generosa il quale offre la possibilit di creare uno spazio di lavoro funzionale e confortevole.
Gli spazi interni sono ampi e luminosi, grazie alla presenza di ampie finestre che favoriscono l'ingresso di luce naturale; l'immobile composto da: ingresso, 4 vani, ripostiglio e due bagni.
L'ubicazione all'interno di un centro commerciale permette inoltre di usufruire di tutti i servizi e le comodit offerte dalla zona circostante.
Il proprietario si rende disponibile anche alla locazione dello stesso con canone mensile di ? 650,00 trattabili.
Non esitate a contattarci per avere ulteriori informazioni e per fissare un appuntamento per una visita. Contatta l'inserzionista

LUCERALUCERA
VIA NAPOLEONE BATTAGLIA 132
71036, Lucera (Foggia)
Visualizza Telefono

INFORMAZIONI SULL'IMMOBILE

  • Riferimento: A063
  • Tipologia: Ufficio in Vendita
  • Locali: 4 Locali (3 camere con doppi servizi)
  • Piano: Secondo
  • Prezzo: 120.000 €
  • Prezzo al mq: 625 €
  • Riscaldamento: Autonomo
  • Spazio Auto: No
  • Modificato il: 18/03/2024
  • Scheda: SC9558266

Stabile

  • Piano: 2
  • Classe Energetica: n.d.

Mappa e indirizzo

Ufficio sito in viale raffaello
71036 Lucera (Foggia)
mappa mostra l'annuncio su mappa

Contatta l'inserzionista

LUCERA

LUCERA di Lucera propone in vendita questo immobile, contattali subito!

Annunci immobiliari a Lucera (FG)

Copyright Š 2026 PCase.it. All rights reserved. Sede operativa MILANO. P.IVA 08508420968 - Condizioni d'uso e privacy